Contact Agent

Contact Ulster Property Sales (UPS) Donaghadee

Contact Ulster Property Sales (UPS) Donaghadee

6 Bed Detached House

Wyncroft, 52 Warren Road

Donaghadee, BT21 0PD

offers over £750,000
  • Status For Sale
  • Property Type Detached
  • Bedrooms 6
  • Receptions 5
  • Interior Area 3600 sqft
  • EPC Rating D59 / D59 -
  • Stamp Duty
    Higher amount applies when purchasing as buy to let or as an additional property
    £27,500 / £65,000*
  • Typical Mortgage
    Click price to use our mortgage calculator
EPC Rating

Key Features & Description

Stunning Period Detached Property Circa 3600 Sq Ft, On A Private Site With Sea Views
Six Bedrooms, Five Reception Areas And Additional Annex/Home Office
Sweeping Driveway Approached By Electric Gates And Mature Landscaped Gardens To Front And Rear
Walking Distance To All Local Amenities, Seafront, Promenade, Coffee Shops And Restaurants
Beautifully Modernised To Retain Many Original Features And Decorated To A High Standard Throughout
Parking For Multiple Vehicles And Also Benefits From An Integrated Garage
Private South Facing Garden With Multiple Spaces For Entertaining
Viewing Is Highly Recommended For This Fantastic Home In A Great Location
Description
Located on the prestigious Warren Road in Donaghadee, Wyncroft is a stunning period detached property that offers an impressive 3,600 square feet of living space. This remarkable home is set on a private site, boasting breath-taking sea views that enhance its charm and appeal.

Wyncroft features six spacious bedrooms and five well-appointed reception areas, providing ample room for both relaxation and entertainment. The heart of the home is an open plan kitchen, family room, and dining area, designed perfectly for large families or those who enjoy hosting gatherings. The first floor hosts four generously sized bedrooms, including a primary suite complete with an ensuite bathroom. The second floor offers two additional bedrooms, one of which features a delightful dormer balcony, ideal for soaking in the fantastic views.

The property is approached via a sweeping driveway with electric gates, ensuring privacy and security. There is ample parking available for multiple vehicles, making it convenient for family and guests alike. The south-facing landscaped garden is a true highlight, featuring numerous entertaining areas that are perfect for enjoying the outdoors.

Wyncroft is conveniently located within walking distance to the vibrant town of Donaghadee, where you will find a wide range of amenities, including shops, coffee houses, and restaurants. Additionally, the property offers easy commuting access to Belfast City Centre, making it an ideal choice for those who wish to enjoy the tranquillity of coastal living while remaining connected to urban conveniences.

This exceptional home is a rare find, combining period elegance with modern comforts, and is sure to impress all who visit.

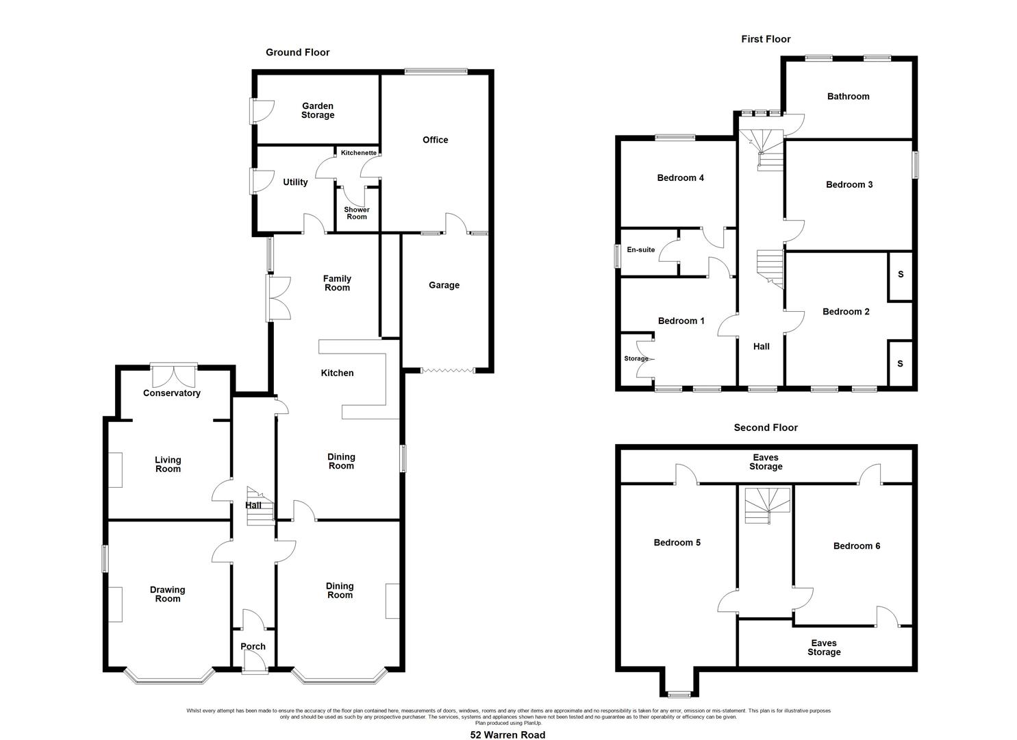
Rooms

Accommodation Comprises:
Entrance Porch Original tiled flooring, inner door with leaded stained glass side lights.
Entrance Hall Amtico flooring, dado rail, corniced ceiling, ceiling rose.
Drawing Room 19'3" X 14'11" (5.89m X 4.55m) Into bay, open fireplace with tiled hearth, tiled inset and carved wood surround, corniced ceiling, dual aspect views, recessed spotlighting..
Living Room 19'3" X 15'8" (5.89m X 4.78m) Open fireplace with marble hearth and marble surround, corniced ceiling, recessed spotlighting, open to sunroom and double doors to patio/garden.
Dining Room 19'5" X 15'1" (5.92m X 4.60m) Into bay, reclaimed marble fireplace with open fire, corniced ceiling, recessed spotlighting, sea views.
Kitchen/Dining/Family Room 37'11" X 15'1" (11.56m X 4.60m) Kitchen/Dining: Solid maple kitchen with excellent range of high and low level units, granite work surfaces, 5-ring gas hob, double oven, integrated fridge, built-in wine rack, plumbed for washing machine, plumbed for dishwasher, double stainless steel sink unit with mixer tap, recessed spotlighting, reclaimed French oak floor, open to casual dining area
Family Area: Reclaimed French oak floor, sliding doors with additional shelved storage area, vaulted ceiling, Velux window and sliding patio doors to outside.
Utility Room 10'7" X 8'3" (3.23m X 2.54m) Range of high and low level units, space for freezer, plumbed for washing machine, vented for tumble dryer, stainless steel sink unit with mixer tap, ceramic tiled flooring, door to outside.
Kitchenette Range of high and low level units, laminate work surfaces, circular sink unit, space for fridge, integrated microwave, feature glazed unit, integrated wine rack, part tiled walls, tiled flooring.
Shower Room Walk-in shower with "Mira" shower unit, low flush wc, pedestal wash hand basin, fully tiled walls, ceramic tiled floor, recessed spotlighting, extractor fan.
Annex / Office 19'1" X 13'10" (5.82m X 4.22m) Built in high and low level units, solid wood flooring, Velux type window, sliding doors to outside, door to garage.
First Floor Return Featured leaded glass stained glass window.
First Floor
Landing Picture window.
Primary Bedroom 14'2" X 11'8" (4.34m X 3.58m) Double room, built-in robe, corniced ceiling, picture rail, sea views.
Ensuite White suite comprising pedestal wash hand basin, feature light mirror, walk in shower enclosure with overhead shower and glazed door, low flush wc, ceramic tiled flooring, recessed spotlighting, extractor fan.
Bedroom 2 14'4" X 12'2" (4.39m X 3.71m) Double room, built-in robes, corniced ceiling, excellent views.
Bedroom 3 14'6" X 10'4" (4.42m X 3.15m) Double room, built-in robes, excellent views, corniced ceiling, picture rail.
Bedroom 4 14'11" X 14'4" (4.57m X 4.37m) Double room, built in robes.
Bathroom White suite comprising panelled bath with mixer tap and telephone hand shower, pedestal wash hand basin, separate fully tiled shower cubicle with thermostatic shower unit and additional shower unit, bidet, low flush wc, part tiled walls, Amtico flooring, recessed spotlighting, hotpress with built-in storage.
Second Floor
Bedroom 5 14'0" X 12'11" (4.27m X 3.94m) Double room, feature dormer balcony window with sea views, storage into eaves, recessed spotlighting.
Bedroom 6 13'10" X 12'11" (4.24m X 3.96m) Double room, tongue and groove ceiling, Velux type window, eaves storage, sea views.
Outside Front: Sweeping driveway with electric gate entry, area in lawn, mature shrubs and hedging, driveway for multiple vehicles, sea views.
Side and Rear: Additional tarmac area, area in lawn, mature plants, shrubs, trees and hedging, paved entertaining area, paved walkway, bedding areas, south facing.
Garage 20'8" X 10'5" (6.30m X 3.20m)
As part of our legal obligations under The Money Laundering, Terrorist Financing and Transfer of Funds (Information on the Payer) Regulations 2017, we are required to verify the identity of both the vendor and purchaser in every property transaction.

To meet these requirements, all estate agents must carry out Customer Due Diligence checks on every party involved in the sale or purchase of a property in the UK.

We outsource these checks to a trusted third-party provider. A charge of £20 + VAT per person will apply to cover this service.

You can find more information about the legislation at www.legislation.gov.uk

Video

Broadband Speed Availability

Ultrafast

Potential Speeds for 52 Warren Road

Max Download
1800
Mbps
Max Upload
220
Mbps
The speeds indicated represent the maximum estimated fixed-line speeds as predicted by Ofcom. Please note that these are estimates, and actual service availability and speeds may differ.

Property Location

Show Map

Mortgage Calculator

Disclaimer: The following calculations act as a guide only, and are based on a typical repayment mortgage model. Financial decisions should not be made based on these calculations and accuracy is not guaranteed. Always seek professional advice before making any financial decisions.

Contact Agent

Contact Ulster Property Sales (UPS) Donaghadee

Contact Ulster Property Sales (UPS) Donaghadee

Request More Information
Requesting Info about...
Wyncroft, 52 Warren Road, Donaghadee, BT21 0PD Wyncroft, 52 Warren Road, Donaghadee, BT21 0PD

By registering your interest, you acknowledge our Privacy Policy