Contact Agent
Contact Ulster Property Sales (UPS) Donaghadee
4 Bed Detached House
10 Stockbridge Road
Donaghadee, BT21 0PN
offers around
£549,950
Key Features & Description
Stunning Detached Home On The Popular Stockbridge Road
Large Entrance/Dining Hall With Glazed Doors To Drawing Room
Open Plan Kitchen/Living/Dining Room With Doors To Rear Garden
Four Double Bedrooms, Two With Ensuites And Built In Robes
Second Floor Living Room/Home Office With Sea Views
Ground Floor Guest WC And First Floor Family Bathroom
Landscaped Gardens With An Exceptional Planting Scheme, Detached Garage And Ample Parking
Within Minutes Of Donaghadee Town Centre And Close To Seafront
Description
Located on the sought-after Stockbridge Road in Donaghadee, this stunning detached home offers a perfect blend of modern living and coastal charm. Spanning an impressive 2,000 square feet, the property boasts four generously sized reception rooms, providing ample space for both relaxation and entertaining.
Upon entering, you are greeted by a large entrance and dining hall, which features elegant glazed doors leading to a beautifully appointed drawing room. The heart of the home is undoubtedly the open plan kitchen, living, and dining area, which seamlessly connects to the rear garden, creating an ideal setting for family gatherings and social events.
The property comprises four double bedrooms, two of which benefit from ensuites and built-in wardrobes, ensuring comfort and convenience for all family members. A second-floor living room or home office offers breathtaking sea views, making it a perfect retreat for work or leisure. Additionally, the ground floor includes a guest WC, while the first floor features a well-designed family bathroom.
The beautifully landscaped gardens are a true highlight, showcasing an exceptional planting scheme filled with a diverse array of plants, shrubs, and trees, providing a tranquil outdoor space to enjoy. A detached garage and ample parking further enhance the practicality of this remarkable home.
Located just minutes from Donaghadee town centre and the seafront, this property is ideally situated for those seeking a vibrant community lifestyle. With its bright and spacious interiors, private gardens, and exquisite finishes throughout, this home is a rare find and a must-see for discerning buyers.
Located on the sought-after Stockbridge Road in Donaghadee, this stunning detached home offers a perfect blend of modern living and coastal charm. Spanning an impressive 2,000 square feet, the property boasts four generously sized reception rooms, providing ample space for both relaxation and entertaining.
Upon entering, you are greeted by a large entrance and dining hall, which features elegant glazed doors leading to a beautifully appointed drawing room. The heart of the home is undoubtedly the open plan kitchen, living, and dining area, which seamlessly connects to the rear garden, creating an ideal setting for family gatherings and social events.
The property comprises four double bedrooms, two of which benefit from ensuites and built-in wardrobes, ensuring comfort and convenience for all family members. A second-floor living room or home office offers breathtaking sea views, making it a perfect retreat for work or leisure. Additionally, the ground floor includes a guest WC, while the first floor features a well-designed family bathroom.
The beautifully landscaped gardens are a true highlight, showcasing an exceptional planting scheme filled with a diverse array of plants, shrubs, and trees, providing a tranquil outdoor space to enjoy. A detached garage and ample parking further enhance the practicality of this remarkable home.
Located just minutes from Donaghadee town centre and the seafront, this property is ideally situated for those seeking a vibrant community lifestyle. With its bright and spacious interiors, private gardens, and exquisite finishes throughout, this home is a rare find and a must-see for discerning buyers.
Rooms
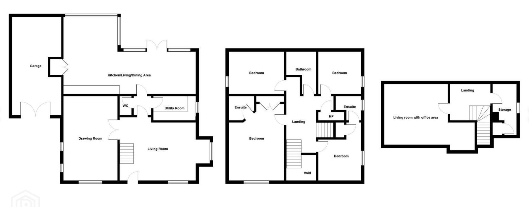
Accommodation Comprises:
Entrance/Dining Hall 17" X 13'8" (5.18m X 4.17m)
Gas fire with sandstone surround and hearth, solid oak floor, built-in window seat, dual aspect views.
Drawing Room 19'6" X 12'9" (5.94m X 3.89m)
Open fire with carved wooden surround, slate inset and hearth, glazed doors from entrance/dining hall.
Utility Room
Storage cupboards, granite work surfaces, single bowl stainless steel sink unit with mixer tap, plumbed for washing machine, space for tumble dryer, fully tiled floor.
Guest WC
White suite comprising low flush wc, pedestal wash hand basin, tiled flooring, tiled walls, extractor fan, chrome wall mounted towel rail.
Open Plan Kitchen/Living/Dining Room 30'2" X 17'9" (9.19m X 5.41m)
Modern range of high and low level oak units, granite work surfaces, space for range cooker with stainless steel splash back, stainless steel extractor fan, recess for fridge/freezer, island unit with additional storage cupboards and granite work surface, single bowl single drainer stainless steel sink unit with mixer tap, matching granite drainer, plumbed for dishwasher, double larder unit, solid oak floor, remote control Velux windows, cast iron wood burning stove, uPVC double glazed French doors to rear garden.
First Floor
Landing
Linen cupboard with lagged copper cylinder and storage.
Bedroom 1 17'5" X 12'8" (5.31m X 3.86m)
Double room, solid oak floor, double built in wardrobe.
En-suite Shower Room
White suite comprising fully tiled shower cubicle, pedestal wash hand basin, low flush WC, fully tiled floor, fully tiled walls, chrome heated towel rail, extractor fan.
Bedroom 2 9'9" X 9'4" (2.97m X 2.84m)
Double room, built in robes.
En-suite Shower Room
White suite comprising shower cubicle with "Redring" electric shower, pedestal wash hand basin with mixer tap, tiled splash back, low flush WC, fully tiled floor, extractor fan.
Bedroom 3 12'8" X 9'8" (3.86m X 2.95m)
Double room.
Bedroom 4 9'10" X 9'7" (3.00m X 2.92m)
Double room.
Bathroom
White suite comprising panelled bath, low flush WC, pedestal was hand basin, fully tiled floor, part tiled walls and extractor fan.
Second Floor
Landing
Living Room/Home Office 14'0" X 13'5" (4.27m X 4.09m)
Gazco wall mounted fire, study area with sea views, family area.
Luggage Room/Storage
Walk in storage area, additional storage in eaves.
Outside
Front and Side: areas in lawn, feature stone wall, driveway in stones with parking for multiple vehicles, additional parking in brick paviour, garage.
Rear: fully enclosed garden, area in lawn, extensive paved patio barbecue areas and south westerly aspect.
Rear: fully enclosed garden, area in lawn, extensive paved patio barbecue areas and south westerly aspect.
Garage
Double doors, power, light, oil fired boiler.
Video
Broadband Speed Availability
Potential Speeds for 10 Stockbridge Road
Max Download
1800
Mbps
Max Upload
220
MbpsThe speeds indicated represent the maximum estimated fixed-line speeds as predicted by Ofcom. Please note that these are estimates, and actual service availability and speeds may differ.
Property Location
Mortgage Calculator
Contact Agent
Contact Ulster Property Sales (UPS) Donaghadee
Request More Information
Requesting Info about...
10 Stockbridge Road, Donaghadee, BT21 0PN
By registering your interest, you acknowledge our Privacy Policy
By registering your interest, you acknowledge our Privacy Policy