Contact Agent

Contact Simon Brien (South Belfast)

Contact Simon Brien (South Belfast)

4 Bed Detached House

27 Saul Brae

Downpatrick, County Down, BT30 6PE

price £350,000
  • Status For Sale
  • Property Type Detached
  • Bedrooms 4
  • Receptions 3
  • EPC Rating D56 / D56
  • Stamp Duty
    Higher amount applies when purchasing as buy to let or as an additional property
    £7,500 / £25,000*
  • Typical Mortgage
    Click price to use our mortgage calculator
EPC Rating

Key Features & Description

  • Attractive Detached Family Home
  • Views to Strangford Lough and Saul Church
  • Spacious Accomodation Throughout
  • Four Generous Bedrooms
  • Three Reception Room
  • Modern Kitchen with Central Island, Granite Worktops open to Dining
  • Family Bathroom and Ensuite
  • Oil Fired Central Heating
  • Double Glazing
  • Pleasant well tended Gardens
  • Garaging
  • Ideal for Young Family
  • Popular Sought After Semi Rural Location short drive from Downpatrick Town Centre
  • Viewing by Private Appointment
  • Description
    Saul Brae has consistently proved to be an exceptionally popular residential address in this pleasant semi rural location and yet only a short drive to Downpatrick Town Centre with its vast array of local amenities, excellent schooling and transport routes connecting Belfast and other surrounding towns. The popular village of Strangford is a short drive away



    The deceptively spacious accomodation provides a four bedroom layout with three reception, kitchen/dining, family bathroom and ensuite



    Externally there are pleasant gardens, garaging and views to Strangford Lough and Saul Church



    Likely to be to the growing family viewing is by appointment via our Belfast Office on 02890 668888

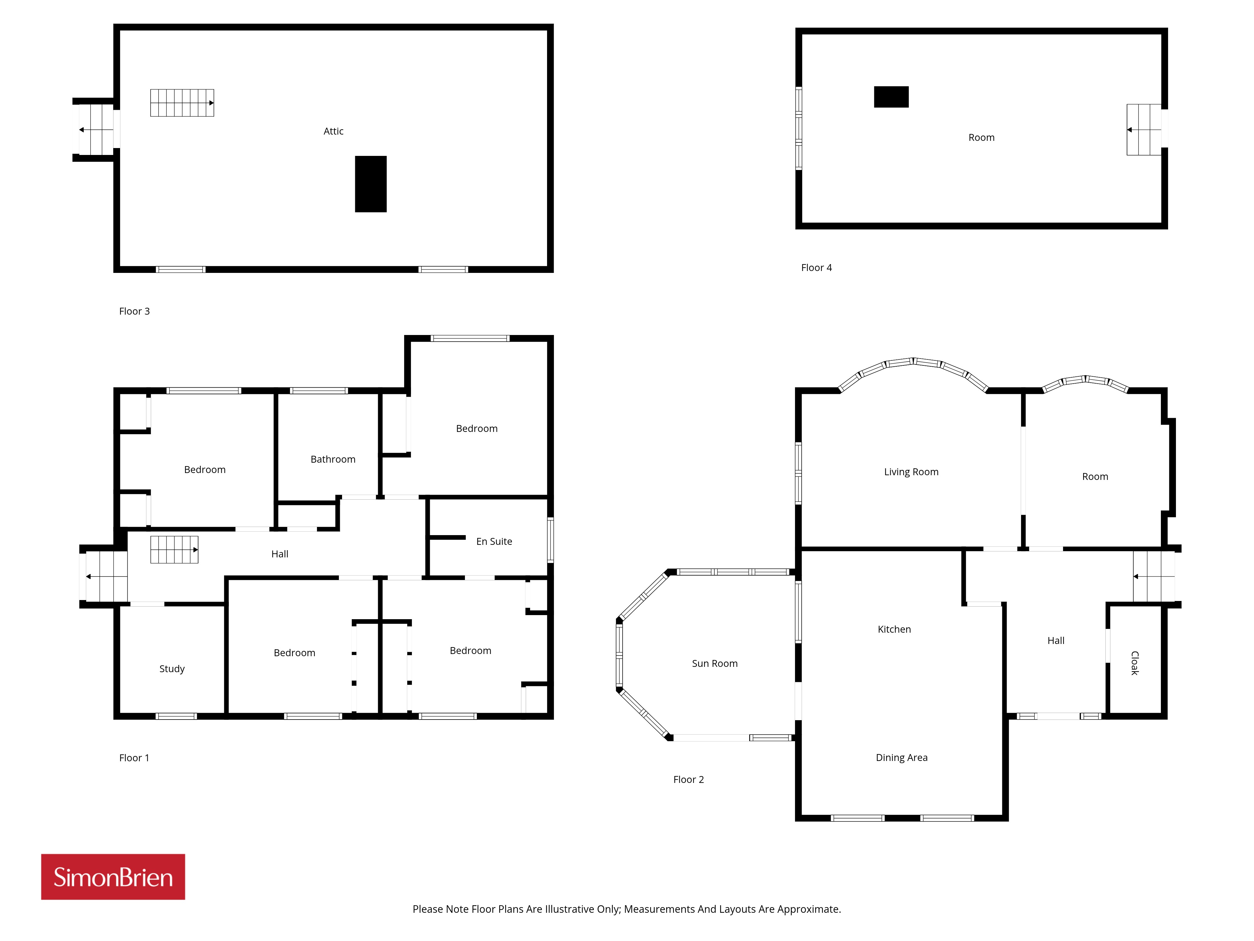
    Rooms

    Outside A mature site with private gardens set on a corner site, with views towards Strangford Lough, Co Down and Saul Church. Tarmac driveway, outside lighting landscaped gardens, outbuildings and garage. Rear mature gardens with patio area and mature trees
    Attic
    Games Room 28'2" X 15'1" (8.59m X 4.60m)
    First Floor
    Bathroom Corner bath, separate shower cubicle, wash hand basin and WC
    Bedroom 4 12'0" X 10'11" (3.66m X 3.33m) Solid oak floor, built in wardrobe and radiator
    Bedroom 3 12'11" X 11'10" (3.94m X 3.60m) Radiator
    Bedroom 2 11'2" X 10'4" (3.40m X 3.15m) Radiator and built in wardrobe
    Master Bedroom with en-suite 12'11" X 10'11" (3.94m X 3.33m) Ensuite shower room
    Office 8'4" X 8'1" (2.54m X 2.46m) Home office
    Sun Room 13'7" X 12'2" (4.14m X 3.70m) Wood burning stove, tiled floor.
    Kitchen 20'9" X 15'7" (6.32m X 4.75m) A modern kitchen with attractive units to comprise, granite worktop plus island, 1.5 Frankie sink, 4 ring gas hob, mid oven and recess for american style fridge/freezer, island with storage. Tiled floor and spacious dining area
    Lounge 16'2" X 12'5" (4.93m X 3.78m) Good size lounge with bow window and garden views. Feature fireplace and cornicing. Arch to dining room
    Entrance Hall Spacious front entrance hall with large cloaks closet

    Broadband Speed Availability

    Ultrafast

    Potential Speeds for 27 Saul Brae

    Max Download
    1800
    Mbps
    Max Upload
    1000
    Mbps
    The speeds indicated represent the maximum estimated fixed-line speeds as predicted by Ofcom. Please note that these are estimates, and actual service availability and speeds may differ.

    Property Location

    Show Map

    Mortgage Calculator

    Disclaimer: The following calculations act as a guide only, and are based on a typical repayment mortgage model. Financial decisions should not be made based on these calculations and accuracy is not guaranteed. Always seek professional advice before making any financial decisions.

    Contact Agent

    Contact Simon Brien (South Belfast)

    Contact Simon Brien (South Belfast)

    Request More Information
    Requesting Info about...
    27 Saul Brae, Downpatrick, County Down, BT30 6PE 27 Saul Brae, Downpatrick, County Down, BT30 6PE

    By registering your interest, you acknowledge our Privacy Policy