Contact Agent

Contact Paul Birt

Contact Paul Birt

Site

Building Site Opposite, 45 Corrick Road

Draperstown, BT45

offers over £55,000
  • Status For Sale
  • Property Type Site
  • Stamp Duty
    Higher amount applies when purchasing as buy to let or as an additional property
    £0 / £2,750*
  • Typical Mortgage
    Click price to use our mortgage calculator

Key Features

Water and Electricity Near By
Benefits From Its Own Private Access to the Corrick Road
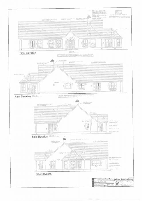
Site for Dwelling & Garage Approved Under Planning Reference: H/2004/0269/RM
Excellent Building Site Located in a Quiet Rural Setting outside Draperstown approx 1.5 Miles Along the Corrick Road

Property Location

Show Map

Mortgage Calculator

Disclaimer: The following calculations act as a guide only, and are based on a typical repayment mortgage model. Financial decisions should not be made based on these calculations and accuracy is not guaranteed. Always seek professional advice before making any financial decisions.

Contact Agent

Contact Paul Birt

Contact Paul Birt

Request More Information
Requesting Info about...
Building Site Opposite, 45 Corrick Road, Draperstown, BT45 Building Site Opposite, 45 Corrick Road, Draperstown, BT45

By registering your interest, you acknowledge our Privacy Policy