Contact Agent
Contact Burns & Co Commercial (Maghera)
Office
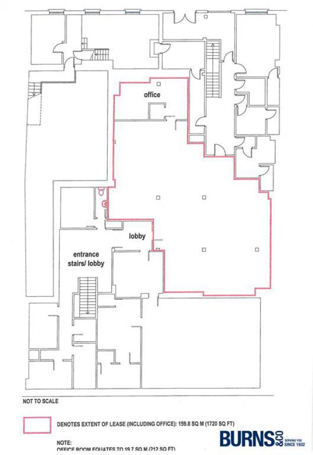
First Floor Premises At 26-28 High Street
Draperstown, BT45 7AA
Price on Application
- Status For Rent
- Property Type Office
-
Rates
Rate information is for guidance only and may change as sources are updated.Inc rates
- Heating Economy 7
- Furnished Unfurnished
Property Financials
-
Price
Price On Application
- Rates Inc rates
- Lease 12 Months Plus
Key Features
Modern first floor commercial premises extending to c.1,700 sq.ft.(excluding kitchenette and WC) located right in the heart of Draperstown.
Available as a single unit or split into 2 No. separate units.
WC and Kitchenette facilities.
Chairlift on staircase to be installed from ground floor to first floor.
Ample public car parking on the High Street directly in front of premises.
Suitable for a variety of uses (subject to the appropriate planning consents).
Please note: there is no VAT applicable to the rental sums.
Property Location
Directions
Draperstown
Contact Agent
Contact Burns & Co Commercial (Maghera)
Request More Information
Requesting Info about...
First Floor Premises At 26-28 High Street, Draperstown, BT45 7AA
By registering your interest, you acknowledge our Privacy Policy
By registering your interest, you acknowledge our Privacy Policy