Contact Agent

Contact Templeton Robinson (Lisburn)

Contact Templeton Robinson (Lisburn)

Site

Site @ Barban Hill

Dromore, BT25 1AG

asking price £750,000
  • Status For Sale
  • Property Type Site
  • Stamp Duty
    Higher amount applies when purchasing as buy to let or as an additional property
    £27,500 / £65,000*
  • Typical Mortgage
    Click price to use our mortgage calculator

Key Features & Description

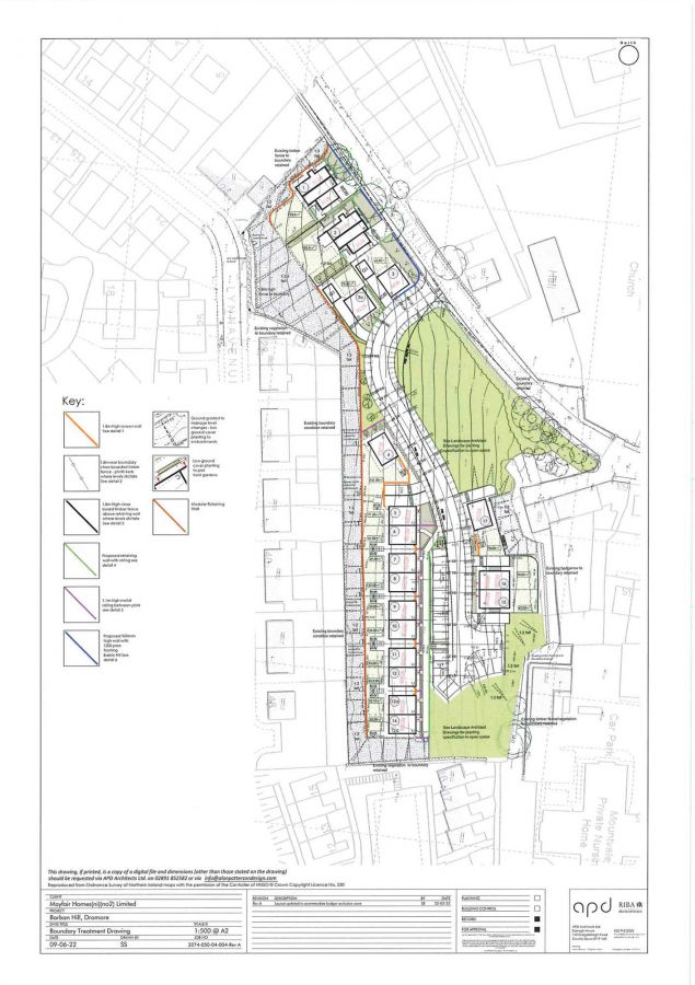
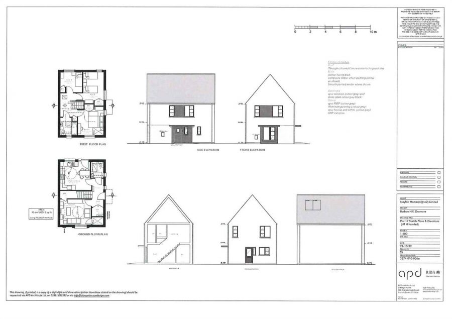
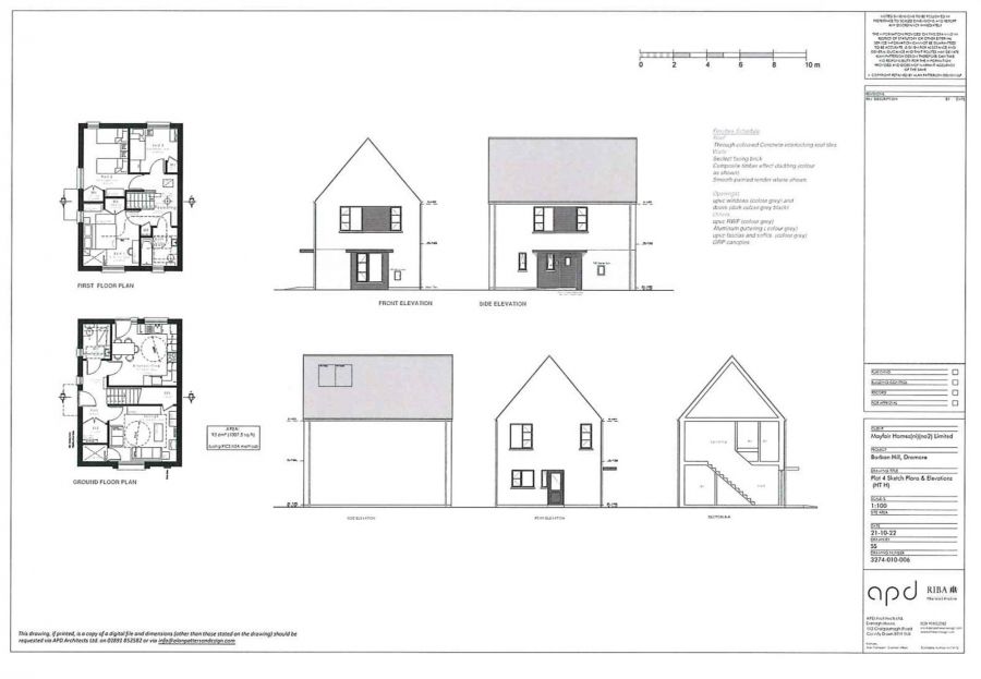
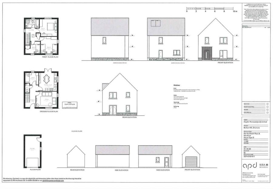
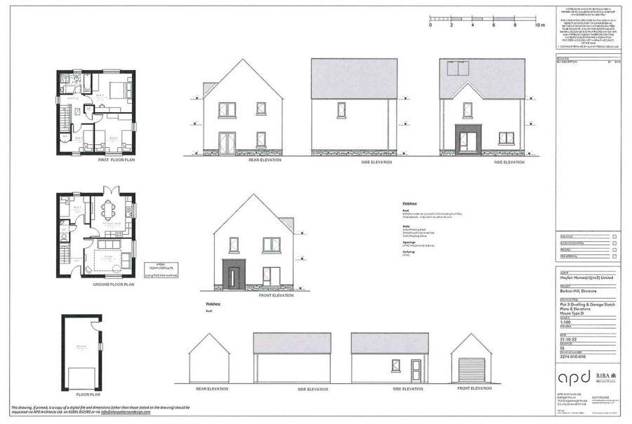
Site with Full Planning Permission for 18no. Dwellings with Water Connections
Comprising of 6 x Detached, 10 x Semi Detached and 2 x Apartments
Site Bounded with Fencing and Hedgerows
Application Reference: LA08/2023/1687/F
Planning Portal Reference: PP-11864948
Ideally Positioned Within Striking Distance of Dromore Town Centre
Close to Local Leading Schools and Belfast International Airport
Excellent Transport Links to Belfast, Lisburn, Hillsborough and Banbridge
Close Proximity to Dromore Town Centre, Banbridge Outlet, Sprucefield Shopping Centre and Hillsborough Village
Viewing Directly at the Site
Further Unit Pricing and Enquiries Through the Lisburn Office on 02892 661 700
Description
Site with FPP @ Barban Hill, Dromore.

Full planning permission granted for the erection of 18no. dwellings (10no. semi-detached and 6no. detached dwellings and 2 apartments) with associated site works, landscaping and water connections.

Land bounded by 2 Barban Hill, 63 Rampart Street, Dromore Reformed Presbyterian Church, 15 &16 Laganvale & 24 & 28 - 48 Lynn Avenue. Good topography with surrounding perimeter fencing and hedgerows.

Application Reference: LA08/2023/1687/F
Planning Portal Reference: PP-11864948

Early enquiries are highly recommended through our Lisburn Office on 02892 661 700 where a pricing schedule is available for interested parties. Viewings directly at the site.

Property Location

Show Map

Mortgage Calculator

Disclaimer: The following calculations act as a guide only, and are based on a typical repayment mortgage model. Financial decisions should not be made based on these calculations and accuracy is not guaranteed. Always seek professional advice before making any financial decisions.

Directions

Coming up Barban Hill towards the rugby club, the site is located on the left hand side at the end of Rampart Street.

Contact Agent

Contact Templeton Robinson (Lisburn)

Contact Templeton Robinson (Lisburn)

Request More Information
Requesting Info about...
Site @ Barban Hill, Dromore, BT25 1AG Site @ Barban Hill, Dromore, BT25 1AG

By registering your interest, you acknowledge our Privacy Policy