Contact Agent

Contact Robert Wilson Estate Agency (Moira)

Contact Robert Wilson Estate Agency (Moira)

Site

Building Site, 200M West Of

53 Gregorlough Road, Dromore, BT25 1RR

asking price £250,000
  • Status For Sale
  • Property Type Site
  • Stamp Duty
    Higher amount applies when purchasing as buy to let or as an additional property
    £2,500 / £15,000*
  • Typical Mortgage
    Click price to use our mortgage calculator

Description

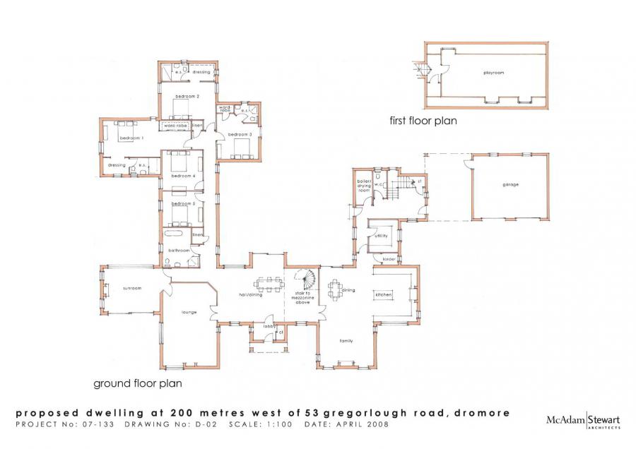
  • We are delighted to offer to the market this superb building site with full planning granted for an approximately 4,700 square foot detached dwelling and garage on the much sought after Gregorlough Road 
  • Planning Reference – N/2008/0324/RM  
  • Site c. 1 acre  
  • Certificate of Lawful Development obtained  

Located in the scenic country side of Co Down and just 3.5 miles to Moira and a 15 minute drive to Hillsborough, this extensive site offers the perfect blend of tranquillity and convenience, making it a perfect choice for those seeking an idyllic countryside lifestyle without sacrificing urban amenities.

Planning has been granted and plans drawn up for a beautiful, detached 5 bedroom home and a large garage. Accommodation includes, spacious hall/dining area, lounge, open plan kitchen/dining/family area, sunroom, utility room, wc, 5 bedrooms, three of which have ensuites and two of which have dressing rooms, family bathroom and a garage with a playroom above.

Excellent transportation links are close by with access to the A1 dual carriageway and the M1 providing access to Belfast in 20 minutes and Dublin in 1 hour and 30 minutes.

Property Location

Show Map

Mortgage Calculator

Disclaimer: The following calculations act as a guide only, and are based on a typical repayment mortgage model. Financial decisions should not be made based on these calculations and accuracy is not guaranteed. Always seek professional advice before making any financial decisions.

Contact Agent

Contact Robert Wilson Estate Agency (Moira)

Contact Robert Wilson Estate Agency (Moira)

Request More Information
Requesting Info about...
Building Site, 200M West Of, 53 Gregorlough Road, Dromore, BT25 1RR Building Site, 200M West Of, 53 Gregorlough Road, Dromore, BT25 1RR

By registering your interest, you acknowledge our Privacy Policy