Contact Agent

Contact Eadie McFarland & Co

Contact Eadie McFarland & Co

Site

Tattysallagh Road

Drumquin, BT78 4RQ

offers over £69,000
  • Status For Sale
  • Property Type Site
  • Stamp Duty
    Higher amount applies when purchasing as buy to let or as an additional property
    £0 / £3,450*
  • Typical Mortgage
    Click price to use our mortgage calculator

Key Features & Description

Approximately 4 miles South of Drumquin
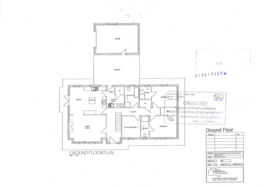
Site 1 - K/2008/0938/RM - Foundations commenced for a 4 Bedroom 2 storey house- With Certificate of Lawful Development
Site 2 - K/2009/0025/RM - Foundations commenced for a 4 Bedroom 2 storey house and garage- With Certificate of Lawful Development
Description
2 NO. BUILDING SITES SET ON C.5.5. ACRES With Certificates of Lawful Development

Directions - From Lack to Omagh turn left after C.3.4 miles onto the Dooish Road, then after C.1.3 miles turn right onto the Tattysallagh Road.  Sites are C.0.7 miles on right hand side.

Property Location

Show Map

Mortgage Calculator

Disclaimer: The following calculations act as a guide only, and are based on a typical repayment mortgage model. Financial decisions should not be made based on these calculations and accuracy is not guaranteed. Always seek professional advice before making any financial decisions.

Contact Agent

Contact Eadie McFarland & Co

Contact Eadie McFarland & Co

Request More Information
Requesting Info about...
Tattysallagh Road, Drumquin, BT78 4RQ Tattysallagh Road, Drumquin, BT78 4RQ

By registering your interest, you acknowledge our Privacy Policy