Contact Agent

Contact CPS Omagh

Contact CPS Omagh

Site

Proposed Dwelling @ Mullyneil Road

Dungannon, BT68 4XX

Price on Application
  • Status For Sale
  • Property Type Site

Description

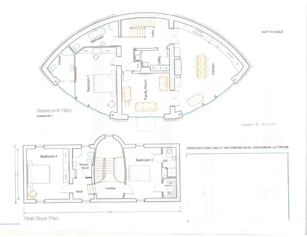
Full Planning Permission for 1 ¾ storey dwelling and domestic garage
Approximately 3108sq ft
Located a short distance from Aughnacloy and Dungannon

Property Location

Show Map

Contact Agent

Contact CPS Omagh

Contact CPS Omagh

Request More Information
Requesting Info about...
Proposed Dwelling @ Mullyneil Road, Dungannon, BT68 4XX Proposed Dwelling @ Mullyneil Road, Dungannon, BT68 4XX

By registering your interest, you acknowledge our Privacy Policy