Site To Rear Of 86 Sunnyhill Park
Dunmurry
price
£65,000
- Status For Sale
-
Stamp Duty
Higher amount applies when purchasing as buy to let or as an additional property£0 / £3,250*
Description
DESCRIPTION
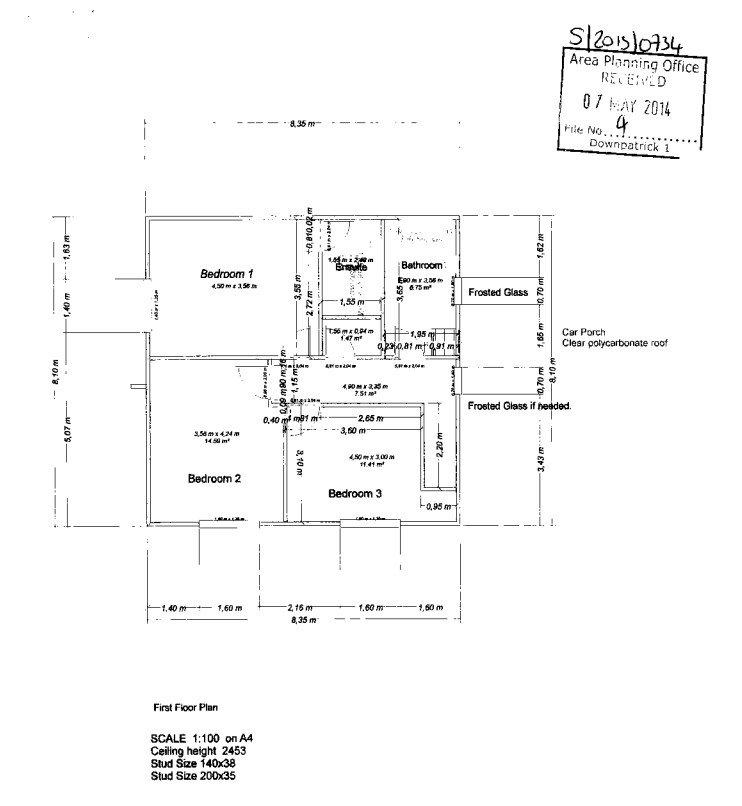
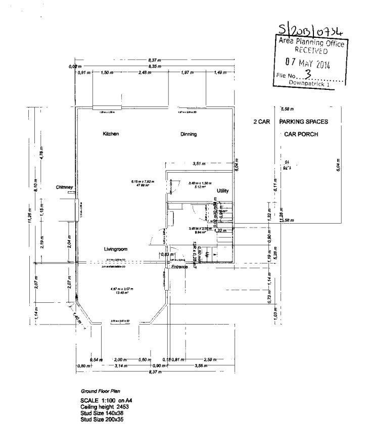
Lapsed Planning permission for a 3 bedroom detached family home. Located just a short distance from Belfast, this exceptional site offers the perfect blend of convenience and privacy. Positioned at the very end of a quiet cul-de-sac, it benefits from close proximity to all local amenities while still enjoying a high degree of seclusion, surrounded by mature greenery. The peaceful, noise-free setting makes it an ideal location for a private residence or a unique development opportunity.
ASKING PRICE
£65,000
FURTHER INFORMATION
For further information please contact Mark Leinster at our South Belfast Office on 02890 668888 or mleinster@simonbrien.c
LOCATION
Sunnyhill Park is situated off Upper Dunmurry Lane in South Belfast. It is very conveniently located close to Dunmurry Village with its array of amenities including, Tesco, local cafes, leisure facilities, parks, and an excellent range of schools nearby.
Lapsed Planning permission for a 3 bedroom detached family home. Located just a short distance from Belfast, this exceptional site offers the perfect blend of convenience and privacy. Positioned at the very end of a quiet cul-de-sac, it benefits from close proximity to all local amenities while still enjoying a high degree of seclusion, surrounded by mature greenery. The peaceful, noise-free setting makes it an ideal location for a private residence or a unique development opportunity.
ASKING PRICE
£65,000
FURTHER INFORMATION
For further information please contact Mark Leinster at our South Belfast Office on 02890 668888 or mleinster@simonbrien.c
LOCATION
Sunnyhill Park is situated off Upper Dunmurry Lane in South Belfast. It is very conveniently located close to Dunmurry Village with its array of amenities including, Tesco, local cafes, leisure facilities, parks, and an excellent range of schools nearby.
Property Location
Mortgage Calculator
Contact Agent
Contact Simon Brien (South Belfast)
Request More Information
Requesting Info about...
Site To Rear Of 86 Sunnyhill Park, Dunmurry
By registering your interest, you acknowledge our Privacy Policy
By registering your interest, you acknowledge our Privacy Policy