Contact Agent

Contact McGeowns

Contact McGeowns

Land

Site At 77 Edenderry Road

Edenderry, Belfast, BT8 8JN

asking price £200,000
  • Status For Sale
  • Property Type Land
  • Stamp Duty
    Higher amount applies when purchasing as buy to let or as an additional property
    £1,500 / £11,500*
  • Typical Mortgage
    Click price to use our mortgage calculator

Key Features & Description

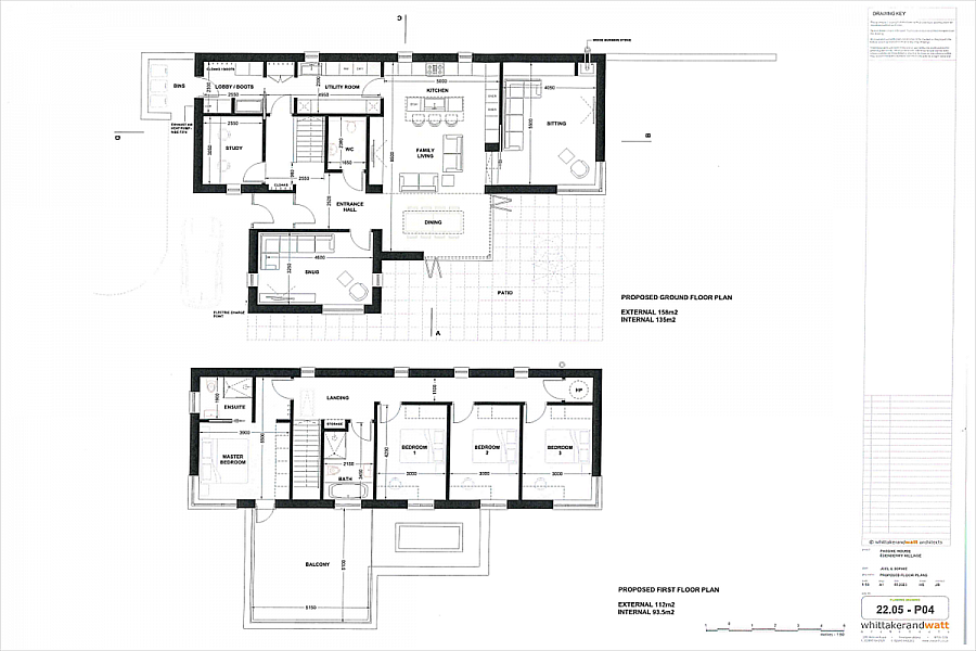
Site With Planning Application Approved for a Two Storey Dwelling Circa 2900 Sqft
Private Location With Orientation to take Advantage of the River and Golf Course Views
Description

A unique opportunity to acquire a building site with views over the River Lagan towards Malone Golf Club.

The site location provides a private situation with a convenient location within easy commute to Belfast City Centre and Lisburn.

Planning Application LA/04/2023/3064/F approved for a two storey dwelling circa 2900 Sqft with orientation to take advantage of the river and golf course views.

Property Location

Show Map

Mortgage Calculator

Disclaimer: The following calculations act as a guide only, and are based on a typical repayment mortgage model. Financial decisions should not be made based on these calculations and accuracy is not guaranteed. Always seek professional advice before making any financial decisions.

Contact Agent

Contact McGeowns

Contact McGeowns

Request More Information
Requesting Info about...
Site At 77 Edenderry Road, Edenderry, Belfast, BT8 8JN Site At 77 Edenderry Road, Edenderry, Belfast, BT8 8JN

By registering your interest, you acknowledge our Privacy Policy