Land
Site Drumshancorick Road
Rosslea, Enniskillen, BT92 7HP
offers over
£39,000
- Status For Sale
- Property Type Land
- Heating Not Specified
Key Features & Description
Option of more ground
Planning approval granted
Foundations in place
Ready to build
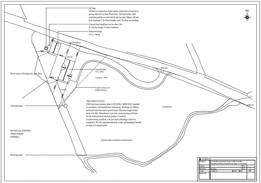
0.4 acre plot
Description
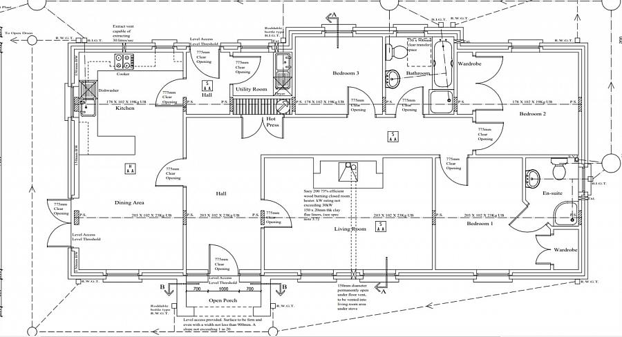
The planning is live, and the foundations in placed, with a building control letter confirming placement of foundations.
Services
We are advised that electric, phone, water and drainage are available in the vicinity. A buyer is recommended to obtain confirmation from their surveyor or solicitor.
Possible option of purchasing a further 1.7 acres of adjoining land, please contact the office for further information on this.
To arrange an on-site viewing or for further information contact our Enniskillen estate agent`s office.
Tel: 02866 022200
Email: info@watterspropertysales.co.uk
For the exact location use this link
https://what3words.com/bracing.observers.rear
what3words /// bikes.help.shrub
Notice
Please note we have not tested any apparatus, fixtures, fittings, or services. Interested parties must undertake their own investigation into the working order of these items. All measurements are approximate and photographs provided for guidance only.
Utilities
Electric: Mains Supply
Gas: None
Water: Mains Supply
Sewerage: None
Broadband: None
Telephone: None
Other Items
Heating: Not Specified
Garden/Outside Space: No
Parking: No
Garage: No
The planning is live, and the foundations in placed, with a building control letter confirming placement of foundations.
Services
We are advised that electric, phone, water and drainage are available in the vicinity. A buyer is recommended to obtain confirmation from their surveyor or solicitor.
Possible option of purchasing a further 1.7 acres of adjoining land, please contact the office for further information on this.
To arrange an on-site viewing or for further information contact our Enniskillen estate agent`s office.
Tel: 02866 022200
Email: info@watterspropertysales.co.uk
For the exact location use this link
https://what3words.com/bracing.observers.rear
what3words /// bikes.help.shrub
Notice
Please note we have not tested any apparatus, fixtures, fittings, or services. Interested parties must undertake their own investigation into the working order of these items. All measurements are approximate and photographs provided for guidance only.
Utilities
Electric: Mains Supply
Gas: None
Water: Mains Supply
Sewerage: None
Broadband: None
Telephone: None
Other Items
Heating: Not Specified
Garden/Outside Space: No
Parking: No
Garage: No
Property Location
Mortgage Calculator
Contact Agent
Contact Watters Property Sales
Request More Information
Requesting Info about...
Site Drumshancorick Road, Rosslea, Enniskillen, BT92 7HP
By registering your interest, you acknowledge our Privacy Policy
By registering your interest, you acknowledge our Privacy Policy