Contact Agent

Contact Watters Property Sales

Contact Watters Property Sales

Land

32 Lacky Road

Roslea, Enniskillen, BT92 7NQ

guide price £19,950
  • Status For Sale
  • Property Type Land
  • Receptions 1
  • Bathrooms 1
  • Heating Not Specified
  • Typical Mortgage
    Click price to use our mortgage calculator

Key Features & Description

Circa 0.5 acre building site situated in Aghadrumsee
Planning passed for a detached dwelling & garage
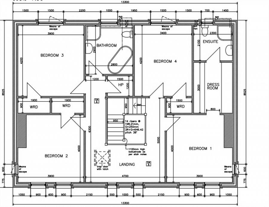
Spacious home offering four bedrooms
Countryside location yet convenient to neighbouring Towns/Villages
Roslea 4 miles & Clones 4 miles drive
Certificate of lawfullness of proposed development in place (CLUD)
Description
For sale by Watters Property Sales via the iamsold Bidding Platform

Please note this property will be offered by online auction (unless sold prior). For auction date and time please visit iamsoldni.com. Vendors may decide to accept pre-auction bids so please register your interest with us to avoid disappointment.

Circa 0.5 acre building site with planning granted for a four bedroom detached dwelling and garage.

The land is located in the village of Aghadrumsee in Co.Fermanagh, neighbouring towns include Roslea and Clones in Co Monaghan.

Planning ref:- L/2007/1160/F

Intending purchasers are advised to seek independent planning advice if necessary before placing an offer with the agent and is recommended to obtain confirmation regarding services from their surveyor or solicitor.

For further information or to arrange a site visit get in touch now.

Get in touch now to arrange your onsite viewing!

Tel: 028 66 022200

Email: info@watterspropertysales.co.uk

For the exact location, copy the link below into the what3words website.

Auctioneers Comments:
This property is for sale under Traditional Auction terms. Should you view, offer or bid on the property, your information will be shared with the Auctioneer, iamsold.
With this auction method, an immediate exchange of contracts takes place with completion of the purchase required to take place within 28 days from the date of exchange of contracts.

The buyer is also required to make a payment of a non-refundable, part payment 10% Contract Deposit to a minimum of £6,000.00.
In addition to their Contract Deposit, the Buyer must pay an Administration Fee to the Auctioneer of 1.80% of the final agreed sale price including VAT, subject to a minimum of £2,400.00 including VAT for conducting the auction.

Buyers will be required to go through an identification verification process with iamsold and provide proof of how the purchase would be funded.
Terms and conditions apply to the traditional auction method and you are required to check the Buyer Information Pack for any special terms and conditions associated with this lot.

The property is subject to an undisclosed Reserve Price with both the Reserve Price and Starting Bid being subject to change.


what3words /// happy.mavericks.simply

Notice
Please note we have not tested any apparatus, fixtures, fittings, or services. Interested parties must undertake their own investigation into the working order of these items. All measurements are approximate and photographs provided for guidance only.

Utilities
Electric: Unknown
Gas: Unknown
Water: Unknown
Sewerage: Unknown
Broadband: Unknown
Telephone: Unknown

Other Items
Heating: Not Specified
Garden/Outside Space: No
Parking: No
Garage: No

Property Location

Show Map

Mortgage Calculator

Disclaimer: The following calculations act as a guide only, and are based on a typical repayment mortgage model. Financial decisions should not be made based on these calculations and accuracy is not guaranteed. Always seek professional advice before making any financial decisions.

Contact Agent

Contact Watters Property Sales

Contact Watters Property Sales

Request More Information
Requesting Info about...
32 Lacky Road, Roslea, Enniskillen, BT92 7NQ 32 Lacky Road, Roslea, Enniskillen, BT92 7NQ

By registering your interest, you acknowledge our Privacy Policy