Contact Agent

Contact Watters Property Sales

Contact Watters Property Sales

Land

Developement Land Edenmore

Tempo, Enniskillen, BT94 3AR

price £155,000
  • Status For Sale
  • Property Type Land
  • Heating Not Specified
  • Stamp Duty
    Higher amount applies when purchasing as buy to let or as an additional property
    £600 / £8,350*
  • Typical Mortgage
    Click price to use our mortgage calculator

Description

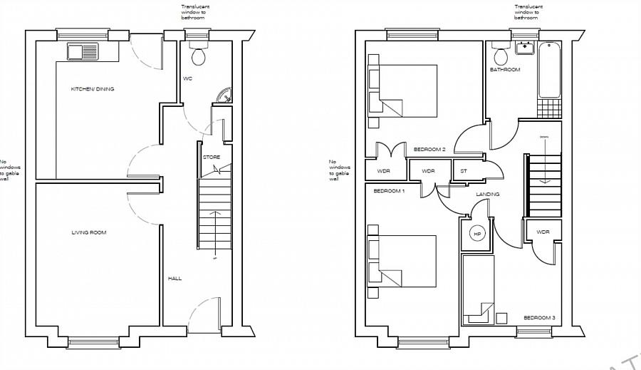
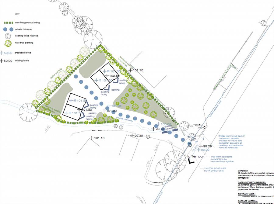
An opportunity to acquire a parcel of land totalling circa 5.5 acres with a section of this ground having outline planning permission for four private dwellings together with private driveway access.


The area with outline planning is highlighted in red leaving the adjoining hope ground in blue outline. Occupying a central position within the edge of Tempo. Planning reference: LA10/2015/0811/0 Services:Close to the site.


Location: The plot is located in a pleasant elevated residential position close to local amenities.


Your Next Move


Thinking of selling, we can offer you a FREE VALUATION of your land or property. Mortgage advice is also available from our in-house Mortgage Advisor, you can find out how much you can borrow within minutes instead of waiting weeks to go through your high street bank for a decision.


To arrange a viewing or for further information contact our Enniskillen estate agent’s office.


Tel: 02866 022200


Email: info@watterspropertysales.co.uk



Notice
Please note we have not tested any apparatus, fixtures, fittings, or services. Interested parties must undertake their own investigation into the working order of these items. All measurements are approximate and photographs provided for guidance only.

Utilities
Electric: Unknown
Gas: Unknown
Water: Unknown
Sewerage: Unknown
Broadband: Unknown
Telephone: Unknown

Other Items
Heating: Not Specified
Garden/Outside Space: No
Parking: No
Garage: No

Property Location

Show Map

Mortgage Calculator

Disclaimer: The following calculations act as a guide only, and are based on a typical repayment mortgage model. Financial decisions should not be made based on these calculations and accuracy is not guaranteed. Always seek professional advice before making any financial decisions.

Contact Agent

Contact Watters Property Sales

Contact Watters Property Sales

Request More Information
Requesting Info about...
Developement Land Edenmore, Tempo, Enniskillen, BT94 3AR Developement Land Edenmore, Tempo, Enniskillen, BT94 3AR

By registering your interest, you acknowledge our Privacy Policy