Land (Single Dwelling)
The Old Rectory Derrylin Road
Enniskillen, BT74 5AJ
Price on Application
- Status For Sale
- Property Type Land (Single Dwelling)
- Heating Not Specified
Description
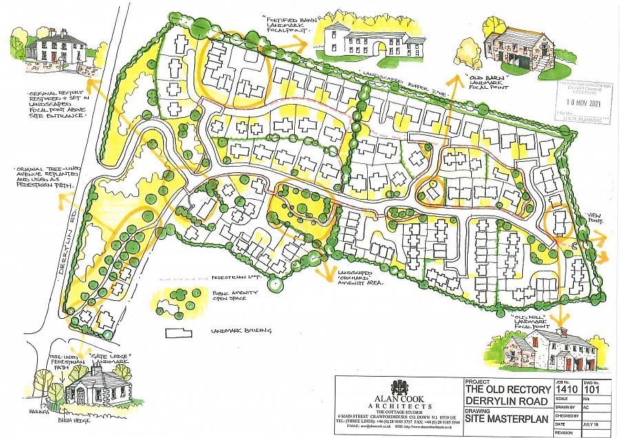
Prime 18-Acre Development Site Full Planning for 120 Homes
A rare chance to secure a circa 18-acre development site with full planning permission for 120 mixed-type homes on the Derrylin Road, just 2 miles from Enniskillen town centre.
Extensive road frontage on a primary commuter route
Elevated site with stunning countryside views
Approved planning (Ref: LA10/2021/1036/F) for a variety of housing types
Strategic location set to benefit from the upcoming nearby bypass
Positioned for growth, this prime site offers developers an exceptional opportunity to deliver a high-quality residential scheme in a sought-after area.
Call our office on 028 6632 8282 for more details.
Notice
Please note we have not tested any apparatus, fixtures, fittings, or services. Interested parties must undertake their own investigation into the working order of these items. All measurements are approximate and photographs provided for guidance only.
Utilities
Electric: Unknown
Gas: Unknown
Water: Unknown
Sewerage: Unknown
Broadband: Unknown
Telephone: Unknown
Other Items
Heating: Not Specified
Garden/Outside Space: No
Parking: No
Garage: No
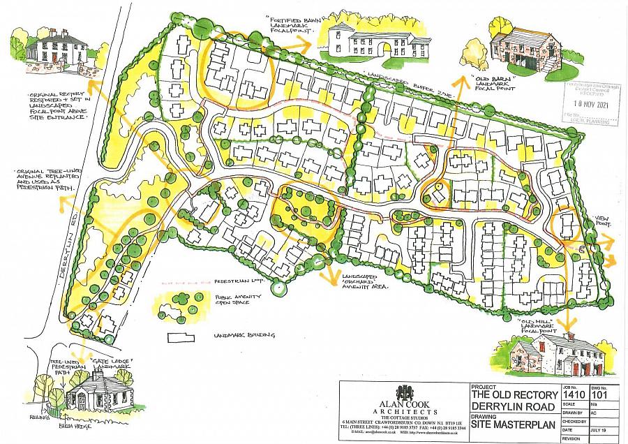
A rare chance to secure a circa 18-acre development site with full planning permission for 120 mixed-type homes on the Derrylin Road, just 2 miles from Enniskillen town centre.
Extensive road frontage on a primary commuter route
Elevated site with stunning countryside views
Approved planning (Ref: LA10/2021/1036/F) for a variety of housing types
Strategic location set to benefit from the upcoming nearby bypass
Positioned for growth, this prime site offers developers an exceptional opportunity to deliver a high-quality residential scheme in a sought-after area.
Call our office on 028 6632 8282 for more details.
Notice
Please note we have not tested any apparatus, fixtures, fittings, or services. Interested parties must undertake their own investigation into the working order of these items. All measurements are approximate and photographs provided for guidance only.
Utilities
Electric: Unknown
Gas: Unknown
Water: Unknown
Sewerage: Unknown
Broadband: Unknown
Telephone: Unknown
Other Items
Heating: Not Specified
Garden/Outside Space: No
Parking: No
Garage: No
Video
Property Location
Contact Agent
Contact McGovern Estate Agents
Request More Information
Requesting Info about...
The Old Rectory Derrylin Road, Enniskillen, BT74 5AJ
By registering your interest, you acknowledge our Privacy Policy
By registering your interest, you acknowledge our Privacy Policy