4 Bed Townhouse
18 Rossorry Church Road
Enniskillen, BT74 7HB
offers over
£88,000
Description
4-Bedroom Townhouse in Enniskillen Town
A spacious four-bedroom townhouse set over two floors, located on the ever-popular Rossorry Church Road. This property offers huge potential and a private rear garden, ideal for those seeking a project with scope for improvements.
- Well-laid-out accommodation across two levels
- Four Double Bedrooms.
- Private rear outdoor space.
- Desirable location, walking distance to schools, shops, and local amenities.
- In need of a renovation, offering a blank canvas for improvement.
Whether you`re an investor, developer, or a buyer with vision, this property presents a rare opportunity to add value in a prime Enniskillen setting.
For further details, contact McGovern Estate Agents on 028 6632 8282
Viewing strictly by appointment only.
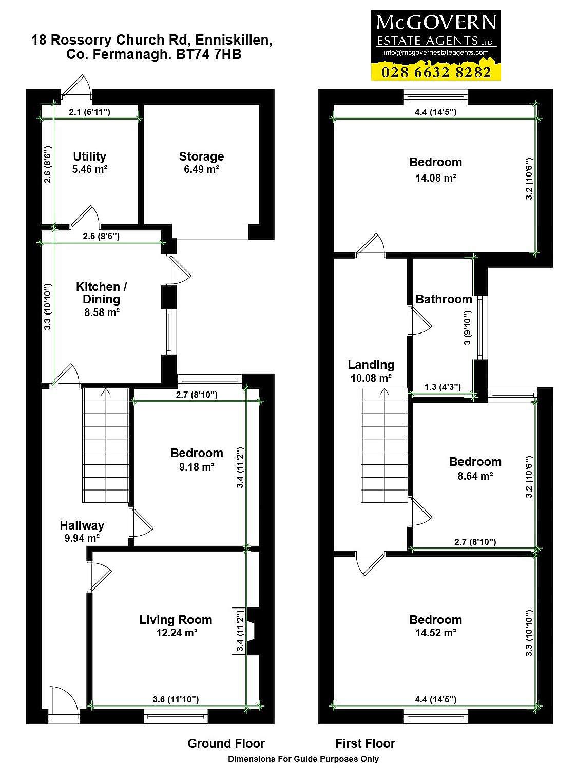
See floorplan for layout and dimensions.
Notice
Please note we have not tested any apparatus, fixtures, fittings, or services. Interested parties must undertake their own investigation into the working order of these items. All measurements are approximate and photographs provided for guidance only.
Rates Payable
Fermanagh and Omagh District Council, For Period April 2025 To March 2026 £774.08
Utilities
Electric: Mains Supply
Gas: None
Water: Mains Supply
Sewerage: Mains Supply
Broadband: Unknown
Telephone: Unknown
Other Items
Heating: Electric Storage Heaters
Garden/Outside Space: Yes
Parking: No
Garage: No
A spacious four-bedroom townhouse set over two floors, located on the ever-popular Rossorry Church Road. This property offers huge potential and a private rear garden, ideal for those seeking a project with scope for improvements.
- Well-laid-out accommodation across two levels
- Four Double Bedrooms.
- Private rear outdoor space.
- Desirable location, walking distance to schools, shops, and local amenities.
- In need of a renovation, offering a blank canvas for improvement.
Whether you`re an investor, developer, or a buyer with vision, this property presents a rare opportunity to add value in a prime Enniskillen setting.
For further details, contact McGovern Estate Agents on 028 6632 8282
Viewing strictly by appointment only.
See floorplan for layout and dimensions.
Notice
Please note we have not tested any apparatus, fixtures, fittings, or services. Interested parties must undertake their own investigation into the working order of these items. All measurements are approximate and photographs provided for guidance only.
Rates Payable
Fermanagh and Omagh District Council, For Period April 2025 To March 2026 £774.08
Utilities
Electric: Mains Supply
Gas: None
Water: Mains Supply
Sewerage: Mains Supply
Broadband: Unknown
Telephone: Unknown
Other Items
Heating: Electric Storage Heaters
Garden/Outside Space: Yes
Parking: No
Garage: No
Broadband Speed Availability
Potential Speeds for 18 Rossorry Church Road
Max Download
10000
Mbps
Max Upload
10000
MbpsThe speeds indicated represent the maximum estimated fixed-line speeds as predicted by Ofcom. Please note that these are estimates, and actual service availability and speeds may differ.
Property Location
Mortgage Calculator
Contact Agent
Contact McGovern Estate Agents
Request More Information
Requesting Info about...
18 Rossorry Church Road, Enniskillen, BT74 7HB
By registering your interest, you acknowledge our Privacy Policy
By registering your interest, you acknowledge our Privacy Policy