Contact Agent

Contact Templeton Robinson (Lisburn Road)

Contact Templeton Robinson (Lisburn Road)

4 Bed Terrace House

74 Tildarg Avenue

Blacks Road, Belfast, BT11 9LW

offers over £149,950
  • Status For Sale
  • Property Type Terrace
  • Bedrooms 4
  • Receptions 1
  • Heating Gas
  • EPC Rating D67 / D67 -
  • Stamp Duty
    Higher amount applies when purchasing as buy to let or as an additional property
    £499 / £7,997*
  • Typical Mortgage
    Click price to use our mortgage calculator
EPC Rating

Key Features & Description

Excellent mid terrace property
Living room
Kitchen/Dining area
Four well-proportioned bedrooms
Ground floor bathroom
Circa 903 sq ft
uPVC double glazed window frames
Gas fired central heating
Garden areas to front and rear
Description
An excellent mid terrace property off Blacks Road. The well-presented accommodation comprises a living room, kitchen and dining area with fitted units and ground floor bathroom. Upstairs are four well proportioned bedrooms.
Additionally the property benefits from gas fired central heating, uPVC double glazed window frames and garden area to front and rear.
The property will have wide ranging appeal to owner occupiers and investors. We can highly recommend an internal inspection.

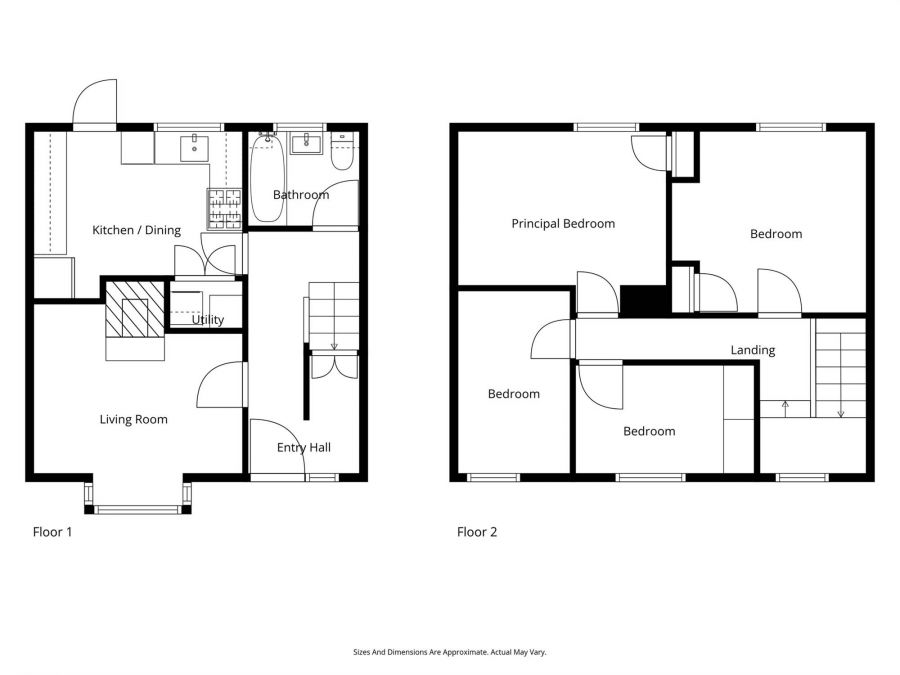
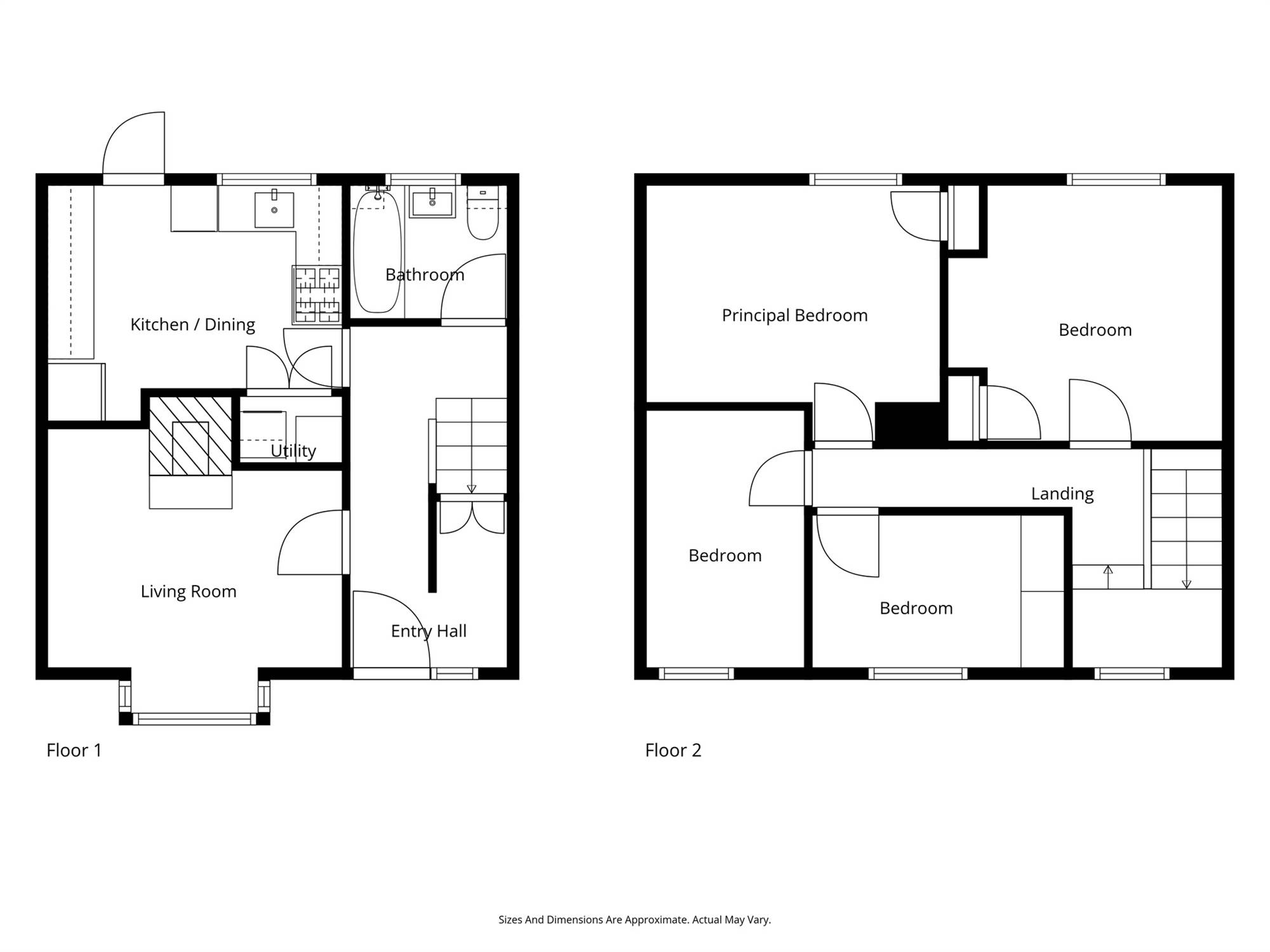
Rooms

ENTRANCE HALL:
LIVING ROOM: 12' 6" X 12' 1" (3.81m X 3.68m)
KITCHEN/DINING AREA: 12' 6" X 10' 0" (3.81m X 3.05m) Range of high and low level units, single drainer stainless steel sink unit, mixer taps. Utlity cupboard, plumbed for washing machine, part tiled walls.
BATHROOM: Panelled bath, electric shower over, pedestal wash hand basin, low flush wc.
BEDROOM (1): 12' 6" X 10' 11" (3.81m X 3.33m) Built-in cupboard.
BEDROOM (2): 11' 8" X 10' 11" (3.56m X 3.33m) Built-in cupboard.
BEDROOM (3): 10' 11" X 6' 8" (3.33m X 2.03m)
BEDROOM (4): 10' 9" X 6' 6" (3.28m X 1.98m)
Garden area to front and enclosed rear with lawn and paved area.

Broadband Speed Availability

Ultrafast

Potential Speeds for 74 Tildarg Avenue

Max Download
10000
Mbps
Max Upload
10000
Mbps
The speeds indicated represent the maximum estimated fixed-line speeds as predicted by Ofcom. Please note that these are estimates, and actual service availability and speeds may differ.

Property Location

Show Map

Mortgage Calculator

Disclaimer: The following calculations act as a guide only, and are based on a typical repayment mortgage model. Financial decisions should not be made based on these calculations and accuracy is not guaranteed. Always seek professional advice before making any financial decisions.

Directions

Blacks Road from Motorway. Left hand side, approximately one mile.

Contact Agent

Contact Templeton Robinson (Lisburn Road)

Contact Templeton Robinson (Lisburn Road)

Request More Information
Requesting Info about...
74 Tildarg Avenue, Blacks Road, Belfast, BT11 9LW 74 Tildarg Avenue, Blacks Road, Belfast, BT11 9LW

By registering your interest, you acknowledge our Privacy Policy