Contact Agent
Contact Templeton Robinson (Lisburn Road)
3 Bed Detached House
47 Katrine Park
Finaghy, Belfast, BT10 0HT
offers over
£264,950
Key Features & Description
Three Bedroom Detached Family Home in Ideal Residential Location Close to Many Amenities
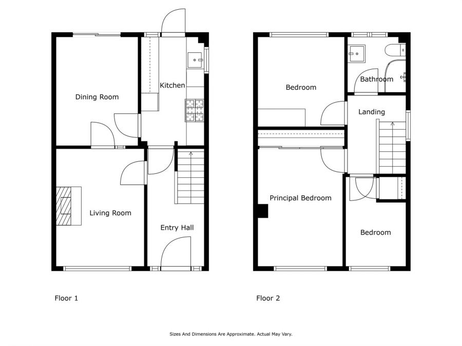
Entrance Hall with Under Stairs Storage
Living Room with Doors to Dining Room
Recently Fitted Modern Kitchen
Three Well Proportioned Bedrooms
Contemporary Shower Room
Wooden floored roofspace providing ample storage
Front and Rear Gardens in Lawns with Beds and Patio Area
Driveway Parking to Detached Garage
Quiet Cul-De-Sac Location Yet Host of Amenities in Upper Malone & Finaghy Close By Including; Schools, Shops, Cafes and Restaurants and Easy Commuting Distance into Belfast and Lisburn Cities
Ideal for Wide Range of Buyers Including First Time Buyers, Young Professionals & Families
Description
This detached family home is located in an established and sought residential location, at the end of a quiet cul de sac. Making an ideal position for families or downsizers alike.
Briefly the accommodation comprises; bright entrance hall, good sized living room with doors into dining room, recently installed modern kitchen and access to the rear garden. On the first floor, there are three well proportioned bedrooms and contemporary shower room. A wooden floored roofspace provides ample storage.
Externally the property benefits from front and back gardens and driveway parking leading to garage which has utility space and wiring for a car charger.
There are many amenities close by including schools, shops and excellent transport links, we would recommend early viewing.
This detached family home is located in an established and sought residential location, at the end of a quiet cul de sac. Making an ideal position for families or downsizers alike.
Briefly the accommodation comprises; bright entrance hall, good sized living room with doors into dining room, recently installed modern kitchen and access to the rear garden. On the first floor, there are three well proportioned bedrooms and contemporary shower room. A wooden floored roofspace provides ample storage.
Externally the property benefits from front and back gardens and driveway parking leading to garage which has utility space and wiring for a car charger.
There are many amenities close by including schools, shops and excellent transport links, we would recommend early viewing.
Rooms
uPVC front door with glazed inset and panels to:
SPACIOUS RECEPTION HALL:
Under stairs storage.
LIVING ROOM: 13' 0" X 9' 9" (3.96m X 2.97m)
Electric fire, glazed door and panels to:
DINING ROOM: 12' 0" X 9' 0" (3.66m X 2.74m)
Wood and glazed display cabinet, uPVC patio door to rear garden.
MODERN KITCHEN: 12' 0" X 7' 0" (3.66m X 2.13m)
Modern fitted kitchen with range of units, five ring gas hob, Rangemaster extractor hood, electric oven, stainless steel sink unit, integrated fridge/freezer, integrated dishwasher, quartz work surfaces, tiled splashback, wood effect laminate tiled floor, uPVC door to rear.
LANDING:
Access to wooden floored roofspace.
BEDROOM (1): 13' 0" X 9' 7" (3.96m X 2.92m)
Built-in extensive wardrobe with mirror fronted sliding doors.
BEDROOM (2): 9' 11" X 9' 7" (3.02m X 2.74m)
Double bedroom.
BEDROOM (3): 9' 11" X 6' 8" (3.02m X 2.03m)
Built-in robe.
SHOWER ROOM:
Modern suite comprising deluxe shower unit with steam and music facility, low flush wc, sink unit with vanity unit below, heated towel rail, tiled splashback.
DETACHED GARAGE:
Power and light, up and over door, utility area plumbed for washing machine, space for tumble dryer, sink unit and storage.
FRONT:
Front garden in lawn with shrubs. Driveway parking leading to garage. Wire for car charger.
REAR:
Lawn and patio area.
Broadband Speed Availability
Potential Speeds for 47 Katrine Park
Max Download
1800
Mbps
Max Upload
220
MbpsThe speeds indicated represent the maximum estimated fixed-line speeds as predicted by Ofcom. Please note that these are estimates, and actual service availability and speeds may differ.
Property Location
Mortgage Calculator
Directions
Turn off Finaghy Road South into Trossachs Drive and Katrine Park is a short distance on the right hand side.
Contact Agent
Contact Templeton Robinson (Lisburn Road)
Request More Information
Requesting Info about...
47 Katrine Park, Finaghy, Belfast, BT10 0HT
By registering your interest, you acknowledge our Privacy Policy
By registering your interest, you acknowledge our Privacy Policy