Contact Agent
Contact Templeton Robinson (North Down)
3 Bed Detached House
19 Orlock Lane
Groomsport, Bangor, BT19 6LS
offers around
£525,000
Key Features & Description
Fabulous Detached Family Residence
Situated in an Area of Renowned Natural Beauty and Tranquillity
Dramatic views from Orlock Head over the Copelands and Beyond
Property offers amazing vista from the Principal Rooms and Gardens
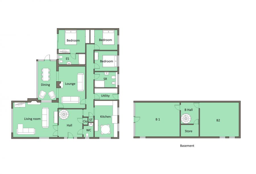
Entrance Hall with Cloakroom WC - plus Spiral Staircase to Lower Level
Large Living Room with Cast Iron Multi-Fuel Burning Stove - Picture Window
Lounge with Gas Stove with steps to Dining Area - with Patio Door to Gardens
Kitchen with Picture Window
Separate Utility Room / Shower Room
Three Bedrooms to include Principal Bedroom with Ensuite Shower
Lower Level - Two Large Basement Rooms with access to Outside; plus Store. These are very large Rooms and have great potential for a variety of uses - Games Room; Study/Home Office; Teenagers Annex
Oil Heating / uPVC Double Glazed
Driveway Parking for several vehicles
Enclosed Gardens laid in Lawn with various Patio Areas with Amazing views
Pergola, ideal Patio for Alfresco Dining and Summer Entertaining / Fish Pond
Exclusive Location and approached by private roadway - Area surrounded by National Trust Land; safeguarding Orlock as an area of outstanding natural beauty
Popular and Sought After Location
Fabulous North Down Golf Clubs & Sailing Clubs - all within easy reach
Description
It gives us immense pleasure to bring to market this fabulous detached family residence which enjoys a superb setting with dramatic views from Orlock Head over the Irish Sea and the Copeland Islands and beyond to the Scottish coastline. It offers amazing vista from the principal rooms and the superb manicured gardens. The ever changing nautical traffic is undoubtedly a unique feature of this lovely home.
The accommodation which is deceptively spacious briefly comprises on the Ground Floor - Entrance Hall, Cloakroom WC, Living Room with cast iron multi-fuel stove, Lounge with cast iron gas fire and steps to the Dining Area with patio garden door, Kitchen with picture window, separate Utility Room, Shower Room, Three Bedrooms to include Principal Bedroom with Ensuite. The property is further enhanced with a Lower Level where access is via a Spiral Staircase from the Entrance Hall leading to Two large Basement Rooms with further access to the outside. Outside there is ample parking to the front and the private enclosed gardens are laid in lawn with various patio areas - ideal for Alfresco dining.
The exclusive location is approached by a private roadway and the area is surrounded by National Trust land - safeguarding Orlock as an area of outstanding natural beauty. All in all, this residence is conveniently located for all leading North Down schools and Bangor Train Station a short drive away. Leisure activities of Sailing and Golfing are all on your doorstep and the Agent strongly encourages arranging an early viewing.
It gives us immense pleasure to bring to market this fabulous detached family residence which enjoys a superb setting with dramatic views from Orlock Head over the Irish Sea and the Copeland Islands and beyond to the Scottish coastline. It offers amazing vista from the principal rooms and the superb manicured gardens. The ever changing nautical traffic is undoubtedly a unique feature of this lovely home.
The accommodation which is deceptively spacious briefly comprises on the Ground Floor - Entrance Hall, Cloakroom WC, Living Room with cast iron multi-fuel stove, Lounge with cast iron gas fire and steps to the Dining Area with patio garden door, Kitchen with picture window, separate Utility Room, Shower Room, Three Bedrooms to include Principal Bedroom with Ensuite. The property is further enhanced with a Lower Level where access is via a Spiral Staircase from the Entrance Hall leading to Two large Basement Rooms with further access to the outside. Outside there is ample parking to the front and the private enclosed gardens are laid in lawn with various patio areas - ideal for Alfresco dining.
The exclusive location is approached by a private roadway and the area is surrounded by National Trust land - safeguarding Orlock as an area of outstanding natural beauty. All in all, this residence is conveniently located for all leading North Down schools and Bangor Train Station a short drive away. Leisure activities of Sailing and Golfing are all on your doorstep and the Agent strongly encourages arranging an early viewing.
Rooms
uPVC door to:
ENTRANCE HALL:
Chinese slate floor.
CLOAKROOM:
Low flush wc, pedestal wash hand basin, cloaks area.
LIVING ROOM: 19' 0" X 15' 0" (5.79m X 4.57m)
Brick fireplace, cast iron multi-fuel burning stove, tongue and groove ceiling, Chinese slate floor.
LOUNGE: 18' 0" X 11' 11" (5.49m X 3.63m)
Cast iron stove, gas fire. Pitch pine flooring. Steps to:
DINING AREA: 16' 0" X 8' 0" (4.88m X 2.44m)
uPVC door to garden.
KITCHEN: 16' 0" X 10' 0" (4.88m X 3.05m)
Solid oak kitchen with excellent range of high and low level units, Corrian work surfaces, four ring Gorenje hob, Neff microwave and oven, integrated fridge/freezer. Stainless steel sink unit with mixer tap, built-in wine rack. Picture window, low voltage spotlights.
UTILITY ROOM:
Further range of units, plumbed for washing machine.
SHOWER ROOM:
Walk-in shower cubicle with thermostatic shower unit, bidet. Low flush wc, wash hand basin, ceramic tiled floor, fully tiled walls, LED lighting. Extractor fan.
PRINCIPAL BEDROOM: 11' 11" X 10' 0" (3.63m X 3.05m)
Built-in robe with sliding mirrored doors. Sliding door to outside.
ENSUITE SHOWER ROOM:
Fully tiled shower cubicle with thermostatic shower unit and includes steam function with a built-in seat, bidet, low flush wc, pedestal wash hand basin, ceramic tiled floor, fully tiled walls.
BEDROOM (3): 10' 0" X 8' 10" (3.05m X 2.69m)
BEDROOM (2): 10' 0" X 8' 10" (3.05m X 2.69m)
Built-in robes with sliding mirrored doors.
From Hall - Spiral staircase to . . .
LANDING:
Cupboard. Hotpress.
BASEMENT ROOM (1): 20' 0" X 14' 11" (6.10m X 4.55m)
Oil fired boiler. Door to outside.
BASEMENT ROOM (2): 17' 0" X 15' 0" (5.18m X 4.57m)
Driveway with ample parking. Enclosed garden laid in lawn.
Extensive brick paviour patio area. Fish pond. Garden shed.
Enclosed rear patio with a variety of shrubs. Pergola, ideal patio for dining alfresco.
Video
Broadband Speed Availability
Potential Speeds for 19 Orlock Lane
Max Download
80
Mbps
Max Upload
20
MbpsThe speeds indicated represent the maximum estimated fixed-line speeds as predicted by Ofcom. Please note that these are estimates, and actual service availability and speeds may differ.
Property Location
Mortgage Calculator
Directions
Travelling from Groomsport towards Donaghadee take Orlock Road on left after approximately 1 mile, then second left into Coastguard Lane, 200 yards turn right and 100 yards turn right again. Continue on to find property on left.
Contact Agent
Contact Templeton Robinson (North Down)
Request More Information
Requesting Info about...
19 Orlock Lane, Groomsport, Bangor, BT19 6LS
By registering your interest, you acknowledge our Privacy Policy
By registering your interest, you acknowledge our Privacy Policy