5 Bed Detached House
34 Windmill Road
Hillsborough, Royal Hillsborough, BT26 6LS
asking price
£799,950
- Status For Sale
- Property Type Detached
- Bedrooms 5
- Receptions 3
- Heating Gas
-
Stamp Duty
Higher amount applies when purchasing as buy to let or as an additional property£29,998 / £69,995*
Description
A well located new house nestled in a most pleasant countryside setting with a southern aspect to the rear located only 2.7 miles from the historic Royal Hillsborough village providing quick access to the A1 and to the M1 at Sprucefield.
This most appealing house is at an advanced stage of construction and yet allows the purchaser the opportunity to personalise the home to their own tastes. Within the price there will be an allowance of £50,000 for kitchen fittings, utility room, sanitary ware etc.
The specification includes granite sills and kerbstone, garden laid in lawn and seeded. PVC triple glazed windows, Gas underfloor heating, large double garage with a multifunctioanl, fully insulated first floor room which could become a games room, 'granny flat' or the option for an office to work from home.
The house provides most spacious accommodation of 3,000 sq ft throughout with five bedrooms (one being on the ground floor).
The accommodation in brief comprises:
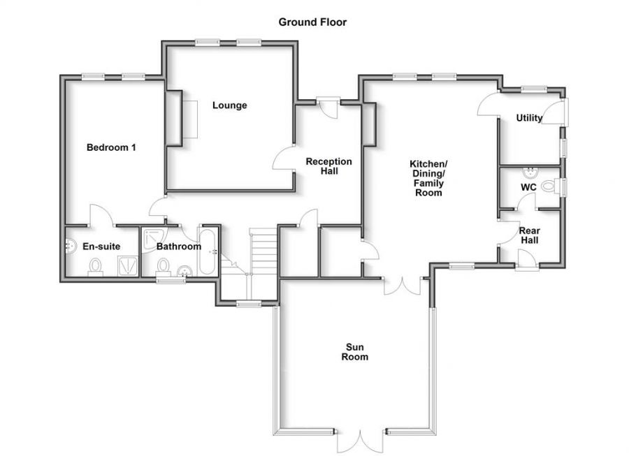
Ground Floor - Lounge, sun room, open plan kitchen/family room/dining room, utility room, rear hall with cloakroom (WC and wash hand basin), bedroom and bathroom.
First Floor - Four further bedrooms - master with ensuite shower room and dressing room. Separate bathroom.
Outside
Spacious driveway with parking to front, side and rear.
Large double garage with privision for a mobility shower and wc/wet room. Internal stairs to large open plan first floor area which is fully insulated and suitable for a wide variety of uses including games room, 'granny flat' or work from home office space.
Rear garden with paved patio to include feature private decked area with screening to sides and suitable as a hot tub/ barbecue/ sunbathing area.
This most appealing house is at an advanced stage of construction and yet allows the purchaser the opportunity to personalise the home to their own tastes. Within the price there will be an allowance of £50,000 for kitchen fittings, utility room, sanitary ware etc.
The specification includes granite sills and kerbstone, garden laid in lawn and seeded. PVC triple glazed windows, Gas underfloor heating, large double garage with a multifunctioanl, fully insulated first floor room which could become a games room, 'granny flat' or the option for an office to work from home.
The house provides most spacious accommodation of 3,000 sq ft throughout with five bedrooms (one being on the ground floor).
The accommodation in brief comprises:
Ground Floor - Lounge, sun room, open plan kitchen/family room/dining room, utility room, rear hall with cloakroom (WC and wash hand basin), bedroom and bathroom.
First Floor - Four further bedrooms - master with ensuite shower room and dressing room. Separate bathroom.
Outside
Spacious driveway with parking to front, side and rear.
Large double garage with privision for a mobility shower and wc/wet room. Internal stairs to large open plan first floor area which is fully insulated and suitable for a wide variety of uses including games room, 'granny flat' or work from home office space.
Rear garden with paved patio to include feature private decked area with screening to sides and suitable as a hot tub/ barbecue/ sunbathing area.
Rooms
SHOWER ROOM:
BEDROOM 5: 16' 7" X 9' 7" (5.05m X 2.92m)
BEDROOM 4: 16' 9" X 18' 4" (5.10m X 5.58m)
BEDROOM 3: 15' 1" X 15' 3" (4.60m X 4.65m)
DRESSING ROOM: 11' 1" X 6' 7" (3.38m X 2.00m)
MASTER BEDROOM: 14' 9" X 17' 2" (4.50m X 5.22m)
Walk-in wardrobe. Ensuite shower room.
LANDING
BATHROOM
BEDROOM 1: 16' 11" X 11' 3" (5.15m X 3.42m)
En suite shower room.
CLOAKROOM:
WC and wash hand basin.
REAR HALL 6' 7" X 5' 7" (2.00m X 1.70m)
UTILITY/LAUNDRY ROOM: 7' 10" X 4' 11" (2.40m X 1.50m)
KITCHEN/FAMILY ROOM: 21' 0" X 13' 9" (6.40m X 4.19m)
SUN ROOM: 16' 5" X 16' 5" (5.00m X 5.00m)
LOUNGE: 16' 5" X 14' 7" (5.00m X 4.45m)
Fireplace/ stove provision.
Property Location
Mortgage Calculator
Directions
From Hillsborough take the Ballynahinch Road for approximately 1.5 miles. Windmill Road is off to the left hand side. Proceed along this road for approximately 1 mile and the property is on the right hand side - see For Sale board.
Contact Agent
Contact Dalzell Property (Lisburn)
Request More Information
Requesting Info about...
34 Windmill Road, Hillsborough, Royal Hillsborough, BT26 6LS
By registering your interest, you acknowledge our Privacy Policy
By registering your interest, you acknowledge our Privacy Policy