Office
FOR SALE OR TO LET , 1-3 Ballynahinch Street
Hillsborough, Royal Hillsborough, BT26 6AW
yearly
£35,000
- Status For Rent
- Property Type Office
- Available From 21/05/2025
- Furnished Unfurnished
- EPC Rating D79 -
Property Financials
- Yearly £35,000
- Lease 12 Months Plus
Description
Located at the junction of Main Street, Lisburn Street and Ballynahinch Street this commercial property is in an ideal location in the hub of the village and also within close proximity to the A1 and only minutes drive from the M1 at Sprucefield and to Lisburn and Belfast.
The property is ideal for use as offices, ground floor retail and also as a restaurant. Alternatively, subject to planning, may be suitable for redevelopment as residential.
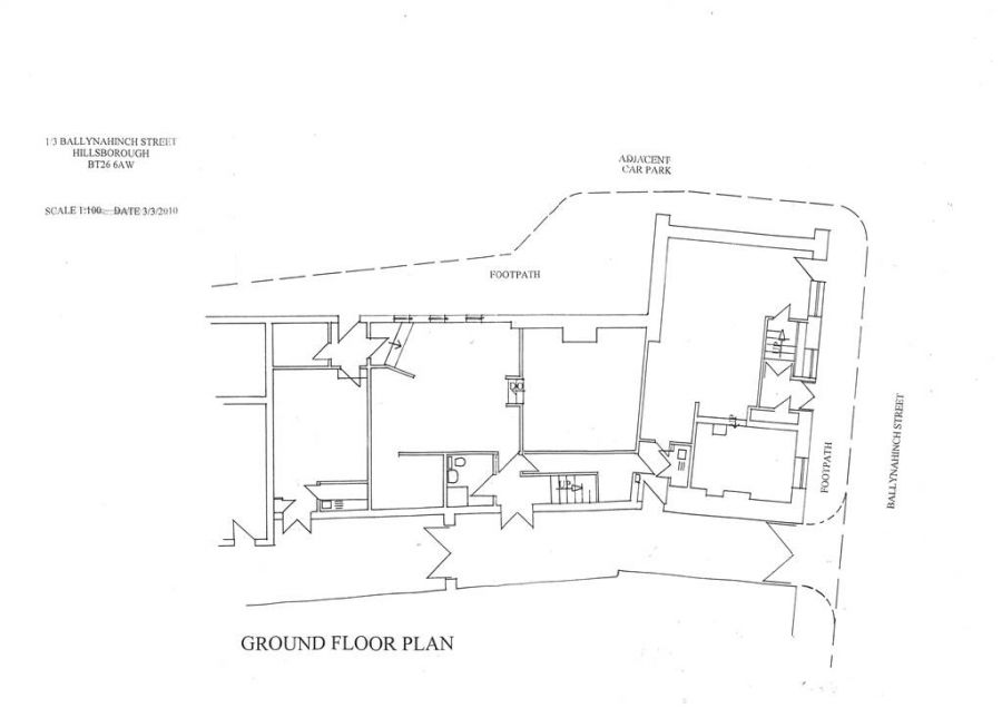
The property is spread over two floors with six separate accesses - two off Ballynahinch Street, three off The Chimes and one off the public carpark. The gateway to side has security gates fitted. A public car park is adjacent to the property.
The floor areas are as follows:
Ground floor 187 sqm/2012 sq ft plus toilet facilities
First floor 120sqm/1290 sq ft plus kitchen and toilet facilities
Floor Plans are attached.
The property is presented generally in good decorative order and has the benefit of an oil fired central heating system.
N.A.V £24,300
The property is offered 'For Sale' or 'To Let'
Guideline Prices
For Sale Offers Around: £485,000
Rental: £35,000
The property is ideal for use as offices, ground floor retail and also as a restaurant. Alternatively, subject to planning, may be suitable for redevelopment as residential.
The property is spread over two floors with six separate accesses - two off Ballynahinch Street, three off The Chimes and one off the public carpark. The gateway to side has security gates fitted. A public car park is adjacent to the property.
The floor areas are as follows:
Ground floor 187 sqm/2012 sq ft plus toilet facilities
First floor 120sqm/1290 sq ft plus kitchen and toilet facilities
Floor Plans are attached.
The property is presented generally in good decorative order and has the benefit of an oil fired central heating system.
N.A.V £24,300
The property is offered 'For Sale' or 'To Let'
Guideline Prices
For Sale Offers Around: £485,000
Rental: £35,000
Broadband Speed Availability
Potential Speeds for 1-3 Ballynahinch Street
Max Download
10000
Mbps
Max Upload
10000
MbpsThe speeds indicated represent the maximum estimated fixed-line speeds as predicted by Ofcom. Please note that these are estimates, and actual service availability and speeds may differ.
Property Location
Directions
At the junction of Main Street, Lisburn Street and Ballynahinch Street.
Contact Agent
Contact Dalzell Property (Lisburn)
Request More Information
Requesting Info about...
FOR SALE OR TO LET , 1-3 Ballynahinch Street, Hillsborough, Royal Hillsborough, BT26 6AW
By registering your interest, you acknowledge our Privacy Policy
By registering your interest, you acknowledge our Privacy Policy