Site For New Dwelling With Fpp:, Farmhill Road/Old Quay Road
Cultra, Holywood,, BT18
price
£595,000
- Status For Sale
-
Stamp Duty
Higher amount applies when purchasing as buy to let or as an additional property£19,750 / £49,500*
Key Features & Description
Description
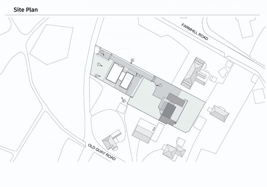
An exceptional building site with full planning consent located in the heart of Cultra.
The site area extends to c. 0.3 acres and has views over Seapark to the Cultra coastline and Belfast Lough.
The site has full planning consent for a magnificent contemporary residence designed by Campbell Architects, extending to c. 2,950 sq ft.
There are few undeveloped sites remaining in the Cultra area, and the fact that full planning consent and statutory approvals are in place, makes this a very rare 'ready to build' opportunity.
From the site it is a 1 minute walk to the beach and coastal path with coastal walks to Holywood and Bangor. Holywood Town centre is within 15 minutes walk. Royal North of Ireland Yacht Club and Royal Belfast Golf Club area also in close proximity.
All in all, an exceptional site, in a highly desirable residential location with full planning consent for a magnificent contemporary home.
An exceptional building site with full planning consent located in the heart of Cultra.
The site area extends to c. 0.3 acres and has views over Seapark to the Cultra coastline and Belfast Lough.
The site has full planning consent for a magnificent contemporary residence designed by Campbell Architects, extending to c. 2,950 sq ft.
There are few undeveloped sites remaining in the Cultra area, and the fact that full planning consent and statutory approvals are in place, makes this a very rare 'ready to build' opportunity.
From the site it is a 1 minute walk to the beach and coastal path with coastal walks to Holywood and Bangor. Holywood Town centre is within 15 minutes walk. Royal North of Ireland Yacht Club and Royal Belfast Golf Club area also in close proximity.
All in all, an exceptional site, in a highly desirable residential location with full planning consent for a magnificent contemporary home.
Property Location
Mortgage Calculator
Contact Agent
Contact Simon Brien (Holywood)
Request More Information
Requesting Info about...
Site For New Dwelling With Fpp:, Farmhill Road/Old Quay Road, Cultra, Holywood,, BT18
By registering your interest, you acknowledge our Privacy Policy
By registering your interest, you acknowledge our Privacy Policy