Contact Agent
Contact Templeton Robinson (North Down)
7 Bed Detached House
56 Demesne Road
Holywood, BT18 9EX
offers around
£850,000
Key Features & Description
Short stroll from Holywood Golf Club
Ideally located within walking distance to local prep/primary & grammar schools, railway and bus networks & within twenty minutes' drive of central Belfast & ten minutes' drive to Belfast City
Expansive front garden in lawns with contoured hills and mature shrubs
Enclosed private yard leading to a double garage
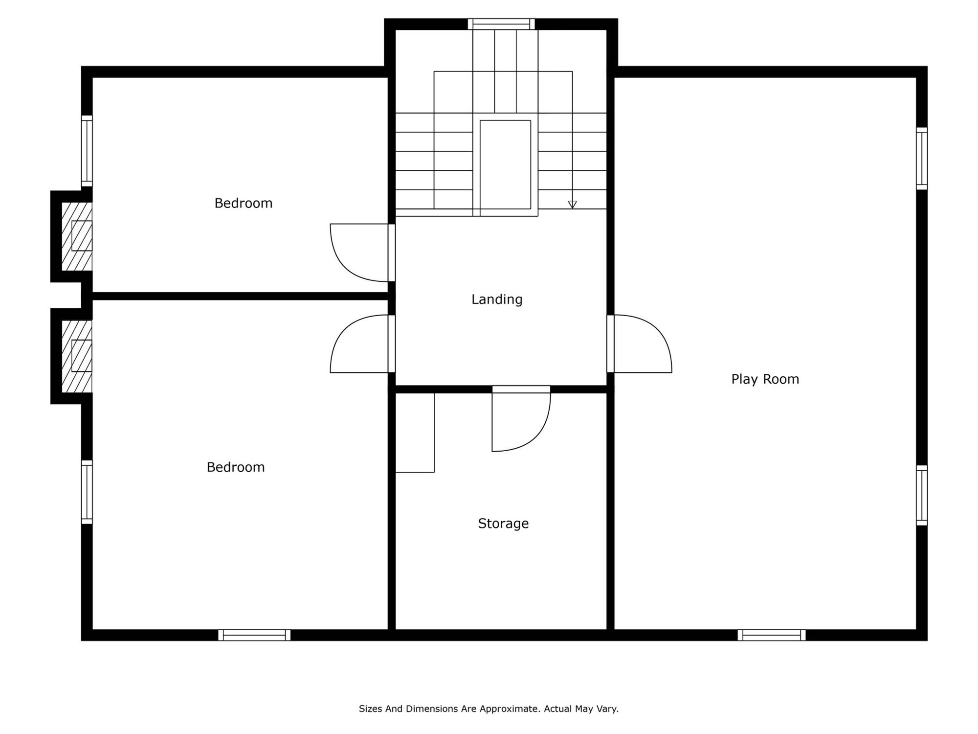
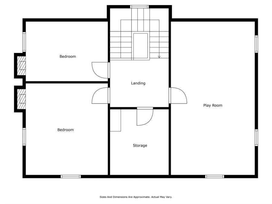
Games room on second floor
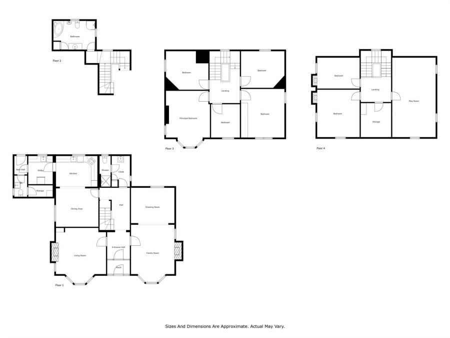
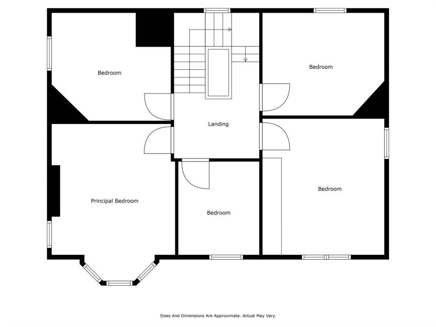
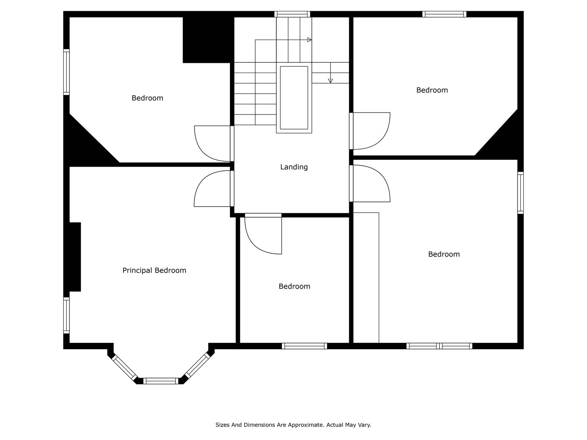
Seven well proportioned bedrooms
Living room with feature fireplace
Large drawing room with bay window
Versatile and spacious accommodation
Many delightful original features, including high corniced ceilings and sliding sash windows
Occupying a generous, private site with potential for an additional dwelling (subject to planning)
Historic family home within walking distance of Holywood's bustling town centre
Description
We are delighted to present Drumadillar, a historical and imposing family property located within the fashionable Demesne Road area, a short stroll from Holywood town centre. The current owners have enjoyed 50 years of fond memories stretching over 3 generations and believe the time is now right to hand the baton on to a new family. Drumadillar was home to the world-renowned physicist Sir Joseph Larmor, accredited with modern advancements in Atomic Physics.
With three reception rooms and seven bedrooms, Drumadillar provides ample space for family living and entertaining. The property occupies a very generous private site with potential for creative remodelling and further expansion for the discerning purchaser. The grounds offer a prime site for development of an additional dwelling subject to appropriate permissions.
Whether your interest is in thoughtfully restyling Drumadillar into your ideal modern family home or maximising its value through the redevelopment of the site, No.56 provides a fantastic opportunity to own a piece of Holywood"s history.
We are delighted to present Drumadillar, a historical and imposing family property located within the fashionable Demesne Road area, a short stroll from Holywood town centre. The current owners have enjoyed 50 years of fond memories stretching over 3 generations and believe the time is now right to hand the baton on to a new family. Drumadillar was home to the world-renowned physicist Sir Joseph Larmor, accredited with modern advancements in Atomic Physics.
With three reception rooms and seven bedrooms, Drumadillar provides ample space for family living and entertaining. The property occupies a very generous private site with potential for creative remodelling and further expansion for the discerning purchaser. The grounds offer a prime site for development of an additional dwelling subject to appropriate permissions.
Whether your interest is in thoughtfully restyling Drumadillar into your ideal modern family home or maximising its value through the redevelopment of the site, No.56 provides a fantastic opportunity to own a piece of Holywood"s history.
Rooms
DOUBLE GARAGE: 20' 12" X 20' 4" (6.40m X 6.20m)
Light and power.
Extensive front garden in lawns with mature trees and hedging. Potential site (subject to necessary approvals).
Large enclosed, rear patio garden.
LUGGAGE ROOM:
BEDROOM (7): 13' 9" X 9' 6" (4.20m X 2.90m)
Cast iron fireplace. Storage in eaves.
BEDROOM (6): 14' 5" X 13' 1" (4.40m X 4.00m)
Cast iron fireplace, sea views.
GAMES ROOM/PLAYROOM: 24' 7" X 14' 1" (7.50m X 4.30m)
BEDROOM (5): 9' 10" X 8' 10" (3.00m X 2.70m)
BEDROOM (4): 12' 10" X 11' 10" (3.90m X 3.60m)
BEDROOM (3): 13' 5" X 11' 2" (4.10m X 3.40m)
Sliding sash windows.
BEDROOM (2): 15' 5" X 13' 9" (4.70m X 4.20m)
Range of built-in robes, recessed built-in shelving.
BEDROOM (1): 18' 1" X 13' 5" (5.50m X 4.10m)
(into bay with sliding sash windows).
BATHROOM:
Fully tiled walls, ceramic tiled floor, built-in corner shower cubicle with electric shower unit, low flush wc, vanity unit with wash hand basin, bidet, corner panelled bath with mixer tap. Hotpress with hotwater tank.
Sweeping staircase to:
REAR PORCH:
Separate low flush wc, boiler house with oil fired boiler.
UTILITY ROOM: 8' 10" X 7' 7" (2.70m X 2.30m)
Stainless steel sink unit with mixer tap, space for tumble dryer and plumbed for washing machine.
FITTED KITCHEN OPEN PLAN TO CASUAL DINING: 21' 8" X 14' 1" (6.60m X 4.30m)
Solid wood cabinets with excellent range of high and low level units. Integrated Bosch oven, integrated microwave, dishwasher, ceramic four ring hob with additional 2 ring gas hob, sink and drainer unit with mixer tap.
LIVING ROOM: 17' 9" X 16' 5" (5.40m X 5.00m)
(into bay). Wolid wood strip floor, cornice ceiling, ceiling rose, feature fireplace with floor to ceiling marble tile. Bay window with sliding sash windows.
DRAWING ROOM: 30' 2" X 13' 9" (9.20m X 4.20m)
(into bay). Bay window with sliding sash windows and secondary glazing, cornice ceiling, ceiling rose, solid wood strip floor, feature fireplace with electric fire and marble surround and mantle, stained glass window.
CLOAKROOM:
Ceramic tiled floor, pedestal wash hand basin, built-in storage cupboard, separate wc.
ENTRANCE HALL:
Solid wood strip floor, cornice ceiling, storage under stairs.
ENCLOSED ENTRANCE PORCH:
Ceramic tiled floor, solid wood front door with stained glass side lights. Glazed door to:
Broadband Speed Availability
Potential Speeds for 56 Demesne Road
Max Download
1800
Mbps
Max Upload
220
MbpsThe speeds indicated represent the maximum estimated fixed-line speeds as predicted by Ofcom. Please note that these are estimates, and actual service availability and speeds may differ.
Property Location
Mortgage Calculator
Directions
From Holywood town centre, drive up Church Road, turn right onto Demesne Road; At the junction, keep left along Demesne Road. No 56 is on the left hand side on the corner of Demesne Park.
Contact Agent
Contact Templeton Robinson (North Down)
Request More Information
Requesting Info about...
56 Demesne Road, Holywood, BT18 9EX
By registering your interest, you acknowledge our Privacy Policy
By registering your interest, you acknowledge our Privacy Policy