Contact Agent
Contact Templeton Robinson (North Down)
6 Bed Semi-Detached House
35 Victoria Road
Holywood, BT18 9BD
offers around
£975,000
Key Features & Description
One of Holywood's finest homes - a property of exceptional character & heritage
Within walking distance to Holywood town & picturesque woodland & coastal walks
Rail links from Holywood to Belfast, Bangor - ideal for commuters
Range of nurseries plus primary & secondary schools within proximity
Enclosed, low maintenance rear garden enjoying private aspect
Two Lower level walled courtyards with three store rooms
Original hardwood sliding sash single glazed windows with shutters
Notably high ceilings, ornate cornicing & ceiling roses & original fireplaces throughout property
Gas fired central heating
Two cloakroom WCs - one on lower ground level & first floor return
Two bathrooms - One on first floor & one on second floor
Six bedrooms - Three on first floor & three on second floor
Bespoke 'Chalon' kitchen with AGA & range of built in appliances
Dining Room
Sitting Room leading to Snug
Drawing Room with dual aspect windows
Entrance portico leading to Reception Hallway
Abundance of original features typical of the late Georgian/Victorian era
Grade B listed Victorian semi-detached property built circa 1850
Located along Victoria Road within the heart of Holywood
Description
Positioned along the prestigious Victoria Road, this beautiful Victorian Grade B listed property is one of Holywood"s finest homes - a property of exceptional character and heritage located within the heart of Holywood.
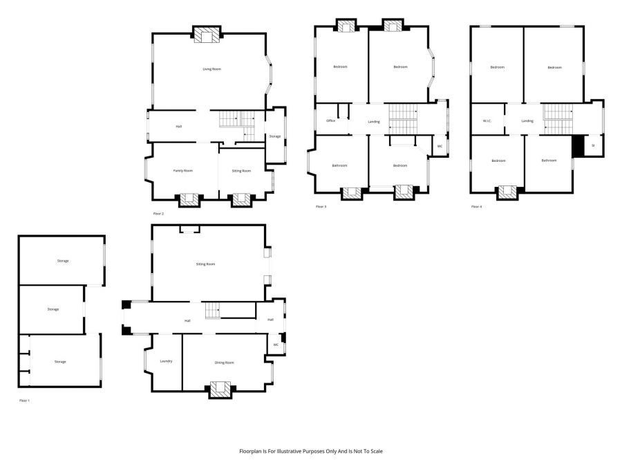
Built circa1850, the property offers an abundance of original features typical of the late Georgian/Victorian era - from notably high ceilings, ornate cornicing and ceiling roses, original hardwood sliding sash windows, beautiful fireplaces as well as an impressive entrance portico. Upon entering the property there is an immediate sense of grandeur. The generously proportioned accommodation could be adapted to suit the resident"s requirements. On the ground level are two formal reception rooms with dual aspect windows. The upper levels comprise six bedrooms, study, plus cloaks WC and two bathrooms. The impressive open plan, bespoke Chalon kitchen with dining area is located on the lower ground level, overlooking and with direct access to the garden. There is also an additional dining room plus utility and cloakroom WC. Externally, there is a private, low maintenance rear garden plus lower level walled courtyard with 3 store rooms.
A location rivalled by none, it is in close proximity to the town with its array of boutique shops, cafes, and delightful walks including Ballymenoch Park and North Down coast. The range of local churches and leading primary and secondary schools creates a true sense of community. Holywood railway halt benefits from rail links to Belfast, Bangor and several stops along the way making it ideal for commuters. A truly tremendous opportunity - Viewing is a must to fully appreciate this wonderful home.
Positioned along the prestigious Victoria Road, this beautiful Victorian Grade B listed property is one of Holywood"s finest homes - a property of exceptional character and heritage located within the heart of Holywood.
Built circa1850, the property offers an abundance of original features typical of the late Georgian/Victorian era - from notably high ceilings, ornate cornicing and ceiling roses, original hardwood sliding sash windows, beautiful fireplaces as well as an impressive entrance portico. Upon entering the property there is an immediate sense of grandeur. The generously proportioned accommodation could be adapted to suit the resident"s requirements. On the ground level are two formal reception rooms with dual aspect windows. The upper levels comprise six bedrooms, study, plus cloaks WC and two bathrooms. The impressive open plan, bespoke Chalon kitchen with dining area is located on the lower ground level, overlooking and with direct access to the garden. There is also an additional dining room plus utility and cloakroom WC. Externally, there is a private, low maintenance rear garden plus lower level walled courtyard with 3 store rooms.
A location rivalled by none, it is in close proximity to the town with its array of boutique shops, cafes, and delightful walks including Ballymenoch Park and North Down coast. The range of local churches and leading primary and secondary schools creates a true sense of community. Holywood railway halt benefits from rail links to Belfast, Bangor and several stops along the way making it ideal for commuters. A truly tremendous opportunity - Viewing is a must to fully appreciate this wonderful home.
Rooms
Dual courtyard with natural stone paving, outside tap.
STORE (1): 15' 1" X 10' 10" (4.60m X 3.30m)
Feature vaulted ceiling.
STORE (2): 16' 5" X 10' 10" (5.00m X 3.30m)
STORE (3): 18' 8" X 9' 6" (5.70m X 2.90m)
Feature vaulted ceiling.
Enclosed rear garden bordered by wall and fencing. Low maintenance large paved patio with array of ornamental trees, shrubs and plants.
BATHROOM:
Four piece white suite comprising tiled panelled bath, shower cubicle with mains shower, wash hand basin with mixer tap and low level cupboard, low flush wc, Velux window, loft access.
BEDROOM (6): 17' 9" X 14' 1" (5.40m X 4.30m)
Feature arched window.
BEDROOM (5): 12' 10" X 12' 6" (3.90m X 3.80m)
Slate fireplace with cast iron inset and slate hearth, Velux window.
BEDROOM (4): 17' 9" X 12' 6" (5.40m X 3.80m)
Feature arched window and Velux window.
LANDING:
Linen cupboard.
BATHROOM:
Four piece white suite comprising free standing bath with central mixer tap, panelled shower cubicle with mains shower unit, wash hand basin with mixer tap and low level cupboard, low flush wc, dado rail, cornice ceiling.
STUDY: 7' 10" X 6' 7" (2.40m X 2.00m)
BEDROOM (3): 13' 9" X 11' 10" (4.20m X 3.60m)
Attractive marble fireplace with cast iron inset and slate hearth, cornice ceiling, exposed timber flooring, range of built-in wardrobes.
BEDROOM (2): 17' 9" X 12' 6" (5.40m X 3.80m)
Attractive marble fireplace with cast iron inset and slate hearth, cornice ceiling, exposed timber flooring.
PRINCIPAL BEDROOM: 17' 9" X 13' 9" (5.40m X 4.20m)
Attractive marble fireplace with cast iron inset and slate hearth, cornice ceiling, exposed timber flooring.
LANDING:
CLOAKROOM / WC:
Low flush wc, wash hand basin with mixer tap and low level cupboard.
LANDING:
CLOAKROOM / WC:
Low flush wc, wall mounted wash hand basin.
RECEPTION HALL:
Door to front exterior.
DINING ROOM: 18' 4" X 12' 6" (5.60m X 3.80m)
Feature slate fireplace with tiled inset.
UTILITY ROOM: 12' 10" X 7' 3" (3.90m X 2.20m)
Range of high and low level units, plumbed for washing machine, space for dryer, a recently installed Vailant gas fired boiler.
KITCHEN: 26' 3" X 17' 1" (8.00m X 5.20m)
Bespoke Chalon handcrafted kitchen with range of units and island, new gas Aga cooker set into arched recess with tiled splashback plus four ring gas hob, double electric oven, twin ceramic sink with light oak worktop, range of built-in appliances to include fridge, dishwasher and microwave point, slate flooring, hardwood single glazed French doors to gardens.
HALLWAY:
Exposed brick vaulted ceiling with access to front and rear exterior.
SITTING ROOM LEADING TO SNUG: 26' 3" X 12' 10" (8.00m X 3.90m)
(into bay). Slate fireplace with tiled and cast iron inset, tiled hearth, gas fire, timber flooring, second slate fireplace with tiled and cast iron inset and tiled hearth, gas fire, built-in book shelving.
DRAWING ROOM: 26' 3" X 17' 9" (8.00m X 5.40m)
Feature open fireplace with carved marble surround and hearth with brick inset, decorative cornice and ceiling rose, dual aspect windows to rear overlooking mature gardens, window shutters.
CLOAKROOM / STORE:
HALLWAY:
Feature corbels and cornicing, oak wood floor.
ENTRANCE PARTICO:
Hardwood front door to . . .
Broadband Speed Availability
Potential Speeds for 35 Victoria Road
Max Download
1800
Mbps
Max Upload
220
MbpsThe speeds indicated represent the maximum estimated fixed-line speeds as predicted by Ofcom. Please note that these are estimates, and actual service availability and speeds may differ.
Property Location
Mortgage Calculator
Directions
From Holywood town centre- Travelling up Church Road, turn left onto Brook Street. At the junction, turn right onto Victoria Road. Number 35 is positioned on the right-hand side of the road.
Contact Agent
Contact Templeton Robinson (North Down)
Request More Information
Requesting Info about...
35 Victoria Road, Holywood, BT18 9BD
By registering your interest, you acknowledge our Privacy Policy
By registering your interest, you acknowledge our Privacy Policy