Contact Agent

Contact Simon Brien (Holywood)

Contact Simon Brien (Holywood)

4 Bed Detached House

8 Clanbrassil Road

Holywood, County Down, BT18 0AR

price £2,750,000
  • Status For Sale
  • Property Type Detached
  • Bedrooms 4
  • Receptions 3
  • EPC Rating C73 / C75
  • Stamp Duty
    Higher amount applies when purchasing as buy to let or as an additional property
    £243,750 / £381,250*
  • Typical Mortgage
    Click price to use our mortgage calculator
EPC Rating

Key Features & Description

  • Beautiful Detached Family Home On The Shores Of Belfast Lough
  • Truly Magnificent Views Over The Lough Towards The County Antrim Hills
  • c. 1 Acre Site Set Behind Private Walled Gardens With Electric Gates
  • Spacious Entertaining Accommodation On Ground Floor
  • Split Level Drawing Room
  • Dining Room Overlooking Front Gardens
  • Kitchen With Built-In Appliances & Breakfast Bar Open To Living Area
  • Garden Room Leading To Front & Rear Entertaining Patios & Terraces
  • Guest Bedroom With Shower Room On Ground Floor
  • Master Bedroom Suite With Ensuite Bathroom, Dressing Room & Stunning Views Over Belfast Lough
  • Two Further Bedrooms On The Upper Floors & Family Shower Room
  • First Floor Study / Reading Area
  • Landscaped Gardens Laid In Lawns, Flowerbeds & Patios
  • Detached Garage
  • Generous Parking & Turning Space
  • Large Insulated Workshop
  • Convenient Location To Holywood, Belfast, Bangor & Motorway Links To Further Afield
  • Description
    Occupying one of the finest sites on the County Down shoreline, the property is located in the heart of Cultra on a magnificent one acre site with direct access to the coastal park and shoreline.

    The area is regarded as one of Northern Ireland´s most sought after residential areas. The shoreline is literally on your doorstep with coastal walks to Holywood and Bangor - Royal North of Ireland Yacht Club is within a few minutes´ walk and Royal Belfast Golf Club within a few minutes´ drive.

    Holywood Town Centre is only a 3 minute drive (15 minute walk), Bangor 10 minutes, Belfast 15 minutes, Belfast City Airport 10 minutes, and the Marino Railway Halt is but a few minutes´ walk with regular service to Belfast and Bangor.

    The property has been finished to an exceptional standard and offers adaptable family living space with spectacular views overlooking Belfast Lough.

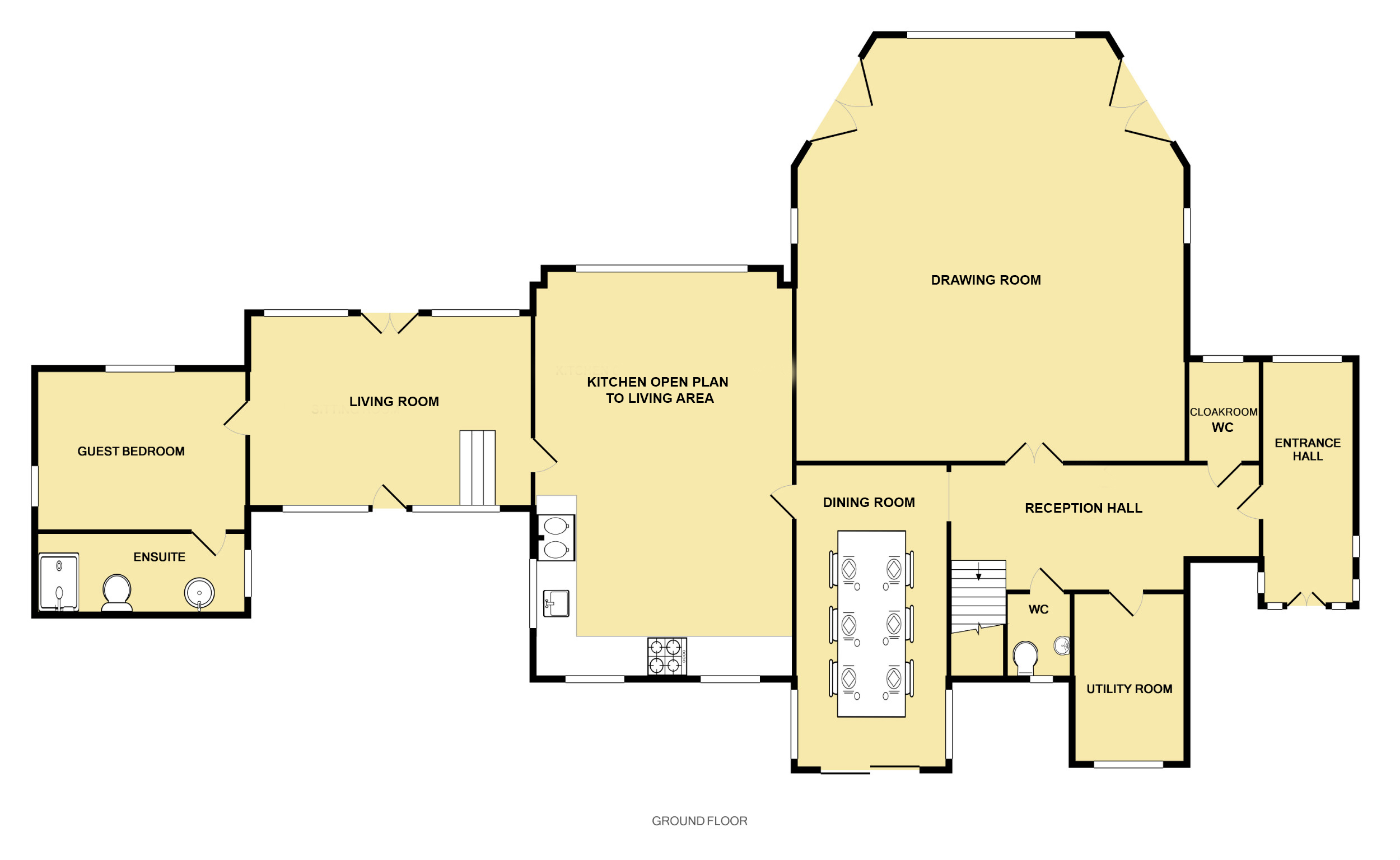
    The accommodation on the ground floor comprises: four reception rooms, kitchen, garden room leading to rear patios and gardens, guest bedroom suite with shower room, utility room, WC, and cloakroom.

    The first floor consists of: an open plan study / reading area; principal bedroom with ensuite bathroom and dressing room; a family shower room and two further bedrooms, one of which is a duplex bedroom with dressing area.

    Outside, there are magnificent, well-tended landscaped gardens laid in lawns and mature shrub beds.

    All in all, an exceptional family home occupying a magnificent site in one of Northern Ireland´s most sought after residential locations.

    Viewing is highly recommended - contact our North Down office on 028 9042 8989.

    Rooms

    Workshop 22'2" X 19'2" (6.76m X 5.84m) Up and over motorised door. Service door. Power and light.
    Prefabricated steel construction with Kingspan 80mm insulated panels.

    Outside lighting and water supply.
    Garage 15'4" X 10'2" (4.67m X 3.10m) Roller door. Power and light.
    Outside The property occupies a private mature site with landscaped gardens laid in lawns, deck area, patio area and mature shrubs. There is also direct pedestrian access to the coastal path. An attractive pillar entrance, with secure automated entrance gates, leads down a sweeping driveway to generous parking to the front and side of the property.
    Study/Potential Bedroom 22'6" X 10'10" (6.86m X 3.30m) Full length windows with sliding doors and Juliet Balcony overlooking front garden. Corniced ceiling, recessed lighting.
    Shower Room White suite comprising: Large fully tiled shower with thermostatic power shower, vanity unit with inset wash hand basin, low flush WC, partly tiled walls, ceramic tiled floor, heated towel radiator, large wall mirror, window shutters. Recessed lighting.
    Upper Level/Bedroom Area 14'12" X 8'10" (4.57m X 2.70m) Vaulted ceiling, velux windows, access to storage space into eaves.
    Bedroom 3 11'8" X 10'1" (3.56m X 3.07m) Views to Belfast Lough. Built in wardrobes. Recessed lighting. Stairway to:
    Bedroom 2 13'2" X 10'9" (4.01m X 3.28m) Views to Belfast Lough. Built-in wardrobes. Corniced ceiling. Recessed lighting.
    Dressing Room Fitted with built-in wardrobes and vanity area. Recessed lighting.
    Ensuite Bathroom 14'7" X 9'8" (4.45m X 2.95m) Contemporary white suite comprising: Feature oval bath, large walk-in fully tiled shower area, vanity unit with feature circular wash hand basin, chrome mixer tap and large illuminated mirror, wall mounted WC and bidet, window shutters, views along County Down coastline. Recessed lighting.
    Master Bedroom 16'5" X 15'9" (5.00m X 4.80m) Magnificent views to Belfast Lough. Fitted with built-in wardrobes with mirrored sliding doors. Corniced ceiling. Recessed lighting. Access to large full height floored roof space.
    First Floor
    Guest Ensuite Shower Room Contemporary white suite comprising: Large walk-in fully tiled shower area, vanity unit with feature circular wash hand basin and chrome mixer tap, low flush WC, tiled walls, ceramic tiled floor, heated towel radiator, large wall mirror. Recessed lighting.
    Guest Suite/Bedroom 4 15'1" X 11'2" (4.60m X 3.40m) Views to Belfast Lough. Corniced ceiling. Recessed lighting.
    Garden Room 19'9" X 13'6" (6.02m X 4.11m) Large picture window with magnificent views, vaulted ceiling, ceramic tiled floor, double opening French doors with fanlight above, doors leading to extensive deck area and feature gardens.
    Living Space 19'6" X 12'0" (5.94m X 3.66m) Picture rail. Feature hole in the wall gas fire. Large picture window with views over rear gardens to Belfast Lough and County Antrim.
    Spacious Kitchen With Casual Dining and Living Space 27'10" X 18'3" (8.48m X 5.56m) Both areas benefit from under floor heating. Fitted with an excellent range of high and low level painted units with polished granite worktops, inset stainless steel sink unit with period mixer tap with Insinkerator, Neff 4 ring gas hob and under oven with stainless steel extractor hood, Belling integrated dishwasher, Samsung American fridge freezer, Pewter grey 2 ring gas Aga. Central island unit with breakfast bar and Viking wine cooler. Open to living area.
    Dining Room 20'12" X 10'12" (6.40m X 3.35m) Hardwood floor. Full length windows and sliding doors leading to landscaped front gardens. Corniced ceiling. Recessed lighting. 14 seater dining table.
    Drawing Room (Split Level) 28'6" X 26'9" (8.69m X 8.15m) Magnificent drawing room commanding unrivalled views over Belfast Lough to County Antrim shoreline. Feature hole in the wall fireplace with open fire, dog grate, beam mantle, natural stone hearth and purpose built seating surround. Corniced ceiling. Picture rail. Wall light wiring. Feature vaulted ceiling over lower level. Natural slate floor (under heated). Two sets of double opening French doors to private gardens and patio area.
    Cloakroom / WC Contemporary white suite comprising: Low flush WC. Wash hand basin with mixer taps. Wooden floor. Access to under stairs storage cupboard. Recessed lighting.
    Utility Room 12'8" X 8'9" (3.86m X 2.67m) Fully fitted with high and low level units, plumbed for washing machine, piped for gas tumble dryer, circular inset stainless steel sink unit with mixer tap, bookshelves, ceramic tiled floor, recessed lighting.
    Spacious Reception Hall Solid wooden flooring, corniced ceiling, wall light wiring. Walk-in cloakroom, built-in storage and gas fired central heating boiler.
    Entrance Hall Double opening panelled entrance doors. Marble tiled floor. Feature glazed panelled walls and side panels with views to Belfast Lough. Recessed lighting. Inner hardwood glazed panelled front door with side panels and attractive fan light.
    Ground Floor

    Broadband Speed Availability

    Ultrafast

    Potential Speeds for 8 Clanbrassil Road

    Max Download
    1800
    Mbps
    Max Upload
    220
    Mbps
    The speeds indicated represent the maximum estimated fixed-line speeds as predicted by Ofcom. Please note that these are estimates, and actual service availability and speeds may differ.

    Property Location

    Show Map

    Mortgage Calculator

    Disclaimer: The following calculations act as a guide only, and are based on a typical repayment mortgage model. Financial decisions should not be made based on these calculations and accuracy is not guaranteed. Always seek professional advice before making any financial decisions.

    Contact Agent

    Contact Simon Brien (Holywood)

    Contact Simon Brien (Holywood)

    Request More Information
    Requesting Info about...
    8 Clanbrassil Road, Holywood, County Down, BT18 0AR 8 Clanbrassil Road, Holywood, County Down, BT18 0AR

    By registering your interest, you acknowledge our Privacy Policy