Contact Agent

Contact Simon Brien (Holywood)

Contact Simon Brien (Holywood)

Auburn House, 126 High Street

Holywood, County Down, BT18 9HW

offers over £299,950
  • Status For Sale
  • Stamp Duty
    Higher amount applies when purchasing as buy to let or as an additional property
    £4,998 / £19,995*
  • Typical Mortgage
    Click price to use our mortgage calculator

Key Features & Description

  • Prime Holywood town centre location
  • Excellent commercial building suitable for:
  • Day Nursery
  • Offices
  • Medical consulting rooms
  • Private off street parking for several cars in front
  • Description
    An excellent opportunity to approve a superbly located office building in the heart of Holywood town centre.

    The property has recently been used as Day Nursery however would be suitable for a variety of uses involving professional offices, or individual consulting rooms.

    The property has a large forecourt area to the front with parking for several cars.

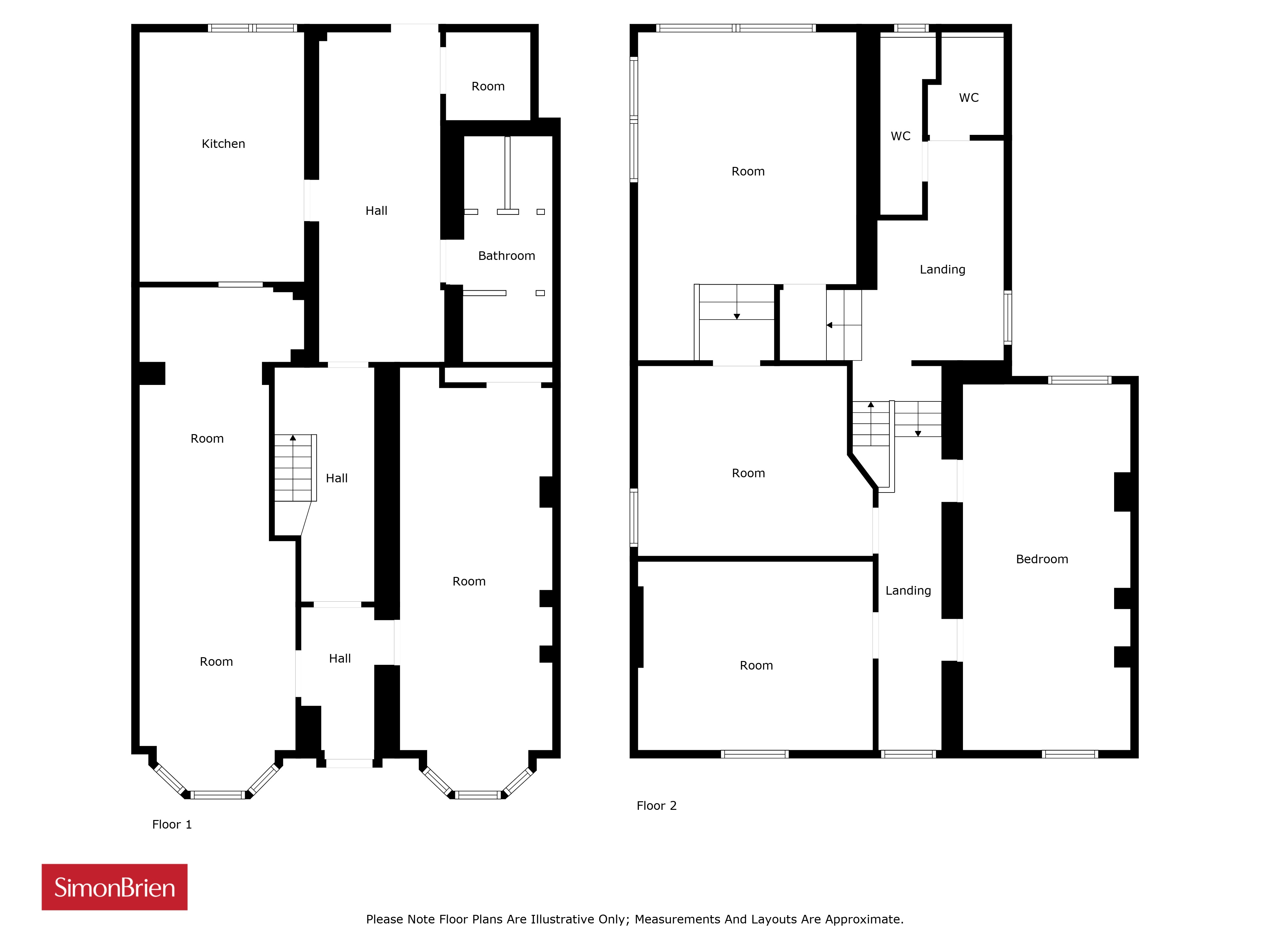
    Rooms

    Ground Floor
    Entrance Hall PVC entrance door.
    Inner Hall Stairway to First Floor.
    Room 1 (RHS) X (7.92m(intobaywindow) X 3.15m) Built in cupboard with shelving.
    Room 2 (LHS) X (10.00m(intobaywindow) X 3.00m)
    Store Room (Rear) 20'6" X 7'3" (6.25m X 2.20m) Store off. PVC rear door.
    Toilets 14'5" X 5'1" (4.40m X 1.55m)
    Kitchen 15'6" X 10'2" (4.72m X 3.10m) Fitted with a good range of high and low level units, stainless steel 1.5 bowel sink unit with mixer taps, built in hob and oven, plumbed for washing machine.
    First Floor
    Room 1 (front right) 22'10" X 10'3" (6.96m X 3.12m)
    Room 2 (front left) 15'0" X 11'10" (4.57m X 3.60m)
    Room 3 (rear left) 15'0" X 12'0" (4.57m X 3.66m) Double doors to:
    Room 4 (rear) 20'8" X 14'6" (6.30m X 4.42m)
    Return Landing Two WC's.
    Outside Forecourt /Parking to front.

    Small enclosed yard to rear.

    Broadband Speed Availability

    Ultrafast

    Potential Speeds for 126 High Street

    Max Download
    1800
    Mbps
    Max Upload
    220
    Mbps
    The speeds indicated represent the maximum estimated fixed-line speeds as predicted by Ofcom. Please note that these are estimates, and actual service availability and speeds may differ.

    Property Location

    Show Map

    Mortgage Calculator

    Disclaimer: The following calculations act as a guide only, and are based on a typical repayment mortgage model. Financial decisions should not be made based on these calculations and accuracy is not guaranteed. Always seek professional advice before making any financial decisions.

    Contact Agent

    Contact Simon Brien (Holywood)

    Contact Simon Brien (Holywood)

    Request More Information
    Requesting Info about...
    Auburn House, 126 High Street, Holywood, County Down, BT18 9HW Auburn House, 126 High Street, Holywood, County Down, BT18 9HW

    By registering your interest, you acknowledge our Privacy Policy