Contact Agent

Contact Rodgers & Browne

Contact Rodgers & Browne

Land (Multiple Dwelling)

Two Building Sites @ 209 Church Road

Holywood, BT18 9RN

price (per site) £225,000
  • Status For Sale
  • Property Type Land (Multiple Dwelling)
  • Stamp Duty
    Higher amount applies when purchasing as buy to let or as an additional property
    £2,000 / £13,250*
  • Typical Mortgage
    Click price to use our mortgage calculator

Key Features & Description

The facts you need to know...
Two individual building sites with full planning permission granted (LA06/2023/2198/F)
The sites can be purchased either individually or together
Sweeping laneway to be put in by the vendor
Water and electric are available to the sites
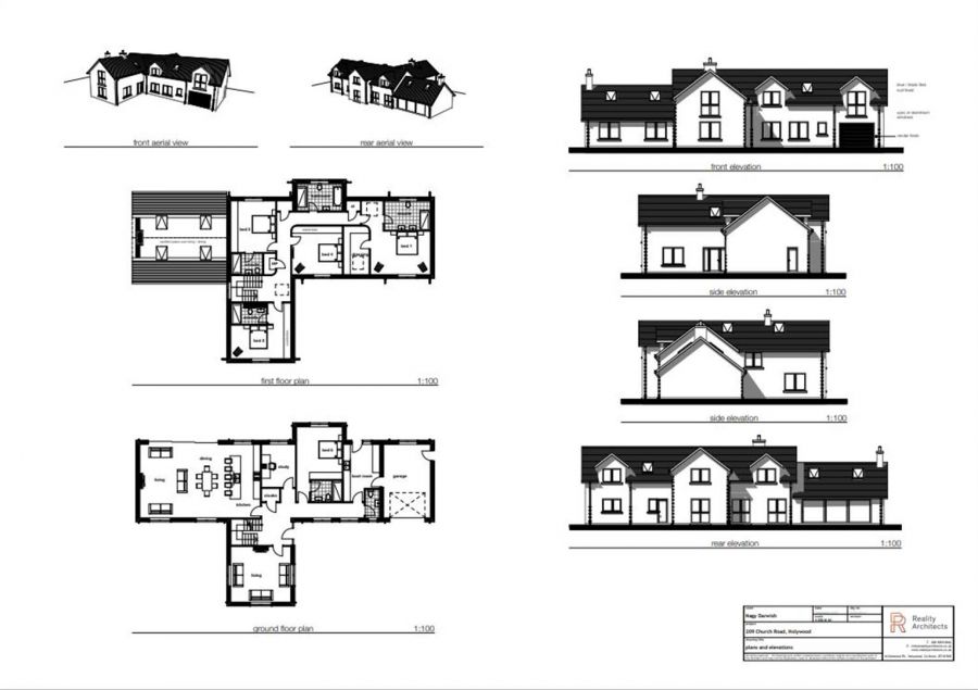
Each house design extends to c.3,800 sq ft including garage
The layout comprising of five bedrooms, four with ensuites, drawing room, study and open plan kitchen, living dining
Site one - 0.70 acres, Site two - 0.60 acres
An ideal opportunity for either an individual wishing to embark in their own grand design to that of a developer wanting two sites ready to go
Holywood and Dundonald Village are only five minutes away including the Ulster Hospital
Perfectly positioned to access Belfast City Centre and The George Best City Airport
Description
The Agent"s Perspective...
"A fantastic opportunity to purchase either one or two building sites which have full planning permission granted for detached family homes, extending to c.3,800 sq ft.
The sites extend from c.0.60 - c.0.70 of an acre and are set in a semi-rural position with views over the rolling countryside only two minutes from the renowned Holywood town centre"

Broadband Speed Availability

Ultrafast

Potential Speeds for Two Building Sites @ 209 Church Road

Max Download
1800
Mbps
Max Upload
220
Mbps
The speeds indicated represent the maximum estimated fixed-line speeds as predicted by Ofcom. Please note that these are estimates, and actual service availability and speeds may differ.

Property Location

Show Map

Mortgage Calculator

Disclaimer: The following calculations act as a guide only, and are based on a typical repayment mortgage model. Financial decisions should not be made based on these calculations and accuracy is not guaranteed. Always seek professional advice before making any financial decisions.

Directions

Travelling from Holywood High Street travel up Church Road and continue for two miles No209 is on your right.

Contact Agent

Contact Rodgers & Browne

Contact Rodgers & Browne

Request More Information
Requesting Info about...
Two Building Sites @ 209 Church Road, Holywood, BT18 9RN Two Building Sites @ 209 Church Road, Holywood, BT18 9RN

By registering your interest, you acknowledge our Privacy Policy