5 Bed Detached House
Moor Park, 42 Moss Road
Off Ballymiscaw Road, Holywood, BT18 9RU
offers around
£1,350,000
- Status For Sale
- Property Type Detached
- Bedrooms 5
- Receptions 3
- Interior Area 4,200 sqft
- Heating Air Source Heat Pump
-
Stamp Duty
Higher amount applies when purchasing as buy to let or as an additional property£78,750 / £146,250*
Key Features & Description
Tarmac driveway with parking for up to six cars
Semi-rural positioning and only one of three including design homes set at the end of a private laneway behind electric gates
Holywood and East Belfast are only five minutes by car which incorporates an array of local amenities
An additional c.10 Acres are available by separate negotiation
Belfast City Centre is twenty minutes away and the George Best City Airport would be ten minute away
A truly unique opportunity to purchase an individually designed home in a semi-rural setting, finished to an exceptional standard both inside and out
Mood lighting surrounding the house
South facing rear terrace with countryside views, planting, gardens laid in lawns
Air heat source heating system with a pressurised water system
Iroko framed double glazed windows
Feature Iroko panelled walls
Benefiting from underfloor heating, Cat 6 wiring with networking and central hub
Fabulous features throughout the house incorporating Terrazzo flooring on the ground floor, solid Bison flooring on the first floor
Attached double integrated garage with Iroko sliding door
Extensive storage within the landing
Separate luxury fitted shower room
Main bedroom and guest bedroom each with luxury ensuite shower rooms, incorporating Duravit sanitaryware and handcrafted fitted cabinets and vanity units
Four very well presented bedrooms each with handcrafted built-in wardrobes, vaulted ceilings
Ground floor multi-functional room ideal as a ground floor guest suite/studio/gym or living room, benefiting from an ensuite bathroom, vaulted ceiling and multi fuel stove
Separate "Alwood" utility room with an array of high and low level cabinets matching the pantry, stone worktops with inset sink
"Alwood" extra large pantry off the kitchen with open shelving and concealed cabinets, stone worktops and sink unit
Open plan dining and living room from the kitchen with large picture windows and access to the south facing terrace, feature raised wall inset glass fronted fireplace
Truly stunning handcrafted "Arclinec" Italian kitchen incorporating built-in appliances, the units are finished in a smoked wood style with the Patent Italian recessed handles, stone worktops and larg
Semi concealed study
Drawing room with feature corner window overlooking the countryside and Church Road Reservoir, multi fuel burning stove
Dramatic entrance hall with vaulted ceiling and large picture windows
Sleek design inside and out but yet not forgetting its semi-rural heritage
Designed by the renowned Award winning McGonigle McGrath Architects
Stunning contemporary detached farm house style home extending to c.4,200 sq ft and set on c.1 Acre of lawns and a paddock
The facts you need to know...
Description
The Developer"s Perspective...
"When I first envisioned this project, my goal was to create a unique sanctuary in the countryside, a place I would be proud to call home. I engaged McGonigle McGrath to design a distinctive, bespoke residence that harmonises with its natural surroundings. The firm"s numerous prestigious awards are a testament to their exceptional ability to blend functional contemporary living with artistic, sensitive design.
McGonigle McGrath and I collaborated through many iterations until we crafted the perfect home for this picturesque lakeside setting. This ethos of creating something special permeated every aspect, from the initial design to the final finishes. Given my passion for landscapes, I commissioned Todd Longstaffe-Gowan to design the gardens, enhancing and complementing the environment in his unique style.
I am deeply grateful to Kieran, Todd, and their teams, as well as the outstanding and meticulous Rare Space construction team for their dedication to this project.
I believe we have created one of Northern Ireland"s finest homes, both in design and execution. I hope you enjoy it as much as I do"
The Developer"s Perspective...
"When I first envisioned this project, my goal was to create a unique sanctuary in the countryside, a place I would be proud to call home. I engaged McGonigle McGrath to design a distinctive, bespoke residence that harmonises with its natural surroundings. The firm"s numerous prestigious awards are a testament to their exceptional ability to blend functional contemporary living with artistic, sensitive design.
McGonigle McGrath and I collaborated through many iterations until we crafted the perfect home for this picturesque lakeside setting. This ethos of creating something special permeated every aspect, from the initial design to the final finishes. Given my passion for landscapes, I commissioned Todd Longstaffe-Gowan to design the gardens, enhancing and complementing the environment in his unique style.
I am deeply grateful to Kieran, Todd, and their teams, as well as the outstanding and meticulous Rare Space construction team for their dedication to this project.
I believe we have created one of Northern Ireland"s finest homes, both in design and execution. I hope you enjoy it as much as I do"
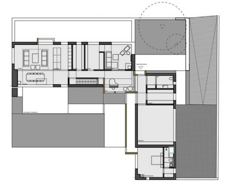
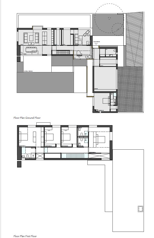
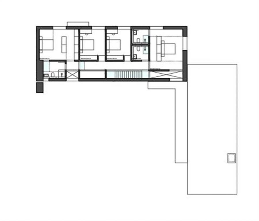
Rooms
Solid Iroko wooden door leading to:
IMPRESSIVE ENTRANCE HALL:
Part Iroko panelled walls, double height atrium, large picture window looking to the rear terrace and garden, low voltage lighting. Terrazzo flooring with border detailing, access door to the rear and garage, understairs cupboard with underfloor heating, Manafold"s and communication cabinet.
Concealed staircase leading to the first floor with limed oak treads.
CLOAKROOM:
Contemporary wall mounted Duravit sink with mixer tap, tiled splashback and inset mirror with wooden surround, wall hung Duravit low flush wc with Geberit concealed cistern, tiled back and concealed cabinets above, Terrazzo flooring, tiled skirtings, extractor fan, low voltage lighting.
DRAWING ROOM: 14' 11" X 13' 9" (4.55m X 4.19m)
Spectacular corner window with views over the fields to Church Road reservoir, RAIS multi fuel wood burner, fully glazed wall and door to entrance hall, low voltage lighting, archway leading to:
SEMI CONCEALED OFFICE 13' 9" X 10' 1" (4.19m X 3.07m)
Terrazzo flooring, low voltage lighting, views over the countryside. Space for a built-in desk unit.
HANDMADE "ARELINEA" ITALIAN KITCHEN OPENING TO CASUAL DINING AND LIVING ROOM 31' 5" X 21' 9" (9.58m X 6.63m)
"Arelinea", contemporary kitchen finished in two tone smoked wood style cabinets, extensive range of built-in appliances including two Neff fridge freezers, Neff eyelevel oven and steam oven with warming draw, induction hob, set amidst a floating pierless island, stainless steel worktop, Luxair stainless steel extractor above, wood finished breakfast bar area incorporating foot rests, inset couple stainless steel sink and mixer tap, black Quartz worktop and matching splashback, concealed recycling bin drawer, large feature window with views surrounding the house, Terrazzo flooring, "Contura" multi-fuel glass fronted fire, large sliding patio door leading to south facing terrace and garden., large sliding patio door leading to south facing terrace and garden.
PANTRY 13' 8" X 6' 3" (4.17m X 1.91m)
'Alwood' contemporary high and low level cupboards including open shelving, finished in charcoal grey, Quartz worktops, stainless steel inset sink with mixer, low voltage lighting, Terrazzo flooring.
UTILITY ROOM: 14' 6" X 6' 2" (4.42m X 1.88m)
'Alwood' contemporary high and low level charcoal grey units plus full floor to ceiling wall of additional cabinets, stainless steel inset sink with mixer tap, Bosch washing machine and Bosch tumble dryer, Terrazzo flooring.
INNER HALLWAY:
Solid Iroko door leading to south facing terrace and garden, feature Iroko panelled wall leading to:
BEDROOM 5/GYM/STUDIO OR LIVING ROOM 16' 4" X 14' 0" (4.98m X 4.27m)
Vaulted ceiling with "RAIS" multi fuel stove, Terrazzo flooring, contemporary wall lights, large picture window looking back to the garden and countryside. Built-in wardrobes. Access door to the side.
LUXURY ENSUITE BATHROOM 10' 9" X 5' 2" (3.28m X 1.57m)
Contemporary white suite comprising Axor deep fill bath incorporating Matki shower door, over drencher and telephone shower, part tiled walls, Duravit wall mounted low flush wc with Geberit closed coupled cistern, handcrafted concealed cabinet space finished in charcoal, inset mirror with wooden surround, shaving point, chrome heated towel radiator, Terrazzo flooring, double glazed Velux window.
LANDING:
Contemporary finish with feature vaulted ceiling, two double glazed Velux windows, glass panelling, extensive walk-in storage cabinets, feature wall lighting, limed oak wooden floor.
MAIN BEDROOM SUITE: 15' 9" X 13' 9" (4.80m X 4.19m)
Vaulted ceiling, views to the countryside and Church Road reservoir, extensive range of built-in wardrobes, wall lighting.
LUXURY ENSUITE SHOWER ROOM 10' 3" X 7' 7" (3.12m X 2.31m)
Large shower cubicle, thermostatically controlled shower unit with over drencher and telephone shower, Duravit wall mounted low flush wc, Geberit closed coupled cistern, Duravit wall mounted sink unit with mixer tap, inset mirror with wooden surround, handcrafted cabinets with concealed shelving, part tiled walls, ceramic tiled floor, vaulted ceiling, chrome heated towel radiator, double glazed Velux window.
GUEST BEDROOM: 18' 2" X 14' 9" (5.54m X 4.50m)
Vaulted ceiling, three fabulous picture windows to take full advantage of the setting, feature built-in wardrobes.
LUXURY ENSUITE SHOWER ROOM 7' 7" X 6' 5" (2.31m X 1.96m)
Large shower cubicle, fully tiled, thermostatically controlled over drencher, and telephone shower, Duravit wall mounted low flush wc with Geberit coupled cistern, Duravit wall mounted sink unit with Axor mixer tap, handcrafted cabinets including concealed shelving, open shelving and mirror, chrome heated towel radiator, ceramic tiled floor, part tiled walls, vaulted ceiling, double glazed Velux window.
BEDROOM (3): 11' 10" X 11' 1" (3.61m X 3.38m)
Views to Church Road reservoir and the countryside, vaulted ceiling, extensive range of built-in wardrobes.
BEDROOM (4): 11' 10" X 11' 3" (3.61m X 3.43m)
Views to Church Road reservoir and the countryside, vaulted ceiling, extensive range of built-in wardrobes.
LUXURY SHOWER ROOM 7' 7" X 6' 9" (2.31m X 2.06m)
Extensive large shower cubicle, fully tiled, thermostatically controlled over drencher, and telephone shower, Duravit wall mounted low flush wc with Geberit coupled cistern, Duravit wall mounted sink unit with Axor mixer tap, handcrafted cabinets including concealed shelving, open shelving and mirror, chrome heated towel radiator, ceramic tiled floor, part tiled walls, vaulted ceiling, double glazed Velux window.
DOUBLE INTEGRAL GARAGE: 21' 9" X 19' 11" (6.63m X 6.07m)
Bi-folding Iroko timber doors. Access to roofspace. Daikan pressurised tank. Recessed lighting. Power.
Extensive south facing terrace finished with 1 metre sq tiles, flowerbeds, fully stocked to the front and rear.
Outside mood lighting, granite gravel paths with steel edging. Outside tap.
Tarmac driveway with parking for up to six cars.
Garden laid in lawns with the countryside as a backdrop.
Accessed via a shared tarmac driveway with two sets of electric gates.
Video
Property Location
Mortgage Calculator
Directions
From Holywood travel up Church Road at the junction turn right onto Ballymiscaw Road, first right after half a mile onto Moss Road, continue for half a mile and Moor Park entrance will be on your right.
From Belmont Village travelling through the Campbell roundabout continue past Belmont Park keep left onto the continuation of Belmont Road which becomes Ballymiscaw Road, Moss Road will be your third left. Once on Moss Road continue for half a mile and Moor Park is on your right.
From Belmont Village travelling through the Campbell roundabout continue past Belmont Park keep left onto the continuation of Belmont Road which becomes Ballymiscaw Road, Moss Road will be your third left. Once on Moss Road continue for half a mile and Moor Park is on your right.
Contact Agent
Contact Rodgers & Browne
Request More Information
Requesting Info about...
Moor Park, 42 Moss Road, Off Ballymiscaw Road, Holywood, BT18 9RU
By registering your interest, you acknowledge our Privacy Policy
By registering your interest, you acknowledge our Privacy Policy