Contact Agent

Contact Michael Chandler Estate Agents

Contact Michael Chandler Estate Agents

5 Bed Detached House

6 Glen Road

Cultra, Holywood, BT18 0HB

asking price £995,000
  • Status For Sale
  • Property Type Detached
  • Bedrooms 5
  • Receptions 3
  • Bathrooms 4
  • Heating Gas
  • EPC Rating C72 / C76 -
  • Stamp Duty
    Higher amount applies when purchasing as buy to let or as an additional property
    £43,250 / £93,000*
  • Typical Mortgage
    Click price to use our mortgage calculator
EPC Rating

Key Features & Description

  • A stunning fully refurbished home in the heart of Cultra offering luxury & practicality
  • Impressive entrance hall with tiled flooring throughout the ground floor
  • Elegant lounge with a multi-fuel stove and refined interior décor
  • Recently fitted walnut kitchen with a large central island, open plan dining and a bar area
  • Large range of integrated appliances including three ovens and a Quooker tap
  • Double set of patio doors open directly to the landscaped rear garden and patio
  • Cosy second living room, ideal as a snug or office
  • Spacious ground-floor double bedroom with a luxury en-suite shower room
  • Additional versatile fifth bedroom or dining room on the ground floor
  • Large fully fitted utility room with a boot area and access to the car port
  • Very spacious master bedroom upstairs with walk in wardrobe and lovely garden views
  • Luxury fully tiled ensuite with a feature bath alcove with built in TV and a separate walk-in shower
  • Two further double bedrooms and a luxury fully tiled shower room upstairs
  • Spacious eves storage room on first floor for additional storage
  • Detached private gym or versatile space for hobbies that is fully insulated
  • Secure electric gates and expansive driveway with carport parking
  • Landscaped front and rear gardens that are fully enclosed and private
  • Gas-fired central heating and fully double glazing throughout
  • Alarm system and CCTV security in place
  • Walking distance to the beach and train station
  • Only 15 minutes to Belfast City Centre and 5 minutes to Holywood town
  • Chain free and ready to move into
  • Some furniture can be included by way of separate negotiation including hot tub and gym equipment
  • Description
    This fully refurbished five-bedroom, four-bathroom home in the heart of Cultra blends luxury, practicality and coastal living. Upgraded to exacting standards, it offers a rare opportunity to own a truly distinctive property in one of Northern Ireland´s most prestigious locations.

    From the moment you step inside, the quality and space are unmistakable. The tiled entrance hall leads to a welcoming main lounge with tasteful décor and a multi-fuel stove. At the heart of the home is a newly fitted walnut kitchen with a large centre island, three integrated ovens and top-of-the-range appliances. Patio doors open onto the landscaped rear garden, creating seamless indoor-outdoor living. A second living room sits adjacent, ideal as a snug or home office.

    The ground floor also provides a generous double bedroom with a large en-suite shower room, perfect for guests or extended family, alongside a versatile fifth bedroom or study. A fitted utility room with boot area completes the practical layout.

    Upstairs, the master suite is a true retreat with balcony doors framing views of the private garden, while the luxurious en-suite includes a luxurious bath with built in TV and a separate walk-in shower. There is a spacious walk in wardrobe for extra storage. Another high-spec shower room serves the additional two bedrooms, all designed to the same impeccable standard. Upstairs also benefits from a spacious eves storage room.

    Externally, electric gates open to a sweeping driveway with ample parking and a carport. Landscaped gardens front and rear provide privacy, while multiple sheds add valuable storage.

    The location is exceptional: a short walk to the beach, Culloden Hotel and train station, with everything needed for an outstanding family lifestyle.

    To arrange a private viewing or for further information please contact Clare Wylie on 02890 450 550.

    Rooms

    Michael Chandler Estate Agents have endeavoured to prepare these sales particulars as accurately and reliably as possible for the guidance of intending purchasers or lessees. These particulars are given for general guidance only and do not constitute any part of an offer or contract. The seller and agents do not give any warranty in relation to the property/ site. We would recommend that all information contained in this brochure is verified by yourself or your professional advisors. Services, fittings and equipment referred to in the sales details have not been tested and no warranty is given to their condition. All measurements contained within this brochure are approximate. Site sizes are approximate and have not been verified.
    Please note that the vendor of this property is associated with Michael Chandler Estate Agents.
    Outdoor Storage 10'2 X 8'2 (3.10m X 2.49m)
    Home Gym 16'6 X 13'0 (5.03m X 3.96m)
    Covered Car Port
    Outside:
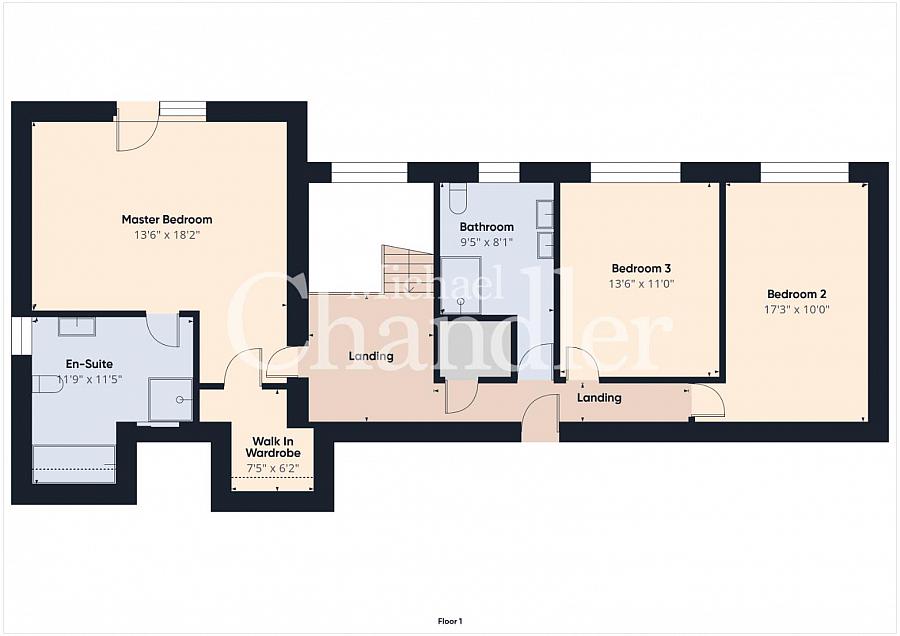
    Bathroom 9'5 X 8'1 (2.87m X 2.46m)
    Bedroom 3 17'3 X 10'0 (5.26m X 3.05m)
    Bedroom 2 13'6 X 11'0 (4.11m X 3.35m)
    Master En-Suite 11'9 X 11'5 (3.58m X 3.48m)
    Walk in Wardrobe 7'5 X 6'2 (2.26m X 1.88m)
    Master Bedroom 13'6 X 18'2 (4.11m X 5.54m)
    Landing
    First Floor:
    Utility Room 16'0 X 10'0 (4.88m X 3.05m)
    Storage Cupboard 2'10 X 4'1 (0.86m X 1.24m)
    Bathroom 10'8 X 8'2 (3.25m X 2.49m)
    Bedroom 5 11'11 X 14'2 (3.63m X 4.32m)
    En-suite 7'9 X 9'8 (2.36m X 2.95m)
    Walk in Wardrobe 3'10 X 4'7 (1.17m X 1.40m)
    Bedroom 4 13'9 X 10'11 (4.19m X 3.33m)
    Kitchen / Dining / Living Area 21'6 X 18'3 (6.55m X 5.56m)
    Living Room 12'2 X 12'11 (3.71m X 3.94m)
    Lounge 19'0 X 13'0 (5.79m X 3.96m)
    Entrance Hall
    Ground Floor:

    Video

    Broadband Speed Availability

    Ultrafast

    Potential Speeds for 6 Glen Road

    Max Download
    1800
    Mbps
    Max Upload
    220
    Mbps
    The speeds indicated represent the maximum estimated fixed-line speeds as predicted by Ofcom. Please note that these are estimates, and actual service availability and speeds may differ.

    Property Location

    Show Map

    Mortgage Calculator

    Disclaimer: The following calculations act as a guide only, and are based on a typical repayment mortgage model. Financial decisions should not be made based on these calculations and accuracy is not guaranteed. Always seek professional advice before making any financial decisions.

    Contact Agent

    Contact Michael Chandler Estate Agents

    Contact Michael Chandler Estate Agents

    Request More Information
    Requesting Info about...
    6 Glen Road, Cultra, Holywood, BT18 0HB 6 Glen Road, Cultra, Holywood, BT18 0HB

    By registering your interest, you acknowledge our Privacy Policy