Contact Agent
Contact John Minnis Estate Agents (Holywood)
3 Bed Townhouse
10 Kinnegar Road
Holywood, BT18 9JN
offers over
£350,000
Key Features & Description
Three-bedroom period mid-townhouse located in the popular and picturesque Kinnegar area of Holywood.
Stunning, uninterrupted views over Belfast Lough to the Antrim Hills and coastline
Spacious open-plan living/dining area with square bay window and feature fireplace, ideal for entertaining or relaxing.
Hand-painted kitchen with integrated appliances, breakfast bar, and access to a bright conservatory.
Additional utility space and ground floor WC, providing practical family living.
Two bathrooms - a modern shower room and a separate family bathroom
Converted attic room with dual Velux windows, suitable as a third bedroom, home office, or studio.
South-facing, enclosed rear garden with mature planting and paved patio, enjoying all-day sun.
Generous double garage with rear access, offering potential for conversion to office, workshop, or studio space (subject to approvals).
Prime location within walking distance to Holywood town centre, coastal paths, train station, and leading local schools.
Description
Welcome to 10 Kinnegar Road, a beautifully presented three-bedroom mid-townhouse located in the highly sought-after Kinnegar area of Holywood. This charming period home combines traditional character with practical living and enjoys uninterrupted views across Belfast Lough to the Antrim Hills and coastline.
Inside, the home retains many original features, with a welcoming reception hall leading to a spacious open-plan living and dining area complete with a central feature fireplace and a stunning square bay window framing the coastal outlook. The hand-painted kitchen offers both style and functionality, with integrated appliances, a breakfast bar, and direct access to a bright conservatory overlooking the rear garden. Additional ground floor conveniences include a utility area and downstairs WC.
Upstairs, the property offers well-proportioned bedrooms and two stylish bathrooms, including a shower room and a separate family bathroom. A converted attic with dual Velux windows provides excellent additional living space, perfect for use as a guest bedroom, home office, or studio.
Outside, the south-facing rear garden enjoys sunlight throughout the day, with mature planting and a paved patio creating a private outdoor retreat. A large double garage, accessed from Kinnegar Drive, offers fantastic potential for conversion into a home office, studio, or workshop, subject to permissions.
Just a short walk from Holywood´s vibrant town centre, coastal paths, train station, and top local schools, this exceptional home offers both lifestyle and location. Early viewing is highly recommended.
Welcome to 10 Kinnegar Road, a beautifully presented three-bedroom mid-townhouse located in the highly sought-after Kinnegar area of Holywood. This charming period home combines traditional character with practical living and enjoys uninterrupted views across Belfast Lough to the Antrim Hills and coastline.
Inside, the home retains many original features, with a welcoming reception hall leading to a spacious open-plan living and dining area complete with a central feature fireplace and a stunning square bay window framing the coastal outlook. The hand-painted kitchen offers both style and functionality, with integrated appliances, a breakfast bar, and direct access to a bright conservatory overlooking the rear garden. Additional ground floor conveniences include a utility area and downstairs WC.
Upstairs, the property offers well-proportioned bedrooms and two stylish bathrooms, including a shower room and a separate family bathroom. A converted attic with dual Velux windows provides excellent additional living space, perfect for use as a guest bedroom, home office, or studio.
Outside, the south-facing rear garden enjoys sunlight throughout the day, with mature planting and a paved patio creating a private outdoor retreat. A large double garage, accessed from Kinnegar Drive, offers fantastic potential for conversion into a home office, studio, or workshop, subject to permissions.
Just a short walk from Holywood´s vibrant town centre, coastal paths, train station, and top local schools, this exceptional home offers both lifestyle and location. Early viewing is highly recommended.
Rooms
Holywood, named Best Place to Live in Northern Ireland 2023 by the Sunday Times, is located conveniently close to Belfast on the coast of North Down. Holywood is known for its beautiful beaches, trendy cafés and for being a foodie heaven! Holywood is home to many leading secondary and primary schools.
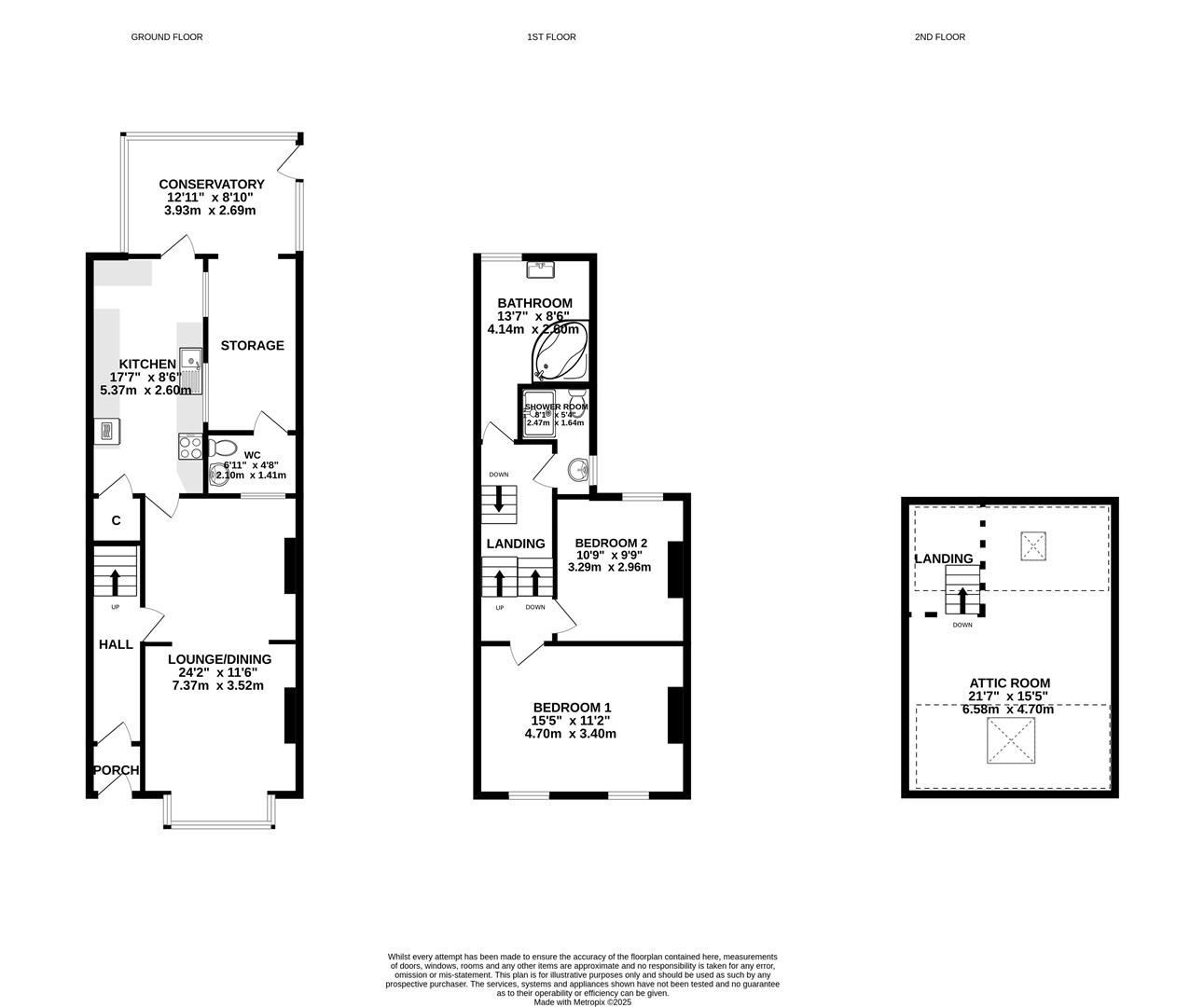
Attic Room 21'7" X 15'5" (6.58m X 4.70m)
A generous attic room with two large skylights set into the sloped ceiling, offering a bright and airy environment. The space is currently arranged as a home office with desks and seating, with pale carpeting and white walls that enhance the light and spacious feel.
SECOND FLOOR
Shower Room 8'1" X 5'4" (2.47m X 1.64m)
uPVC panelled walls, tiled floor, inset spotlights, uPVC tongue and groove ceiling, extractor fan, electric T80 shower with telephone handle attachment, sliding glazed shower screen, uPVC panel.
Family Bathroom 13'7" X 8'6" (4.14m X 2.60m)
White suite comprising of wall hung wash hand basin, vanity storage below, chrome mixer tap, outlook to rear garden, oval bath with mixer taps, telephone handle attachment, partially tiled walls, chrome heated towel rail.
Bedroom 2 10'9" X 9'9" (3.29m X 2.96m)
Outlook to rear, cornice bordering.
Bedroom 1 15'5" X 11'2" (4.70m X 3.40m)
Outlook to front with beautiful views across Belfast Lough to the Antrim Hills and coastline.
Landing
A carpeted landing on the first floor providing access to the two bedrooms, bathroom, shower room, and stairs to the second floor landing.
FIRST FLOOR
FIRST FLOOR RETURN
Outside
Rear patio laid in paving with mature planting surrounding, space for shed and generous double garage with access from Kinnegar Drive.
Downstairs WC
With low flush WC, wall hung wash hand basin, chrome mixer taps, vanity storage below.
Storage
A useful storage area located between the kitchen and conservatory, offering space to keep household items organised and out of sight. The room is carpeted and provides practical access to the downstairs WC.
Conservatory 12'11 X 8'10 (3.94m X 2.69m)
With aspect to rear and side, open to lean-to storage and utility space with access to downstairs WC.
Kitchen 17'7 X 8'6 (5.36m X 2.59m)
Hand painted kitchen with range of high and low level units, space for fridge freezer, integrated dual oven, space for dishwasher, four ring hob with extractor above, inset low voltage LED spotlights, stainless steel sink and a half with drainer, chrome mixer taps, casual breakfast bar dining area, tiled floor, laminate wood effect work surface, glazed display cabinetry, uPVC and double glazed access doors through to conservatory.
Open Plan Living/ Dining 24'2 X 11'6 (7.37m X 3.51m)
With beautiful views across Belfast Lough to the Antrim Hills and coastline, into square bay, central feature fireplace with granite surround and hearth, cerammic frame and mantel, open to dining room and through to kitchen.
Reception Hall
With period features.
GROUND FLOOR
RECEPTION PORCH
With tiled floor, electrics, through to reception hall.
ENTRANCE
Hardwood front door with central fan light, double glazed top light, through to reception porch.
Broadband Speed Availability
Potential Speeds for 10 Kinnegar Road
Max Download
1800
Mbps
Max Upload
220
MbpsThe speeds indicated represent the maximum estimated fixed-line speeds as predicted by Ofcom. Please note that these are estimates, and actual service availability and speeds may differ.
Property Location
Mortgage Calculator
Contact Agent
Contact John Minnis Estate Agents (Holywood)
Request More Information
Requesting Info about...
10 Kinnegar Road, Holywood, BT18 9JN
By registering your interest, you acknowledge our Privacy Policy
By registering your interest, you acknowledge our Privacy Policy