Contact Agent

Contact iamsold NI

Contact iamsold NI

4 Bed Land

24 Market Street

Keady, BT60 3RP

guide price £29,950
  • Status For Sale
  • Property Type Land
  • Bedrooms 4
  • Receptions 2
  • Bathrooms 4
  • Typical Mortgage
    Click price to use our mortgage calculator

Description

For sale by CPS property via the iamsold Bidding Platform

Please note this property will be offered by online auction (unless sold prior). For auction date and time please visit www.iamsoldni.com. Vendors may decide to accept pre-auction bids so please register your interest with us to avoid disappointment.

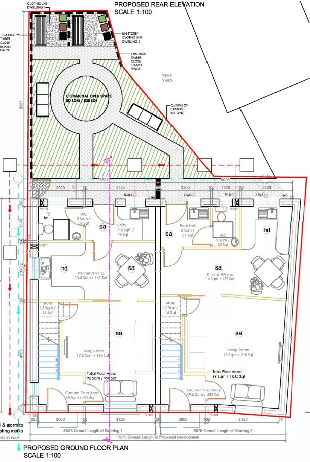
We are duly appointed to offer to the open market this development site formerly known as the "Social Club" of Keady O’Dwyers Gealic Football Club which is located within the centre of Keady town.

The development is within a few minute walk of all local amenities Keady has to offer as well as close proximity to all local bus routes and stops.

The property would be seen as an ideal purchase for investors and the likes as it has passed planning permission for two new semi-detached residential homes.

The planning permission was granted on the 30th September 2021 and the reference number is LA08/2021/1429/F.

An investment opportunity of this stature rarely presents itself to the open market.

TO VIEW OR MAKE A BID Contact CPS property or iamsold NI, www.iamsoldni.com

Property Location

Show Map

Mortgage Calculator

Disclaimer: The following calculations act as a guide only, and are based on a typical repayment mortgage model. Financial decisions should not be made based on these calculations and accuracy is not guaranteed. Always seek professional advice before making any financial decisions.

Contact Agent

Contact iamsold NI

Contact iamsold NI

Request More Information
Requesting Info about...
24 Market Street, Keady, BT60 3RP 24 Market Street, Keady, BT60 3RP

By registering your interest, you acknowledge our Privacy Policy