Commercial Land
Killeen Bridge Hotel Development, Dublin Road
Killeen Bridge, Newry, BT35 8RL
offers over
£680,000
- Status For Sale
- Property Type Commercial Land
-
Stamp Duty
Higher amount applies when purchasing as buy to let or as an additional property£24,000 / £58,000*
Key Features & Description
Description
A LANDMARK HOTEL OPPORTUNITY ON THE BELFAST - DUBLIN CORRIDOR
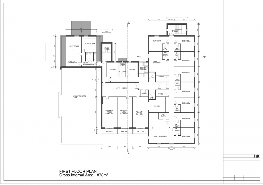
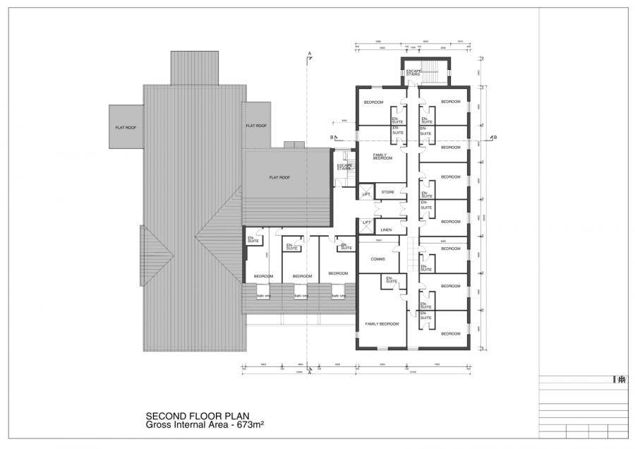
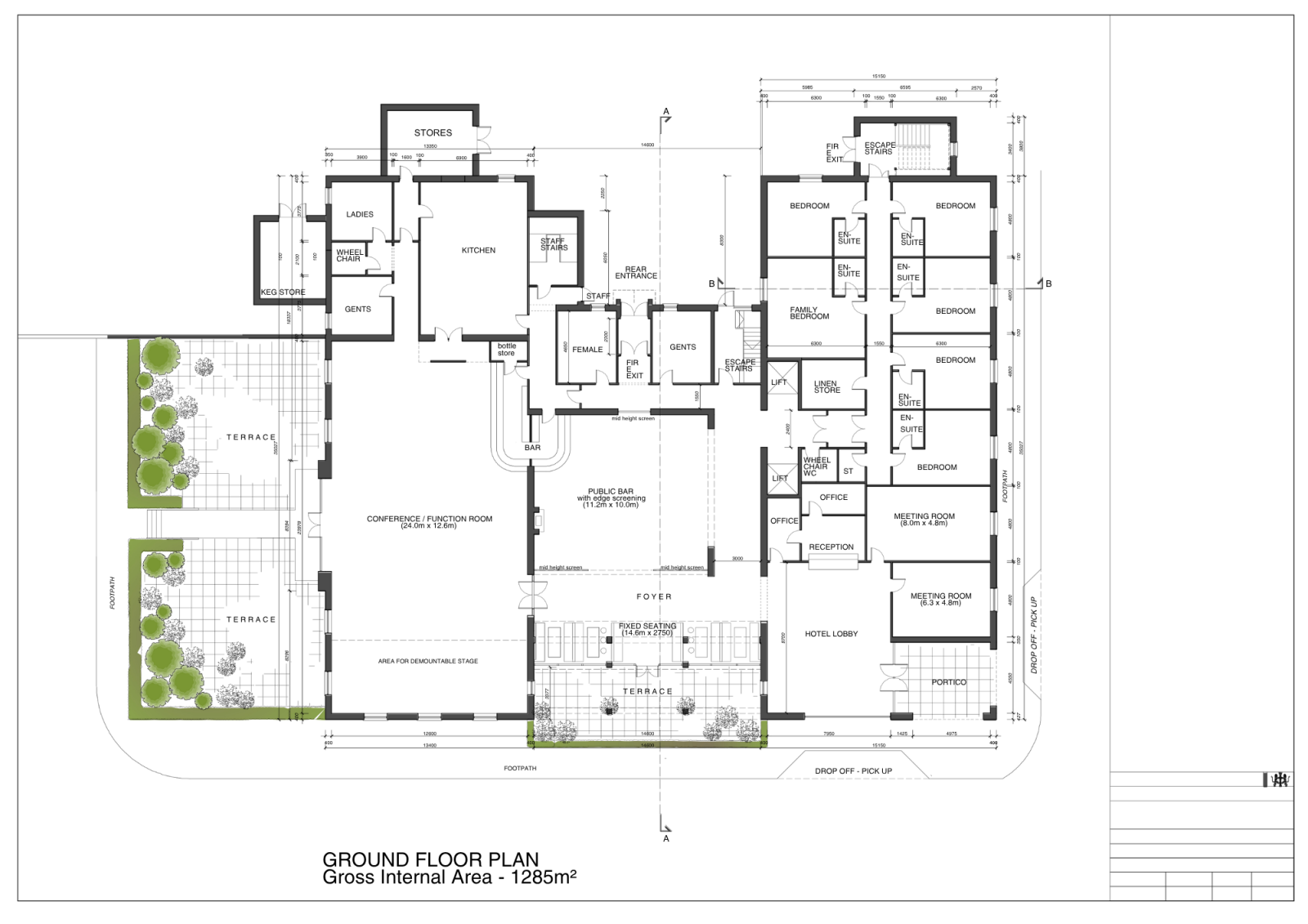
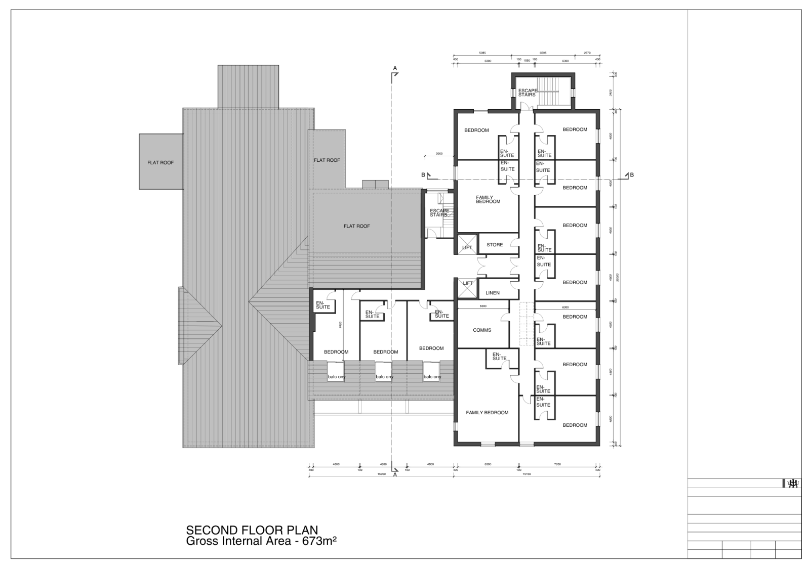
Killeen Bridge Hotel represents a unique chance to acquire a fully consented development site positioned at the midpoint of the island´s most important economic and tourism axis. Set within c. 7.9 acres, the property benefits from full planning permission (Ref LA07/2017/1315/F) for a 29-bedroom, three-storey boutique hotel incorporating bar, restaurant, conference and function suite, meeting rooms and landscaped terraces. The hotel site extends to 1.6 acres, with the remaining agricultural lands extending to 6.3 acres.
Strategically located 0.6 miles from the A1 dual carriageway and 3 miles south of Newry City, the site enjoys direct access to both Northern Ireland and the Republic of Ireland markets. The setting-framed by the Ring of Gullion Area of Outstanding Natural Beauty-combines rural tranquility with exceptional connectivity, creating a destination that is equally suited to leisure, events, and corporate guests.
*FULL DETAILS AVAILABLE VIA THE ATTACHED BROCHURE*
A LANDMARK HOTEL OPPORTUNITY ON THE BELFAST - DUBLIN CORRIDOR
Killeen Bridge Hotel represents a unique chance to acquire a fully consented development site positioned at the midpoint of the island´s most important economic and tourism axis. Set within c. 7.9 acres, the property benefits from full planning permission (Ref LA07/2017/1315/F) for a 29-bedroom, three-storey boutique hotel incorporating bar, restaurant, conference and function suite, meeting rooms and landscaped terraces. The hotel site extends to 1.6 acres, with the remaining agricultural lands extending to 6.3 acres.
Strategically located 0.6 miles from the A1 dual carriageway and 3 miles south of Newry City, the site enjoys direct access to both Northern Ireland and the Republic of Ireland markets. The setting-framed by the Ring of Gullion Area of Outstanding Natural Beauty-combines rural tranquility with exceptional connectivity, creating a destination that is equally suited to leisure, events, and corporate guests.
*FULL DETAILS AVAILABLE VIA THE ATTACHED BROCHURE*
Rooms
FURTHER INFORMATION
Inspection of the site is strictly by appointment:
Garrett O'Hare,
Managing Director
T: 028 300 50633
E: garrett@simonbrienbradley.com
or
Stephen Gray,
Branch Manager
T: 028 300 50633
E: stephen@simonbrienbradley.com
Garrett O'Hare,
Managing Director
T: 028 300 50633
E: garrett@simonbrienbradley.com
or
Stephen Gray,
Branch Manager
T: 028 300 50633
E: stephen@simonbrienbradley.com
TERMS OF SALE
The property is being offered For Sale by Private Treaty. However, the vendor reserves the right to conclude the sale via auction or "Best and Final" bids at a date and time to be confirmed.
The criteria required from interested parties in placing an offer must include:
- Confirmation of name and address of proposed purchaser
- Confirmation of offer level
- Proof of funds from Bank to confirm that adequate funds are available to complete the purchase at offer level
- Timescale to complete the purchase post acceptance of offer
- Confirmation of solicitor who will represent purchaser
10% deposit of agreed purchase price shall be payable upon agreement of sale
- Further information pack to be provided at this point
The criteria required from interested parties in placing an offer must include:
- Confirmation of name and address of proposed purchaser
- Confirmation of offer level
- Proof of funds from Bank to confirm that adequate funds are available to complete the purchase at offer level
- Timescale to complete the purchase post acceptance of offer
- Confirmation of solicitor who will represent purchaser
10% deposit of agreed purchase price shall be payable upon agreement of sale
- Further information pack to be provided at this point
APPROVED DESIGN - READY TO DELIVER
Full planning permission (Ref: LA07/2017/1315/F) was granted in May 2022 for the development of a 29-bedroom, three-storey hotel with bar, restaurant, function suite, meeting rooms and landscaped terraces.
The design blends traditional local materials with contemporary proportions, creating a building that sits naturally within its countryside setting.
Key design features include:
A granite-clad entrance gable with full-height glazing and a recessed canopy |
White rendered elevations with raised strap detailing |
Slate roof with dormer windows providing symmetry and character |
Landscaped front terrace for dining and events, overlooking the Ring of Gullion |
Dedicated parking and service areas to the rear as per McIlwaine Landscape Plan |
The approved Gross Internal Area (GIA) is approximately 30,690 sq ft (2,851 m²) on a total site of c. 7.9 acres
The design blends traditional local materials with contemporary proportions, creating a building that sits naturally within its countryside setting.
Key design features include:
A granite-clad entrance gable with full-height glazing and a recessed canopy |
White rendered elevations with raised strap detailing |
Slate roof with dormer windows providing symmetry and character |
Landscaped front terrace for dining and events, overlooking the Ring of Gullion |
Dedicated parking and service areas to the rear as per McIlwaine Landscape Plan |
The approved Gross Internal Area (GIA) is approximately 30,690 sq ft (2,851 m²) on a total site of c. 7.9 acres
INFRASTRUCTURE MOMENTUM
The property sits at the centre of transformative regional investment:
Southern Relief Road (£110 million DfI Project):
Links the A1 Dublin Road to the A2 Warrenpoint dual carriageway, just 0.5 miles away, providing a direct southern bypass of Newry City
Narrow Water Bridge (Opening 2027) |
This landmark connection will integrate the Mourne-Carlingford-Gullion tourism cluster into a single visitor circuit, enhancing hotel demand throughout the region |
Together, these projects will redefine accessibility to Newry and its hinterland - positioning Killeen Bridge at the gateway between Northern Ireland and the Republic of Ireland |
Southern Relief Road (£110 million DfI Project):
Links the A1 Dublin Road to the A2 Warrenpoint dual carriageway, just 0.5 miles away, providing a direct southern bypass of Newry City
Narrow Water Bridge (Opening 2027) |
This landmark connection will integrate the Mourne-Carlingford-Gullion tourism cluster into a single visitor circuit, enhancing hotel demand throughout the region |
Together, these projects will redefine accessibility to Newry and its hinterland - positioning Killeen Bridge at the gateway between Northern Ireland and the Republic of Ireland |
LOCATION & CONNECTIVITY
Strategically located midway between Belfast and Dublin, Killeen Bridge offers direct access to the island´s most important transport, trade and tourism corridor |
Just 0.6 miles from the A1 dual carriageway, the site connects to a catchment of over 2.5 million people within a 90-minute drive |
The location provides the rare combination of high visibility and natural serenity - set among the rolling countryside of the Ring of Gullion yet minutes from major arterial routes, ports and airports |
For developers and operators, the A1 corridor represents one of the most robust hotel and hospitality sub-markets in Ireland: high year-round traffic, cross-border tourism, and strong mid-week corporate demand from both capital cities.
Just 0.6 miles from the A1 dual carriageway, the site connects to a catchment of over 2.5 million people within a 90-minute drive |
The location provides the rare combination of high visibility and natural serenity - set among the rolling countryside of the Ring of Gullion yet minutes from major arterial routes, ports and airports |
For developers and operators, the A1 corridor represents one of the most robust hotel and hospitality sub-markets in Ireland: high year-round traffic, cross-border tourism, and strong mid-week corporate demand from both capital cities.
THE INVESTMENT PROPOSITION
A fully consented, grant-eligible site at the intersection of two capital cities, surrounded by world-class scenery and a fast-growing visitor economy.
Few development opportunities in Northern Ireland combine such planning certainty, location strength, and tourism upside within a single asset.
Few development opportunities in Northern Ireland combine such planning certainty, location strength, and tourism upside within a single asset.
THE OPPORTUNITY
Proven demand for high-quality accommodation across the Mourne-Carlingford region. Tourism NI recorded 1.5 million overnight visitors to the district in 2024, reflecting year-on-year growth |
Infrastructure momentum: the £110 million Southern Relief Road and the new Narrow Water Bridge will strengthen transport links and open a new coastal tourism circuit |
Public-sector support: eligible for the Newry Mourne & Down District Council Hotel Development Grant Scheme 2025 - offering up to £300,000 or 30 % of eligible build costs |
Flexible delivery: boutique hotel, wellness retreat, wedding venue, or mixed hospitality concept
Infrastructure momentum: the £110 million Southern Relief Road and the new Narrow Water Bridge will strengthen transport links and open a new coastal tourism circuit |
Public-sector support: eligible for the Newry Mourne & Down District Council Hotel Development Grant Scheme 2025 - offering up to £300,000 or 30 % of eligible build costs |
Flexible delivery: boutique hotel, wellness retreat, wedding venue, or mixed hospitality concept
EXECUTIVE SNAPSHOT
Site Area:
c. 7.9 acres (3.19 ha)
Planning Reference:
LA07/2017/1315/F |
Planning Status:
Full approval for 29-bedroom hotel with bar, restaurant, function suite & meeting rooms
Gross Internal Area (Approved): c. 30,690 sq ft (2,851 m²) |
Location:
Dublin Road, Killeen Bridge, Newry BT35 8RL
- 0.6 miles to A1 Dual Carriageway
- 3 miles to Newry City Centre
- 1.3 miles to Irish Border / Dundalk |
Tourism Zone:
Ring of Gullion AONB | Mourne-Carlingford Tourism Corridor |
Key Infrastructure:
Southern Relief Road (£110 m DfI Project)
Narrow Water Bridge (Opening 2027) |
Grant Eligibility:
NMDDC Hotel Development Grant Scheme - up to £300,000 (30 % of eligible build costs) |
Tenure:
Freehold |
Guide Price:
Offers Over £680,000 |
c. 7.9 acres (3.19 ha)
Planning Reference:
LA07/2017/1315/F |
Planning Status:
Full approval for 29-bedroom hotel with bar, restaurant, function suite & meeting rooms
Gross Internal Area (Approved): c. 30,690 sq ft (2,851 m²) |
Location:
Dublin Road, Killeen Bridge, Newry BT35 8RL
- 0.6 miles to A1 Dual Carriageway
- 3 miles to Newry City Centre
- 1.3 miles to Irish Border / Dundalk |
Tourism Zone:
Ring of Gullion AONB | Mourne-Carlingford Tourism Corridor |
Key Infrastructure:
Southern Relief Road (£110 m DfI Project)
Narrow Water Bridge (Opening 2027) |
Grant Eligibility:
NMDDC Hotel Development Grant Scheme - up to £300,000 (30 % of eligible build costs) |
Tenure:
Freehold |
Guide Price:
Offers Over £680,000 |
Property Location
Mortgage Calculator
Contact Agent
Contact Simon Brien Bradley (Newry)
Request More Information
Requesting Info about...
Killeen Bridge Hotel Development, Dublin Road, Killeen Bridge, Newry, BT35 8RL
By registering your interest, you acknowledge our Privacy Policy
By registering your interest, you acknowledge our Privacy Policy