4 Bed Detached House
27 Ballybunden Road
Killinchy, BT23 6RD
offers around
£375,000
Key Features & Description
Situated a Short Distance from Balloo Cross Roads, Killinchy Village and Whiterock.
Well Maintained Gardens
Spacious Driveway Leading to a Car Port
Economy 7 Central Heating and Upvc Glazing
Shower Room Situated on the Ground Floor
Four Generous sized Bedrooms with the Principal having a En-Suite
Kitchen And Dining Area
A spacious Country Residence Set in Generous Mature Landscaped Gardens
Description
A spacious country residence set in generous mature landscaped gardens and situated a short distance from Balloo cross roads, Killinchy village and Whiterock.
The property built in the early 50's to exacting standard included three receptions kitchen, and shower room at ground floor level, four bedrooms including principal bedroom en-suite and bathroom.
At ground floor the accommodation is versatile with the option of using a reception adjacent to the shower room as a ground floor bedroom. The property would benefit from updating but provides a rare opportunity to acquire a home in the popular location.
Good connections to schools in Downpatrick, Newtownards and East Belfast are available at Balloo together with a good selection of shops post office, renowned restaurant and gift shop.
For those with sporting interests Strangford Lough provides a wide selection of sailing and aquatic sports with a selection of other sports clubs close by.
A spacious country residence set in generous mature landscaped gardens and situated a short distance from Balloo cross roads, Killinchy village and Whiterock.
The property built in the early 50's to exacting standard included three receptions kitchen, and shower room at ground floor level, four bedrooms including principal bedroom en-suite and bathroom.
At ground floor the accommodation is versatile with the option of using a reception adjacent to the shower room as a ground floor bedroom. The property would benefit from updating but provides a rare opportunity to acquire a home in the popular location.
Good connections to schools in Downpatrick, Newtownards and East Belfast are available at Balloo together with a good selection of shops post office, renowned restaurant and gift shop.
For those with sporting interests Strangford Lough provides a wide selection of sailing and aquatic sports with a selection of other sports clubs close by.
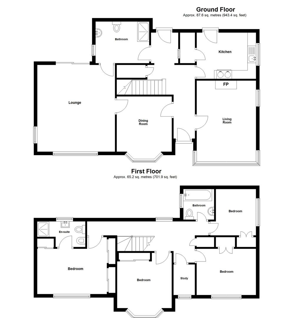
Rooms
Capitial / Rateable Value
£235,000. Rates Payable = £2,147.20 Per Annum (Approx)
Tenure
Freehold
Aluminium Framed Greenhouse 10 X 8 (3.05m X 2.44m)
Gardens
Extensive mature gardens to front side and rear laid out in rolling lawns a fine selection of ornamental and flowering shrubs and spring flowering bulbs. Flagged patios are situated to the front and rear designed to catch the sun throughout the day.
Garden Store 15'10 X 6'11 (4.83m X 2.11m)
Separate low flush WC; part tiled floor; light and power point; plumbed for washing machine.
Fuel Store 16'1 X 6'11 (4.90m X 2.11m)
Light point.
Covered Car Port and Garage
Outside
Double wrought iron gates and bitmac drive with ample parking to front and side and leading to garaging.
Roofspace
Floored; access folding ladder.
Bathroom 5'11 X 5'11 (1.80m X 1.80m)
White suite comprising panelled bath with chrome mixer taps; pedestal wash hand basin with mirror strip light and shaver socket over; close coupled WC tiled walls; corniced ceiling.
Bedroom 4 8'11 X 7'9 (2.72m X 2.36m)
Double built in wardrobe with cupboards over.
Bedroom 3 11'5 X 8'11 (3.48m X 2.72m)
Double built in wardrobe with cupboards over.
Study 5'10 X 4'3 (1.78m X 1.30m)
Built in shelves; tiled walls.
Bedroom 2 12'6 X 10'5 (3.81m X 3.18m)
Two double built in wardrobes with sliding doors and cupboards over.
Landing
Hotpress with lagged copper cylinder and immersion heater; Dimplex EC7 radiator.
En-Suite Shower Room 9'2 X 4'11 (2.79m X 1.50m)
Maximum Measurements
Sunking coloured suite comprising tiled shower with Mira thermostatically controlled shower smoked glass shower doors; pedestal wash hand basin; close coupled WC; bidet; tiled walls; LED strip light and vanity light with shaver socket; Dimplex wall mounted electric heater.
Sunking coloured suite comprising tiled shower with Mira thermostatically controlled shower smoked glass shower doors; pedestal wash hand basin; close coupled WC; bidet; tiled walls; LED strip light and vanity light with shaver socket; Dimplex wall mounted electric heater.
Principal Bedroom 14'10 X 10'11 (4.52m X 3.33m)
Maximum Measurements
Built in furniture including triple wardrobe with sliding doors concealing ample clothes rails and nest of drawers; kneehole dressing table with mirror over and display cupboard with nest of 3 drawers under and all with cupboards over; matching double wardrobe with sliding doors and cupboards over.
Built in furniture including triple wardrobe with sliding doors concealing ample clothes rails and nest of drawers; kneehole dressing table with mirror over and display cupboard with nest of 3 drawers under and all with cupboards over; matching double wardrobe with sliding doors and cupboards over.
1st Floor
½ landing leading to:-
Walk in Pantry 5'10 X 2'10 (1.78m X 0.86m)
Quarry tiled floor; part tiled walls; range of fitted shelves; extractor fan.
Kitchen 10'8 X 8'6 (3.25m X 2.59m)
Single drainer stainless steel sink unit with mixer taps; range of laminate eye and floor level cupboards and drawers; formica worktops; Rayburn oil fired range; LED strip lighting; tiled walls; quarry tiled floor.
Family Room 16'9 X 14'11 (5.11m X 4.55m)
Slate tiled fireplace and hearth with matching canopy and display recess; corniced ceiling; sliding patio door and side panel to rear patio; Dimplex EC7 radiator; door to shower room.
Dining Room 12'0 X 10'5 (3.66m X 3.18m)
Maximum Measurements including bay window
Corniced ceiling; Dimplex electric EC7 radiator.
Corniced ceiling; Dimplex electric EC7 radiator.
Sitting Room
Cream marble and granite fireplace and hearth; hardwood mantle; built in TV stand; 2 wall lights; Heatstore electric radiator.
Entrance Hall
Quarry tiled floor; cloak cupboard
Broadband Speed Availability
Potential Speeds for 27 Ballybunden Road
Max Download
1800
Mbps
Max Upload
220
MbpsThe speeds indicated represent the maximum estimated fixed-line speeds as predicted by Ofcom. Please note that these are estimates, and actual service availability and speeds may differ.
Property Location
Mortgage Calculator
Contact Agent
Contact Tim Martin & Co (Comber)
Request More Information
Requesting Info about...
27 Ballybunden Road, Killinchy, BT23 6RD
By registering your interest, you acknowledge our Privacy Policy
By registering your interest, you acknowledge our Privacy Policy