Contact Agent

Contact John Minnis Estate Agents (Comber)

Contact John Minnis Estate Agents (Comber)

4 Bed Detached House

1 Sketrick View

Whiterock, Killinchy, BT23 6NZ

offers around £569,950
  • Status For Sale
  • Property Type Detached
  • Bedrooms 4
  • Receptions 3
  • Interior Area 2583 sqft
  • EPC Rating C72 / C74 -
  • Stamp Duty
    Higher amount applies when purchasing as buy to let or as an additional property
    £18,498 / £46,995*
  • Typical Mortgage
    Click price to use our mortgage calculator
EPC Rating

Key Features & Description

Nestled in an Exclusive and Private Development of Three Homes this Detached Home Offers a Peaceful Setting in County Downs Most Sought-After Locations
Unrivalled Views Over Whiterock Bay and Sketrick Island
Numerous Local Attractions Nearby Whilst Still Providing Good Road and Transport Links to Belfast and Surrounding Towns
Beautifully Presented Home Ideal for Those Seeking Relaxed Living with Nature on Your Doorstep
Generous Family Lounge with Feature Fire
Fully Fitted Kitchen with Ample Dining Space
Family Living Room with Inset Media Wall and Contemporary Open Fire with Access to Rear Garden
Additional Dining Room with French Doors to Rear Garden
Four Well Proportioned Bedrooms Two Offering Ensuite Facilities, Two with Outlook Over the Bay and Sketrick Island
Luxurious Family Bathroom with Contemporary Feature Walk-in Shower and Separate Bath
Utility Room / Downstair WC
Oil Fired Central Heating / uPVC Double Glazing Throughout
Decorative Brick Driveway Providing Ample Off Streetcar Parking
Double Garage
Fully Enclosed Rear Garden Both Laid in Lawn with Paved Patio Areas Providing the Perfect Spot to Relax
Early Viewing Highly Recommended
Nestled in an exclusive and private development of just three homes this exceptional detached property offers a rare opportunity to enjoy peaceful and coastal living in one of County Downs most sought
Description
Nestled in an exclusive and private development of just three homes this exceptional detached property offers a rare opportunity to enjoy peaceful and coastal living in one of County Downs most sought-after locations in Whiterock with unrivalled views over the bay and Sketrick Island.

Whiterock is well renowned for its scenic beauty, sailing facilities and strong community spirit. Daft Eddys and Balloo House restaurant are both very close by. The area also offers many coastal walks and water sports while still providing residents excellent road and transport links to Belfast and surrounding areas perfect for those wishing to commute to work or school.

Accessed via a private laneway, this beautifully presented family home is ideally positioned to enjoy both privacy and tranquillity, ideal for those families seeking a relaxed lifestyle with nature on their doorstep with excellent living and entertaining space. Accommodation in brief comprises of welcoming entrance hall, generous family lounge with feature fireplace, kitchen with ample dining space, family living room with French doors to the rear garden and feature contemporary open fire, additional dining room, four well portioned bedrooms two of which offer ensuite facilities and a modern luxurious family bathroom with a statement shower and additional bath.

Further benefits include utility room, downstair WC, oil fired central heating and uPVC double glazing throughout.

Outside the decorative brick driveway provides ample off streetcar parking leading to the double garage. The front of the property also has a lawn with mature planting. To the rear a fully enclosed garden both laid in lawn with paved patio area all ideal for outdoor entertaining, young children, and pets alike.

This property has so much on offer, early viewing is highly advised.

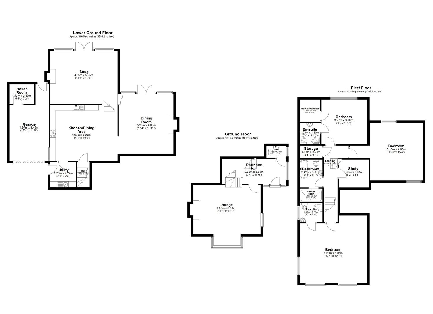
Rooms

uPVC front door with glass inset and glass side panels
Entrance Hall 7'4" X 18'6" (2.23m X 5.65m) Bright and spacious with part double height ceiling, Velux windows, outlook to side, under stair storage
WC 3'5" X 5'10" (1.04m X 1.77m) Porcelain tiled floor, decorative tiled splashback, outlook to side, low flush WC, ½ pedestal sink with chrome mixer tap, extractor
Family Lounge 14'3" X 19'7" (4.35m X 5.96m) Dual outlook to front and side, bay window, carpet, feature fireplace with sandstone surround, slate hearth and gas fire
Stairs Leading to 1st Floor Carpet
Kitchen 16'4" X 17'11" (4.97m X 5.47m) Porcelain tiled floor, recessed spot lighting, range of low and high level units with solid wood doors and Quartz worktops, space for Range cooker, Neff extractor fan, integrated dishwasher, 1 ½ bowl inset stainless steel sink with Quooker tap, tiled splashback, outlook over living space and rear garden, breakfast bar with drawers, solid wood seating area with seating, space for fridge / freezer, integrated CDA microwave, access to utility room
Utility Room 7'4" X 7'6" (2.23m X 2.29m) Porcelain tiled floor, uPVC door to side drive with glass inset, heating controls, range of low- and high-level units with laminate worktops, space / plumbed for washing and tumble dryer, single bowl sink and drainer with chrome mixer tap
Family Living Room / Snug 15'3" X 19'6" (4.65m X 5.95m) Wood effect tiled floor, Velux windows to rear, French doors to back garden, contemporary inset media wall and open fire with granite hearth
Dining Room 17'4" X 15'4" (5.29m X 4.68m) Accessed from both kitchen and living room, French doors to rear garden, outlook to front, carpet, Feature multi burning stove with wood beam mantel and tiled hearth
Stairs to Upper Level Carpet, large storage cupboard
Bedroom Four / Office 8'2" X 8'8" (2.48m X 2.64m) Carpet, Velux window
Bedroom Three 16'9" X 15'4" (5.10m X 4.68m) Dual outlook with views over Whiterock Bay and Sketrick Island, carpet, range of built in wardrobes
Bedroom Two 17'4" X 19'7" (5.28m X 5.97m) Velux windows, tri aspect outlook to front and sides, carpet, built in storage, access to ensuite
Ensuite 5'7" X 6'10" (1.69m X 2.08m) Porcelain tiled floor, Velux windows, shower enclosure with thermostatically controlled shower, panelled walls, low flus WC, ½ pedestal sink with chrome miser tap, panelled splashback, chrome heated towel rail, recessed spotlights, extractor fan
Principal Bedroom 13' X 12'10" (3.97m X 3.90m) Outlook to rear with breath-taking views over Whiterock bay / Sketrick Island, carpet, access to ensuite shower room, access to walk in wardrobe with both hanging and shelf space
Ensuite 6'4" X 5'11" (1.93m X 1.80m) Porcelain tiled floor, part tiled walls, chrome heated towel rail, recessed spotlights, extractor fan, ½ pedestal sink with chrome mixer taps, tiled splashback, low flush WC, shower cubicle with thermostatically controlled shower
Family Bathroom 8'1" X 6'7" (2.46m X 2.01m) Porcelain tiled floor, Velux window, part tiled walls, recessed spot lights, bath with chrome wall mounted mixer tap, low flush WC, ½ pedestal sink with chrome mixer tap, chrome heated towel rail, extractor fan, walk in shower with recessed spot lights, extractor fan, Velux window, pebbled detail floor with soak away, tiled walls, thermostatically controlled shower with handheld and overhead drencher
Garage 16'4" X 11'5" (4.97m X 3.49m) Access from rear garden, roller shutter door, access to boiler room.
Outside Decorative brick driveway with ample off streetcar parking, lawns with mature planting - hedges / palm trees, access to garage. To the rear a fully enclosed garden with a glimpse of Whiterock bay in the distance, paved patio area, pebbled edging and a lawn surrounded by mature planting all perfect for outdoor entertaining, young children or pets alike, raised flowerbeds, gate access to both sides, outside light, concealed oil tank, outside water
The Villages proximity to the sea and its vibrant local culture make it a hidden gem for those seeking tranquillity and connection to nature. The area is well known for offering excellent cuisine with Daft Eddys, Balloo house, The Old Post Office and The Poachers Pockets all very close by.

Broadband Speed Availability

Ultrafast

Potential Speeds for 1 Sketrick View

Max Download
1800
Mbps
Max Upload
1000
Mbps
The speeds indicated represent the maximum estimated fixed-line speeds as predicted by Ofcom. Please note that these are estimates, and actual service availability and speeds may differ.

Property Location

Show Map

Mortgage Calculator

Disclaimer: The following calculations act as a guide only, and are based on a typical repayment mortgage model. Financial decisions should not be made based on these calculations and accuracy is not guaranteed. Always seek professional advice before making any financial decisions.

Contact Agent

Contact John Minnis Estate Agents (Comber)

Contact John Minnis Estate Agents (Comber)

Request More Information
Requesting Info about...
1 Sketrick View, Whiterock, Killinchy, BT23 6NZ 1 Sketrick View, Whiterock, Killinchy, BT23 6NZ

By registering your interest, you acknowledge our Privacy Policy