Contact Agent

Contact Thomas Orr

Contact Thomas Orr

Site

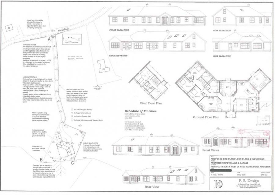
Site 150m SSW of , 33 Manse Road

Glastry, Kircubbin, BT22 1DR

offers around £99,500
  • Status For Sale
  • Property Type Site
  • Stamp Duty
    Higher amount applies when purchasing as buy to let or as an additional property
    £0 / £4,975*
  • Typical Mortgage
    Click price to use our mortgage calculator

Description

Site for new dwelling and garage set in the beautiful countryside of the Ards Peninsula. Just outside Glastry, this site is set back from the Manse Road up a short lane and is set on around half an acre. The lane is in hardcore and the foundations are already in for the property which extends to approximately 2800 square foot excluding the garage. Water is available from the road. Lane included in the sale with use only for the new dwelling.
Larger plans for the dwelling available to view in Thomas Orr.
Application Reference: X/2007/0633/RM

Broadband Speed Availability

Ultrafast

Potential Speeds for 33 Manse Road

Max Download
1800
Mbps
Max Upload
220
Mbps
The speeds indicated represent the maximum estimated fixed-line speeds as predicted by Ofcom. Please note that these are estimates, and actual service availability and speeds may differ.

Property Location

Show Map

Mortgage Calculator

Disclaimer: The following calculations act as a guide only, and are based on a typical repayment mortgage model. Financial decisions should not be made based on these calculations and accuracy is not guaranteed. Always seek professional advice before making any financial decisions.

Directions

Pass Glastry Presbyterian Church towards Rubane up a short lane on the left hand side

Contact Agent

Contact Thomas Orr

Contact Thomas Orr

Request More Information
Requesting Info about...
Site 150m SSW of , 33 Manse Road, Glastry, Kircubbin, BT22 1DR Site 150m SSW of , 33 Manse Road, Glastry, Kircubbin, BT22 1DR

By registering your interest, you acknowledge our Privacy Policy