Contact Agent

Contact Simon Brien (East Belfast)

Contact Simon Brien (East Belfast)

5 Bed Detached House

64 Knock Road

Belfast, County Antrim, BT5 6LR

price £695,000
  • Status For Sale
  • Property Type Detached
  • Bedrooms 5
  • Receptions 3
  • Bathrooms 2
  • EPC Rating F32 / D62
  • Stamp Duty
    Higher amount applies when purchasing as buy to let or as an additional property
    £24,750 / £59,500*
  • Typical Mortgage
    Click price to use our mortgage calculator
EPC Rating

Key Features & Description

  • Period Detached Property Circa 1865
  • Original Architectural Features Throughout
  • Moulding And Corniced Ceilings
  • Single Glazed Original Sliding Sash Windows
  • Three Reception Rooms
  • Five Well Proportioned Bedrooms
  • Kitchen With Casual Dining Area
  • Downstairs Cloakroom With WC
  • Pantry And Laundry Room
  • Ample Parking To Rear Accessed Via Shared Private Laneway
  • Substantial Enclosed Mature Gardens To Front, Sides and Rear
  • Oil Fired Central Heating
  • Convenient To Leading Primary & Post Primary Schools
  • Within Walking Distance Of Ballyhackamore, Comber Greenway & Public Transport Links. Close To Belfast City Airport, Belfast City Centre & Titanic Quarter
  • Description
    A rare opportunity has arisen to purchase this period family home. Belgrave Villa is a detached Victorian property set in stunning gardens on a site of approximately 0.5 acres. Packed with original features throughout, this property would benefit from sympathetic modernisation.

    Please note that this property may be impacted by the potential future A55 Knock Road Widening scheme. This scheme proposes the provision of two lanes in each direction along Knock Road, between Glen Road and Kings Road junctions. Details of the scheme are available at the following web site: https://www.infrastructure-ni.gov.uk/articles/a55-knock-road-widening-overview

    The property has also previously been granted Planning Permission in June 2011 for a replacement dwelling to the rear of the site of circa 2500 sqft (now lapsed).

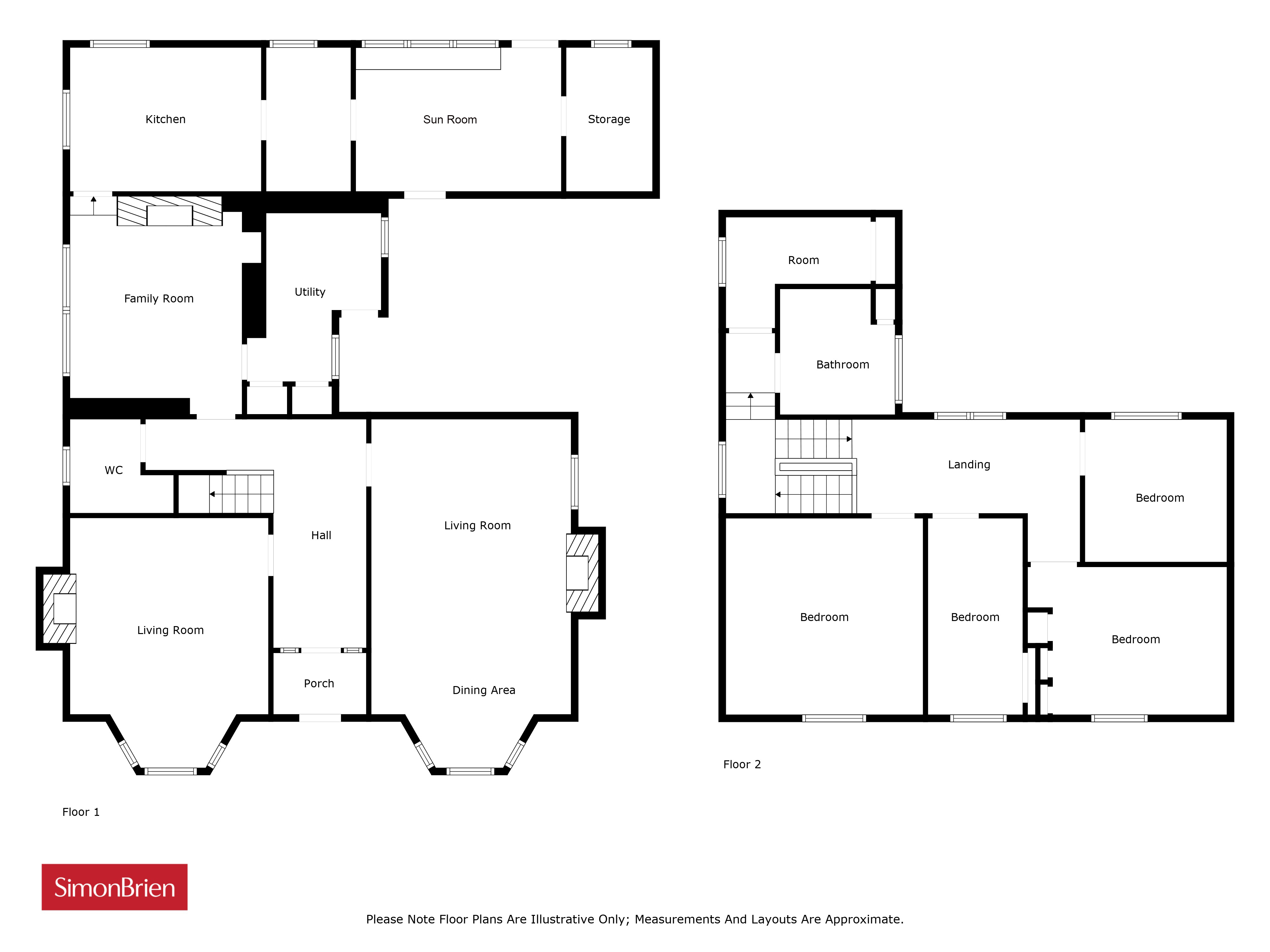
    Rooms

    Ground Floor
    Enclosed Entrance Porch Original tiled floor
    Large Entrance Hall Medallion Block corniced ceiling
    Drawing Room 24'8" X 13'8" (7.52m X 4.17m(intobay)) Egg and Dart corniced ceiling, marble fireplace, open fire, dual aspect windows
    Study/Reception Room 17'5" X 13'6" (5.30m X 4.11m(Intobay)) Egg and Dart corniced ceiling, marble fireplace, open fire, dual aspect windows
    Cloakroom WC, wash hand basin, under stairs storage
    Laundry Room 12'0" X 8'4" (3.66m X 2.54m(atwidestpoint)) Belfast sink, plumbed for washing machine, leading to enclosed yard with outhouse
    Morning Room 12'1" X 11'10" (3.68m X 3.60m) Fireplace, overlooking rockery garden
    Kitchen 13'0" X 10'0" (3.96m X 3.05m) Dual aspect overlooking side and back gardens
    Pantry 10'0" X 6'7" (3.05m X 2.00m)
    Sun Room/Conservatory 14'5" X 10'5" (4.40m X 3.18m)
    First Floor
    Bedroom 1 11'10" X 5'0" (3.60m X 1.52m) Built in wardrobes
    Bedroom 2 13'9" X 13'5" (4.20m X 4.10m) Built in wardrobes
    Bedroom 3 14'0" X 6'6" (4.27m X 1.98m) Built in wardrobes
    Bedroom 4 13'10" X 10'5" (4.22m X 3.18m)
    Bedroom 5 11'10" X 5'0" (3.60m X 1.52m) Built in wardrobes
    Bathroom 7'9" X 7'5" (2.36m X 2.26m) Coloured suite comprising pedestal wash hand basin, low flush WC and power shower

    Broadband Speed Availability

    Ultrafast

    Potential Speeds for 64 Knock Road

    Max Download
    1800
    Mbps
    Max Upload
    220
    Mbps
    The speeds indicated represent the maximum estimated fixed-line speeds as predicted by Ofcom. Please note that these are estimates, and actual service availability and speeds may differ.

    Property Location

    Show Map

    Mortgage Calculator

    Disclaimer: The following calculations act as a guide only, and are based on a typical repayment mortgage model. Financial decisions should not be made based on these calculations and accuracy is not guaranteed. Always seek professional advice before making any financial decisions.

    Contact Agent

    Contact Simon Brien (East Belfast)

    Contact Simon Brien (East Belfast)

    Request More Information
    Requesting Info about...
    64 Knock Road, Belfast, County Antrim, BT5 6LR 64 Knock Road, Belfast, County Antrim, BT5 6LR

    By registering your interest, you acknowledge our Privacy Policy