Contact Agent

Contact Brian Todd Estate Agents

Contact Brian Todd Estate Agents

Site

81 -83 Main Street

Larne, BT40 1HH

offers around £265,000
  • Status For Sale
  • Property Type Site
  • Stamp Duty
    Higher amount applies when purchasing as buy to let or as an additional property
    £3,250 / £16,500*
  • Typical Mortgage
    Click price to use our mortgage calculator

Key Features & Description

PROMINENT DEVELOPMENT SITE
MAIN / QUAY STREET LOCATION
FULL PLANNING PERMISSION
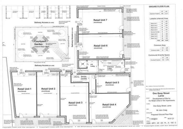
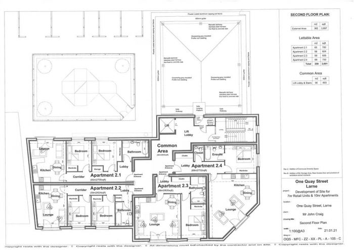
GROUND FLOOR - SEVEN RETAIL UNITS - TOTAL UNIT 4261 SQ FT
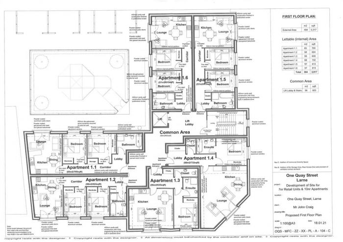
FIRST FLOOR - SIX APARTMENTS - TOTAL 3917 SQ FT
SECOND FLOOR - FOUR APARTMENTS - TOTAL 2691 SQ FT
Description
Occupying a promienent corner Main Street position, this is a superb opportunity for the developer to acquire this substantial mixed use development site.
Complete with full planning permission, the site will consist of retail to the ground floor with first and second floors consisting of ten number apartments.
All enquiries should be directed to Agents.

Rooms

RETAIL UNITS: Consisting of seven units.
Consisting of six apartments.
Consisting of four apartments.

Property Location

Show Map

Mortgage Calculator

Disclaimer: The following calculations act as a guide only, and are based on a typical repayment mortgage model. Financial decisions should not be made based on these calculations and accuracy is not guaranteed. Always seek professional advice before making any financial decisions.

Directions

Larne

Contact Agent

Contact Brian Todd Estate Agents

Contact Brian Todd Estate Agents

Request More Information
Requesting Info about...
81 -83 Main Street, Larne, BT40 1HH 81 -83 Main Street, Larne, BT40 1HH

By registering your interest, you acknowledge our Privacy Policy