Contact Agent

Contact Montgomery Finlay & Co

Contact Montgomery Finlay & Co

6 Bed Detached House

7 Drumhirk Road

Enniskillen, Lisbellaw, BT94 5LD

offers over £595,000
  • Status For Sale
  • Property Type Detached
  • Bedrooms 6
  • Receptions 2
  • Interior Area 3900 sq.ft
  • Heating Oil
  • Stamp Duty
    Higher amount applies when purchasing as buy to let or as an additional property
    £19,750 / £49,500*
  • Typical Mortgage
    Click price to use our mortgage calculator

Description

7 Drumhirk Road, Drumhirk, Co. Fermanagh

Exceptional New Build Home with Direct Access and Views Over Drumhirk Lough


Overview

A remarkable new build six-bedroom detached residence with detached double garage, set on approximately 1.2 acres of grounds extending to Drumhirk Lough.
This impressive c. 3,900 sq. ft. home enjoys an idyllic lakefront position in the heart of the Fermanagh Lakelands, renowned for its breathtaking scenery, outdoor recreation, and peaceful lifestyle.

Located only:

  • 4 miles from Lisbellaw

  • 5 miles from Maguiresbridge

  • 8 miles from Enniskillen

  • 1.2 miles from the new Carrybridge Hotel & Marina (under construction)


Key Features

  • New build property (shell finish) allowing the buyer to personalise the final interior design

  • Views and access onto Drumhirk Lough

  • Detached 600 sq. ft. double garage with insulated electric roller doors and WC

  • Private electric gated entrance with generous driveway, parking and turning area

  • Underfloor heating on the ground floor

  • Flexible open-plan living layout designed to capture panoramic lake views

  • Chain free

  • Approx. 1.2 acre site with additional land extending into the lough

  • Peaceful rural setting within easy reach of local towns and amenities


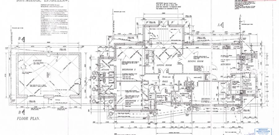
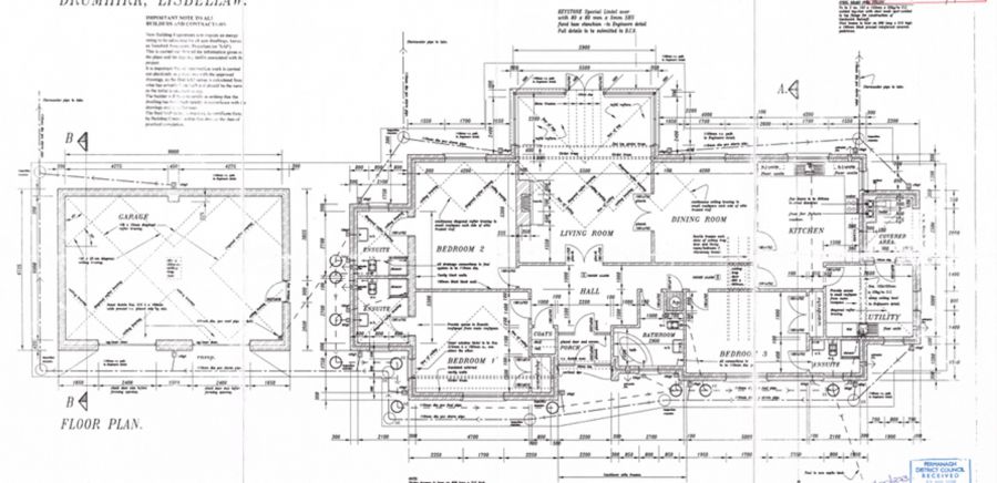
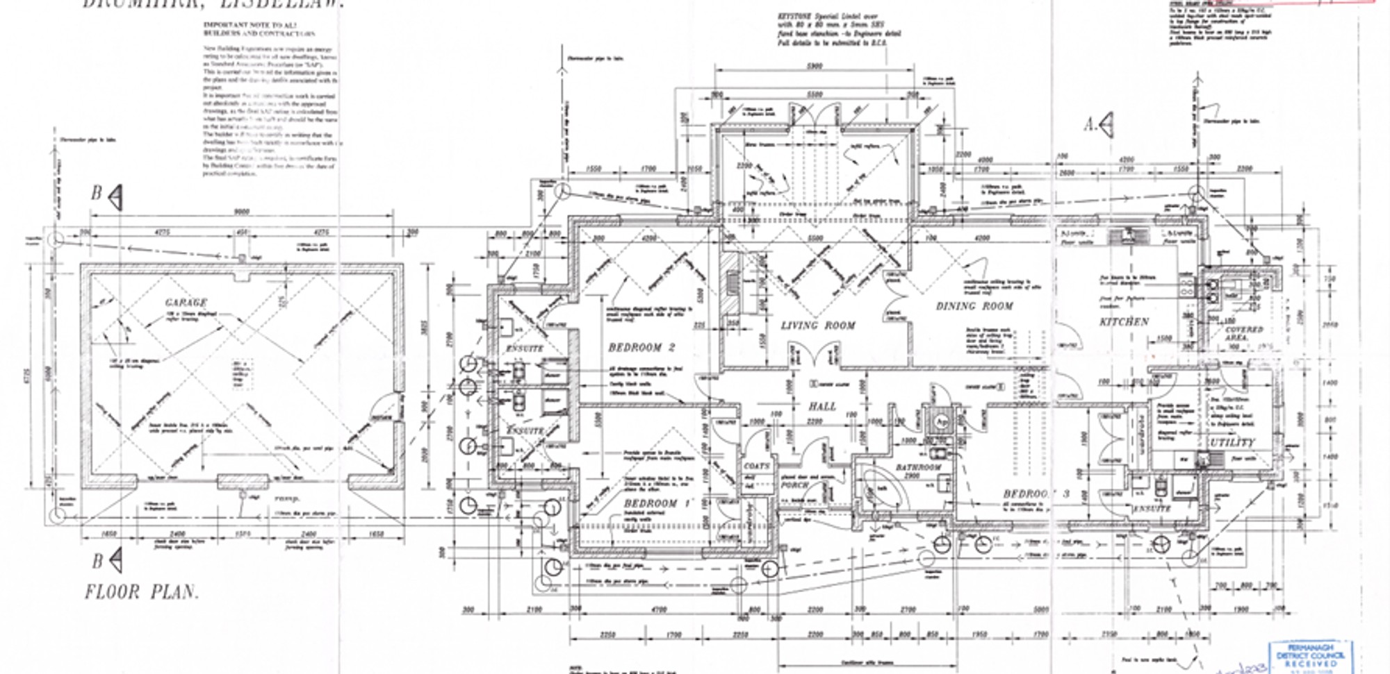
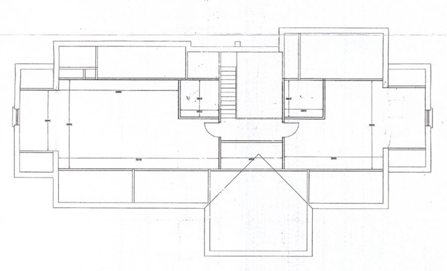
Accommodation

Ground Floor

  • Entrance Hall: 30'3" x 3'22" + 12'2" x 13'8"

  • Living Room: 18'2" x 23'7" — open-plan, lake views

  • Kitchen: 15'2" x 13'8" — adjoining dining space

  • Dining Room: 13'7" x 13'8"

  • Utility Room: 12'5" x 10'8"

  • Boot Room: 8'2" x 6'7"

  • Bedroom 1: 11'5" x 14'2" – Ensuite (6'9" x 4'8")

  • Bedroom 2: 15'7" x 14'2" – Built-in wardrobe, Ensuite (6'7" x 7'7")

  • Bedroom 3: 14'3" x 17'8" – Ensuite (6'6" x 8'5")

  • Family Bathroom: 10'10" x 8'5"

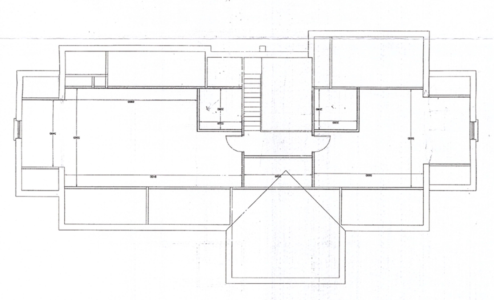
First Floor

  • Landing: 12'6" x 11'5" + 15'2" x 5'4"

  • Bedroom 4 (Master): 20'3" x 16'5"

    • Walk-in wardrobe (9'2" x 4'9")

    • Dressing Room (6'9" x 16'2")

    • Ensuite (7'4" x 6'3")

  • Bedroom 5: 14'6" x 16'7"

    • Walk-in wardrobe (6'4" x 16'3")

    • Ensuite (6'6" x 6'7")

  • Bedroom 6 / Study: 12'3" x 11'2"

Detached Double Garage: 30'5" x 20'2"

  • Electric insulated roller doors

  • WC (3'2" x 6'3")


Outside

The property is approached by electric gates leading to a stoned driveway and large parking/turning area.
The rear gardens offer level lawns and open panoramic views across Drumhirk Lough — the perfect setting for outdoor entertaining or peaceful relaxation.


Drumhirk Lough

Direct access to Drumhirk Lough, known for its excellent coarse fishing including Pike, Tench, Roach, Bream, and Perch.
A dream location for those who appreciate tranquillity, nature, and water-based recreation.


Summary

This exceptional home blends modern comfort with countryside charm, offering flexibility, space, and serenity — all within easy reach of Fermanagh’s main towns and attractions.
Sold as a shell finish, it presents a rare opportunity for buyers to complete the final aesthetic and truly make it their own.

 

???? Contact our Enniskillen office today to arrange a private viewing and experience this stunning lakeside home for yourself.

Property Location

Show Map

Mortgage Calculator

Disclaimer: The following calculations act as a guide only, and are based on a typical repayment mortgage model. Financial decisions should not be made based on these calculations and accuracy is not guaranteed. Always seek professional advice before making any financial decisions.

Contact Agent

Contact Montgomery Finlay & Co

Contact Montgomery Finlay & Co

Request More Information
Requesting Info about...
7 Drumhirk Road, Enniskillen, Lisbellaw, BT94 5LD 7 Drumhirk Road, Enniskillen, Lisbellaw, BT94 5LD

By registering your interest, you acknowledge our Privacy Policy