Contact Agent

Contact Templeton Robinson (Lisburn)

Contact Templeton Robinson (Lisburn)

3 Bed Semi-Detached House

55 Sir Richard Wallace Gardens

Lisburn City, Lisburn, BT28 3FL

offers around £245,000
  • Status For Sale
  • Property Type Semi-Detached
  • Bedrooms 3
  • Receptions 1
  • EPC Rating B83 / B83 -
  • Stamp Duty
    Higher amount applies when purchasing as buy to let or as an additional property
    £2,400 / £14,650*
  • Typical Mortgage
    Click price to use our mortgage calculator
EPC Rating

Key Features & Description

Immaculately Presented Three-Bedroom Semi-Detached Property in the Highly Regarded Sir Richard Wallace Development
Recently Constructed and Still Within Builder"s Warranty
Prime Location with Excellent Access to Belfast and Lisburn City Centres
Short Distance to Top-Rated Schools and Belfast International Airport
Conveniently Located Near Lisburn Golf Club, Sprucefield Retail Park, and Hillsborough Village
Bright and Spacious Front Reception Room
Ground Floor WC for Added Convenience
Contemporary Open-Plan Kitchen/Dining Area with High-Quality Fitted Units and Integrated Appliances
Three Well-Proportioned Bedrooms
Modern Family Bathroom with Sleek White Suite
Partially Floored Attic Offering Additional Storage Space
Private Driveway with Ample Off-Street Parking and Neat Front Lawn
Enclosed Rear Garden with a Southerly Orientation and Scenic Views
Gas-Fired Central Heating and uPVC Double Glazing Throughout
Excellent Energy Efficiency with Low Ongoing Running Costs
Security Alarm
Viewing Strongly Recommended to Avoid Disappointment
Description
55 Sir Richard Wallace Gardens offers an exceptional opportunity to purchase a beautifully finished three-bedroom semi-detached home in one of Lisburn"s most sought-after residential developments. Recently built and finished to an impeccable standard throughout, this modern home is ready for immediate occupation, simply move in and enjoy.
Ideally located on the edge of Lisburn City Centre, this stylish property benefits from convenient access to an excellent selection of local amenities, including popular cafés, shops, restaurants, and leisure facilities. It also falls within the catchment area for several of Northern Ireland"s most prestigious schools, making it ideal for families.
Internally, the accommodation is both spacious and thoughtfully laid out. It comprises a welcoming entrance hall, a bright and comfortable front-facing lounge, ground floor WC, and an open-plan kitchen/dining area with a bespoke fitted kitchen. Upstairs, there are three generous bedrooms and a modern family bathroom. There"s also a partially floored roof space providing useful additional storage.
Externally, the home features a well-maintained front garden, a private tarmac driveway with off-street parking, and a fully enclosed rear garden and stunning views, perfect for relaxing or entertaining.
Homes of this standard rarely come to market in this area. Early viewing is strongly advised to fully appreciate all that this wonderful home has to offer.

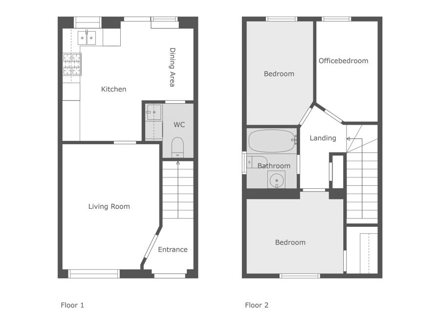
Rooms

ENTRANCE HALL: Tiled floor.
LOUNGE: 10' 10" X 14' 0" (3.30m X 4.27m) Laminate floor.
KITCHEN: 9' 2" X 13' 5" (2.79m X 4.09m) Integrated fridge freezer, oven and hob and dishwaher, range of high and low level units, ceramic tiled floor, access to rear.
DOWNSTAIRS W.C.: Low flush WC, wash hand basin, plumbed for washing machine.
LANDING: Access to roofspace with lighting, via slingsby ladder.
BEDROOM (1): 10' 10" X 9' 2" (3.30m X 2.79m) Built in robes.
BEDROOM (2): 7' 5" X 11' 7" (2.26m X 3.53m)
BEDROOM (3): 6' 11" X 11' 2" (2.11m X 3.40m) Currently used as dressing room.
BATHROOM: Panelled bath shower over, low flush WC, pedestal wash hand basin, part tiled walls, extractor fan.
OUTSIDE: Gardens in lawn to front with off street driveway parking. Gardens in lawn to the rear with patio area, perfect for relaxing and entertaining.

Property Location

Show Map

Mortgage Calculator

Disclaimer: The following calculations act as a guide only, and are based on a typical repayment mortgage model. Financial decisions should not be made based on these calculations and accuracy is not guaranteed. Always seek professional advice before making any financial decisions.

Directions

Sir Richard Wallace Gardens is located off Boomers Way in Lisburn.

Contact Agent

Contact Templeton Robinson (Lisburn)

Contact Templeton Robinson (Lisburn)

Request More Information
Requesting Info about...
55 Sir Richard Wallace Gardens, Lisburn City, Lisburn, BT28 3FL 55 Sir Richard Wallace Gardens, Lisburn City, Lisburn, BT28 3FL

By registering your interest, you acknowledge our Privacy Policy