Contact Agent
Contact Templeton Robinson (Lisburn Road)
Site
Site @ 206 Hillhall Road
Lisburn City, Lisburn, BT27 5JA
offers over
£350,000
- Status For Sale
- Property Type Site
-
Stamp Duty
Higher amount applies when purchasing as buy to let or as an additional property£7,500 / £25,000*
Key Features & Description
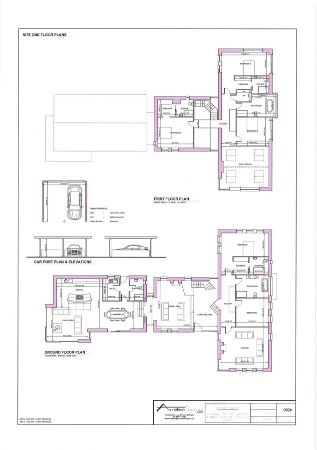
Full planning permission for a detached dwelling of approx 4,500 sq. ft.
Planning Ref number: LA05/2018/0320/F
Site extending to 0.4 acres
The site benefits from existing subfloor works and utility connections
Enjoying a semi-rural location while offering convenient access to Lisburn, Belfast, and surrounding areas
A prime opportunity to create your dream home in a sought-after location
Description
A rare opportunity to acquire a 0.4-acre site with full planning permission for a luxurious detached residence of approximately 4,500 sq. ft. Planning Ref number: LA05/2018/0320/F.
Ideally positioned in a sought-after location on Hillhall Road, this site offers the perfect setting for an impressive family home.
Significantly, the site already benefits from subfloor works and utility connections, providing a head start for construction. Nestled in a semi-rural setting, yet benfitting from ease of access to Lisburn, Belfast, and surrounding areas.
With excellent transport links, top schools, and local amenities nearby, this is an outstanding opportunity to build your dream home in a prime location.
A rare opportunity to acquire a 0.4-acre site with full planning permission for a luxurious detached residence of approximately 4,500 sq. ft. Planning Ref number: LA05/2018/0320/F.
Ideally positioned in a sought-after location on Hillhall Road, this site offers the perfect setting for an impressive family home.
Significantly, the site already benefits from subfloor works and utility connections, providing a head start for construction. Nestled in a semi-rural setting, yet benfitting from ease of access to Lisburn, Belfast, and surrounding areas.
With excellent transport links, top schools, and local amenities nearby, this is an outstanding opportunity to build your dream home in a prime location.
Property Location
Mortgage Calculator
Directions
Heading out of Belfast on the Hillhall Road towards Lisburn, the site is just after the Braniel Road is on the left hand side.
Contact Agent
Contact Templeton Robinson (Lisburn Road)
Request More Information
Requesting Info about...
Site @ 206 Hillhall Road, Lisburn City, Lisburn, BT27 5JA
By registering your interest, you acknowledge our Privacy Policy
By registering your interest, you acknowledge our Privacy Policy