Contact Agent

Contact Robert Wilson Estate Agency (Moira)

Contact Robert Wilson Estate Agency (Moira)

Site

Land Adjacent To 51, Glenavy Road

Lisburn, BT28 3XD

fixed price £100,000
  • Status For Sale
  • Property Type Site
  • Stamp Duty
    Higher amount applies when purchasing as buy to let or as an additional property
    £0 / £5,000*
  • Typical Mortgage
    Click price to use our mortgage calculator

Description

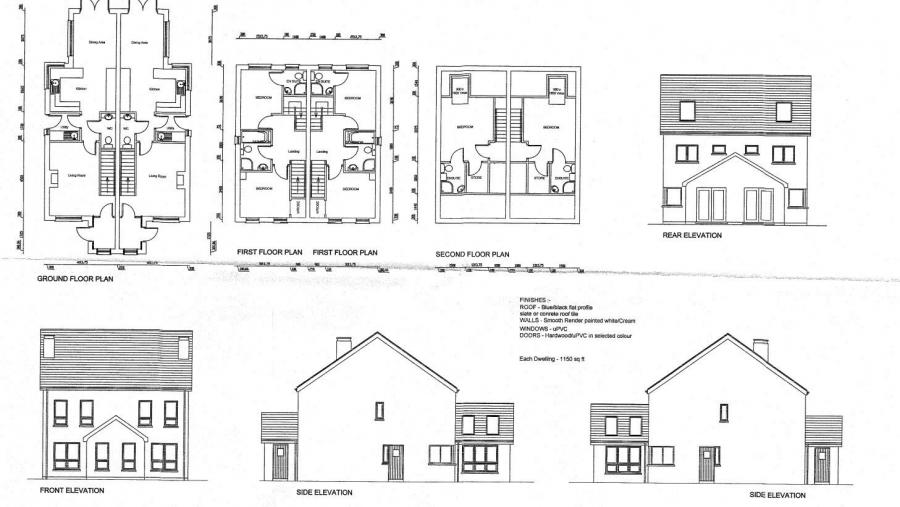
Development Opportunity – Semi-Rural Location

A fantastic opportunity to acquire a parcel of land with full potential for the construction of two stylish semi-detached homes, each benefiting from their own detached garages. Set in a desirable semi-rural location, the site offers the perfect balance of countryside charm and modern convenience, with open surroundings and excellent transport links close by.

This is an ideal project for developers, self-builders, or those seeking to create bespoke family homes in a peaceful yet well-connected setting.

*Boundary fence will be erected by purchaser

Planning Ref: S/2012/0148/F

Broadband Speed Availability

Ultrafast

Potential Speeds for Land Adjacent To 51, Land Adjacent To 51, Glenavy Road

Max Download
1800
Mbps
Max Upload
1000
Mbps
The speeds indicated represent the maximum estimated fixed-line speeds as predicted by Ofcom. Please note that these are estimates, and actual service availability and speeds may differ.

Property Location

Show Map

Mortgage Calculator

Disclaimer: The following calculations act as a guide only, and are based on a typical repayment mortgage model. Financial decisions should not be made based on these calculations and accuracy is not guaranteed. Always seek professional advice before making any financial decisions.

Contact Agent

Contact Robert Wilson Estate Agency (Moira)

Contact Robert Wilson Estate Agency (Moira)

Request More Information
Requesting Info about...
Land Adjacent To 51, Glenavy Road, Lisburn, BT28 3XD Land Adjacent To 51, Glenavy Road, Lisburn, BT28 3XD

By registering your interest, you acknowledge our Privacy Policy