Knocks Road, Eshcarcoge
Lisnaskea, BT92 5AU
- Status For Sale
- Property Type Land (Single Dwelling)
-
Stamp Duty
Higher amount applies when purchasing as buy to let or as an additional property£0 / £3,000*
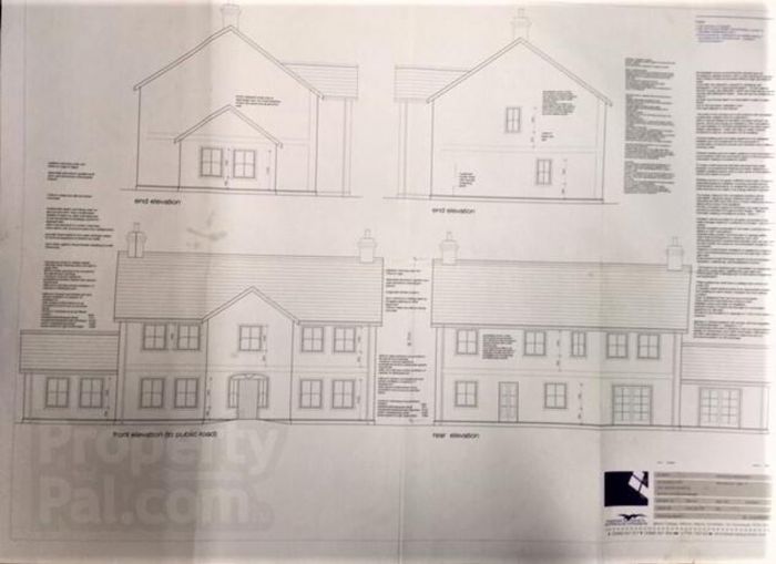
Description
Leonard Estate Agents are delighted to present these two site's located in the Knocks to the Sale Market. Both of these sites would provide a substantial and well deisnged family home once built. Located in a good quiet location down a lane off of the Knocks Road and close to the town of Lisnaskea. This really is an excellent opportunity.
Features of these properties once built are as follows:
Site 1
· Detached
· Open plan Kitchen / Dining area
· Family Room
· Utility Room
· Downstairs W/C
· Sitting Room
· Playroom
· Large entrance hall
· Bedroom 1 – Built in wardrobes and en-suite
· Bedroom 2 – en-suite
· Bedroom 3
· Bedroom 4
· Computer / Office area on the landing
· Garage with pitched roof
· Footings are in place
Site 2
· Detached
· Open plan Kitchen / Dining / Family Room
· Playroom
· Sitting Room
· Utility Room
· Downstairs WC
· Large Entrance Hall
· Bedroom 1 – Built in Wardrobes – en- suite
· Bedroom 2 – en-suite
· Bedroom 3
· Bedroom 4
· Bedroom 5
· Garage with pitched roof
· Footings are in place
For further details please contact out office on 028 677 24242
Mortgage: We are delighted to work with a highly experienced mortgage broker & we are happy to arrange an appointment so that you can discuss your requirements.
Leonard Estate Agents (NI) Limited (trading as Leonard Estate Agents) themselves and for the vendors or lessors of this property whose agents they are, give notice that: (A) The particulars are produced in good faith, are set out as a general guide only and do not constitute any part of a contract. (B) No person in the employment of Leonard Estate Agents have any authority to make or give any representation or warranty whatever in relation to this property.
Property Location
Mortgage Calculator
Contact Agent
Contact Leonard Estate Agents
By registering your interest, you acknowledge our Privacy Policy