Contact Agent
Contact Kingham Property Specialists
Land
5 Lurgan Road
Aghagallon, Lurgan, BT67 0DD
offers over
£110,000
- Status For Sale
- Property Type Land
- Receptions 1
- Heating Not Specified
-
Stamp Duty
Higher amount applies when purchasing as buy to let or as an additional property£0 / £5,500*
Description
Discover Your Dream Home at 5 Lurgan Road, Aghagallon!
Embark on a journey to create your perfect abode with the unique opportunity to own the only independent building site on the main road in the charming village of Aghagallon. This prime location boasts a large south-facing garden, providing the perfect setting to design your dream home bathed in natural light and warmth. Priced affordably at £110,000, this gem offers you the canvas to craft a sanctuary that is truly one-of-a-kind!
Notable points
Full planning permission approved for the following:
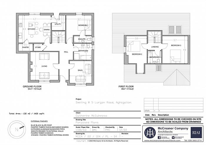
Detached 1420sqft Chalet bungalow
Additional existing garage` which offers the opportunity to add an additional living space (home office / gym / garage) .
You can have 3- or 4-bedroom option with separate lounge and kitchen diner.
With private access off the Lurgan Road
Planning application reference number LA08/2023/1999/F
Please note you can at your own leisure amend these drawings to suit your own requirements.
Crafting Your Dream Home:
Building your own house offers you unparalleled freedom and flexibility to bring your vision to life. With the advantage of being the sole independent site on the main road in Aghagallon, you have the rare opportunity to design a home that stands out in its uniqueness and charm. The large south-facing garden presents endless possibilities for creating outdoor spaces that invite relaxation and enjoyment, making your dream home a haven for rejuvenation and serenity.
An Oasis of Tranquility:
Surrounded by the lush greenery and scenic beauty of the countryside, 5 Lurgan Road offers a peaceful retreat from the hustle and bustle of city life. The large south-facing garden ensures that your home is filled with natural light throughout the day, creating a warm and inviting atmosphere. Imagine starting your mornings with the gentle rays of the sun streaming into your living space, filling it with positivity and energy.
Living in Harmony with Nature:
Aghagallon provides the ideal backdrop for those seeking a harmonious blend of modern living and natural beauty. The village`s close-knit community and serene ambiance offer a tranquil lifestyle that is hard to find elsewhere. With convenient access to amenities and the luxury of a spacious south-facing garden, living at 5 Lurgan Road promises a lifestyle of comfort, convenience, and connection with nature.
Proximity to Nearby Towns:
- Just a short drive from Lurgan, offering a range of shopping and dining options
- Close to Moira, known for its historic charm and leisure activities
- Easy access to Belfast, providing a vibrant city experience and cultural attractions
Why Choose 5 Lurgan Road:
- The only independent building site on the main road in Aghagallon
- Large south-facing garden for ample outdoor living space
- Unique opportunity to create a standout home that reflects your style
- Peaceful village setting with stunning countryside views
- Competitive price of £110,000 for this exceptional property
Don`t miss the chance to transform your dream home into a reality at 5 Lurgan Road. Contact us today to seize this exclusive opportunity and begin the journey towards crafting a home that is as extraordinary and special as you are. Welcome to a lifetime of comfort, beauty, and tranquility your dream home awaits in the heart of Aghagallon!
what3words /// name.unite.dwelled
Notice
Please note we have not tested any apparatus, fixtures, fittings, or services. Interested parties must undertake their own investigation into the working order of these items. All measurements are approximate and photographs provided for guidance only.
Utilities
Electric: Unknown
Gas: Unknown
Water: Unknown
Sewerage: Unknown
Broadband: Unknown
Telephone: Unknown
Other Items
Heating: Not Specified
Garden/Outside Space: No
Parking: Yes
Garage: Yes
Embark on a journey to create your perfect abode with the unique opportunity to own the only independent building site on the main road in the charming village of Aghagallon. This prime location boasts a large south-facing garden, providing the perfect setting to design your dream home bathed in natural light and warmth. Priced affordably at £110,000, this gem offers you the canvas to craft a sanctuary that is truly one-of-a-kind!
Notable points
Full planning permission approved for the following:
Detached 1420sqft Chalet bungalow
Additional existing garage` which offers the opportunity to add an additional living space (home office / gym / garage) .
You can have 3- or 4-bedroom option with separate lounge and kitchen diner.
With private access off the Lurgan Road
Planning application reference number LA08/2023/1999/F
Please note you can at your own leisure amend these drawings to suit your own requirements.
Crafting Your Dream Home:
Building your own house offers you unparalleled freedom and flexibility to bring your vision to life. With the advantage of being the sole independent site on the main road in Aghagallon, you have the rare opportunity to design a home that stands out in its uniqueness and charm. The large south-facing garden presents endless possibilities for creating outdoor spaces that invite relaxation and enjoyment, making your dream home a haven for rejuvenation and serenity.
An Oasis of Tranquility:
Surrounded by the lush greenery and scenic beauty of the countryside, 5 Lurgan Road offers a peaceful retreat from the hustle and bustle of city life. The large south-facing garden ensures that your home is filled with natural light throughout the day, creating a warm and inviting atmosphere. Imagine starting your mornings with the gentle rays of the sun streaming into your living space, filling it with positivity and energy.
Living in Harmony with Nature:
Aghagallon provides the ideal backdrop for those seeking a harmonious blend of modern living and natural beauty. The village`s close-knit community and serene ambiance offer a tranquil lifestyle that is hard to find elsewhere. With convenient access to amenities and the luxury of a spacious south-facing garden, living at 5 Lurgan Road promises a lifestyle of comfort, convenience, and connection with nature.
Proximity to Nearby Towns:
- Just a short drive from Lurgan, offering a range of shopping and dining options
- Close to Moira, known for its historic charm and leisure activities
- Easy access to Belfast, providing a vibrant city experience and cultural attractions
Why Choose 5 Lurgan Road:
- The only independent building site on the main road in Aghagallon
- Large south-facing garden for ample outdoor living space
- Unique opportunity to create a standout home that reflects your style
- Peaceful village setting with stunning countryside views
- Competitive price of £110,000 for this exceptional property
Don`t miss the chance to transform your dream home into a reality at 5 Lurgan Road. Contact us today to seize this exclusive opportunity and begin the journey towards crafting a home that is as extraordinary and special as you are. Welcome to a lifetime of comfort, beauty, and tranquility your dream home awaits in the heart of Aghagallon!
what3words /// name.unite.dwelled
Notice
Please note we have not tested any apparatus, fixtures, fittings, or services. Interested parties must undertake their own investigation into the working order of these items. All measurements are approximate and photographs provided for guidance only.
Utilities
Electric: Unknown
Gas: Unknown
Water: Unknown
Sewerage: Unknown
Broadband: Unknown
Telephone: Unknown
Other Items
Heating: Not Specified
Garden/Outside Space: No
Parking: Yes
Garage: Yes
Property Location
Mortgage Calculator
Contact Agent
Contact Kingham Property Specialists
Request More Information
Requesting Info about...
5 Lurgan Road, Aghagallon, Lurgan, BT67 0DD
By registering your interest, you acknowledge our Privacy Policy
By registering your interest, you acknowledge our Privacy Policy