Contact Agent

Contact Burns & Co Commercial (Magherafelt)

Contact Burns & Co Commercial (Magherafelt)

Site

Moneymore / Killyfaddy Road

Magherafelt, BT45

offers around £600,000
  • Status For Sale
  • Property Type Site
  • Stamp Duty
    Higher amount applies when purchasing as buy to let or as an additional property
    £20,000 / £50,000*
  • Typical Mortgage
    Click price to use our mortgage calculator
EPC Rating

Key Features & Description

For further details regarding planning etc. please contact the Agents.
TERMS AND CONDITIONS: Subject to clean and proper title only; Purchaser to pay 10% deposit at close of sale.
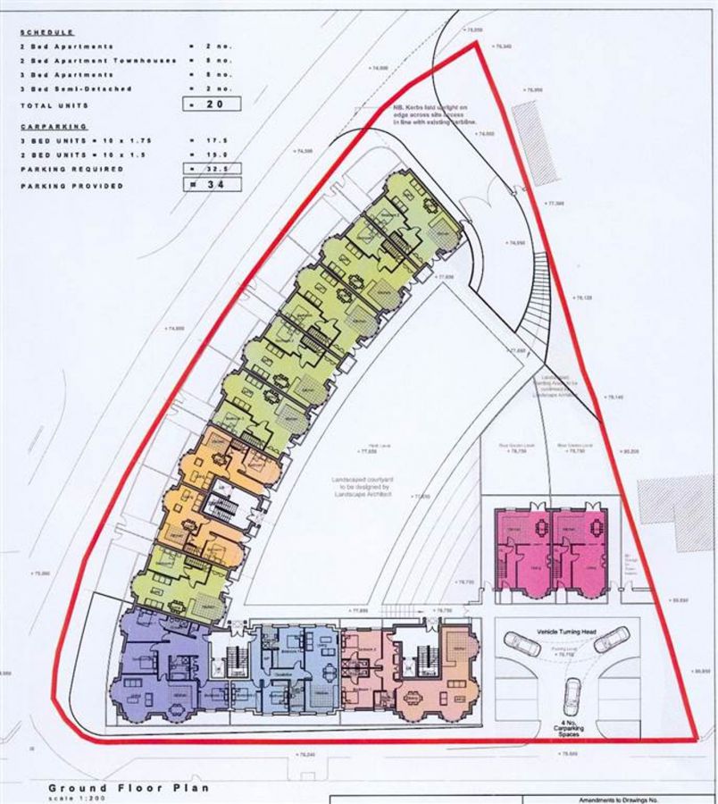
Planning Permission Reference: H/2008/0423/F.
Full planning permission for 20 Units - Semi-detached / townhouses / apartments
Ideal location, convenient to town amenities.
0.86 acre (approx.).
Prime Development Site with Full Planning Consent.
Description

Prime Development Site with Full Planning Consent 0.86 acre (approx.) Full planning permission for 20 Units (Semi-detached / townhouses / apartments) Ideal location, convenient to town amenities The subject site is located on the outskirts of the town centre on the corner of Moneymore Road and Killyfaddy Road. The site benefits from Full Planning Consent for 20 Units detailed below: Planning Reference: H/2008/0423/F 2 x 2 Bedroom Apartments (110 sq m) 8 x 2 Bedroom Apartment Townhouses (96-130 sq m) 8 x 3 Bedroom Apartments (94-118 sq m) 2 x 3 Bedroom Semi-Detached (108 sq m) Total - 20 Units TITLE Assumed freehold or long leasehold subject to a nominal ground rent TERMS AND CONDITIONS * Subject to clean and proper title only * Purchaser to pay 10% deposit at close of sale

Property Location

Show Map

Mortgage Calculator

Disclaimer: The following calculations act as a guide only, and are based on a typical repayment mortgage model. Financial decisions should not be made based on these calculations and accuracy is not guaranteed. Always seek professional advice before making any financial decisions.

Directions

Magherafelt is located approximately 35 miles North West of Belfast and 40 miles South East of Derry City.

Contact Agent

Contact Burns & Co Commercial (Magherafelt)

Contact Burns & Co Commercial (Magherafelt)

Request More Information
Requesting Info about...
Moneymore / Killyfaddy Road, Magherafelt, BT45 Moneymore / Killyfaddy Road, Magherafelt, BT45

By registering your interest, you acknowledge our Privacy Policy