Contact Agent
Contact Robert Wilson Estate Agency (Moira)
Site
Lands Approx 55M, South 23
Lurganville Road, Moira, BT67 0PN
fixed price
£185,000
- Status For Sale
- Property Type Site
-
Stamp Duty
Higher amount applies when purchasing as buy to let or as an additional property£1,200 / £10,450*
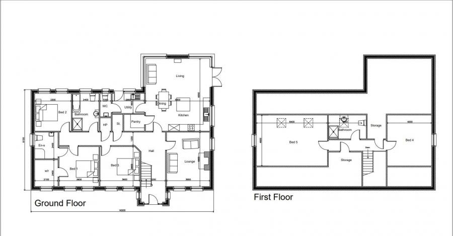
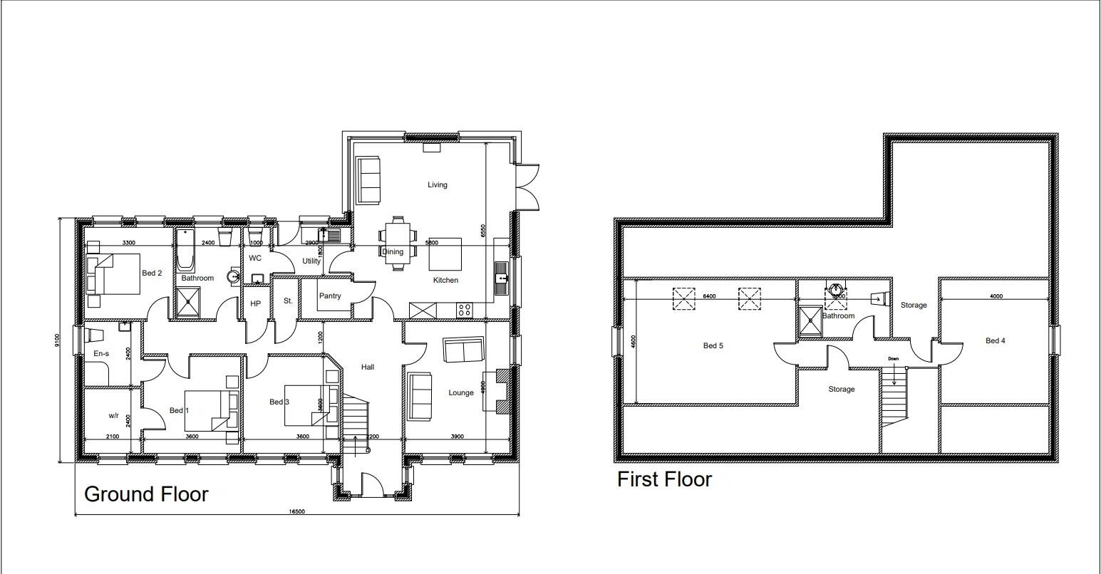
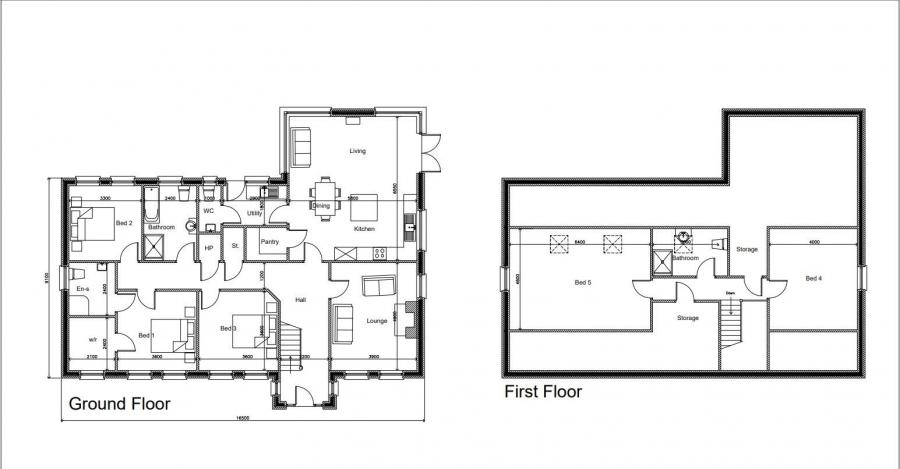
Description
Planning Ref: LA05/2025/0174/RM
Building site with approval of reserved matters
Excellent location between Moira and Hillsborough
Map is for ID purposes only
Property Location
Mortgage Calculator
Contact Agent
Contact Robert Wilson Estate Agency (Moira)
Request More Information
Requesting Info about...
Lands Approx 55M, South 23, Lurganville Road, Moira, BT67 0PN
By registering your interest, you acknowledge our Privacy Policy
By registering your interest, you acknowledge our Privacy Policy