Contact Agent
Contact Ulster Property Sales (UPS) Downpatrick
Commercial
49-51 Central Promenade & 2 - 4 Causeway Road
Newcastle, BT33 0HH
offers over
£730,000
- Status Sale Agreed
- Property Type Commercial
-
Stamp Duty
Higher amount applies when purchasing as buy to let or as an additional property£26,500 / £63,000*
Key Features & Description
Execeptional Investment Opportunity
Redevelopment Potential STP
Mixed Use Income Producing Investment Opportunity
Prime Location with Sea Front Views
3 Tenanted Commercial Units
4 Apartments
1 Garage
Description
CLOSING DATE FOR BID 3RD JULY 2025
WHAT'S ON OFFER
49-51 Central Promenade & 2 - 4 Causeway Road is located in the very heart of the seaside town of Newcastle in the south of County Down, Northern Ireland. A prominent fixture along the Central Promenade, the property was for many decades the location of the family operated Thornton´s Pharmacy. In more recent years, the properties have been sub-divided to provide an excellent mixed use commercial development that offers 3 no. tenanted commercial units, a garage, and 4 no. 2 and 3 bed apartments available with vacant possession.
The existing tenancies offer an immediate income which can be further enhanced via rent reviews, along side the letting of the vacant apartments. Of course, the properties prime location on the Central Promenade and within the town centre development limit (Ards and north Down Area Plan 2015), offers significant opportunity for partial or complete redevelopment, subject to planning.
LOCATION
Newcastle is a popular seaside resort town in County Down, Northern Ireland, which boasts a population of 8,298 as at the 2021 Census. Newcastle is located overlooking the Irish Sea at the foot of Slieve Donard, the highest of the Mourne Mountains. The town is reknowned for its sandy beach, forests, and mountains, as well as, the champion golf course, Royal County Down which played host to the Irish Open in 2015.
In recent years, Newcastle has welcomed a resurgence in popularity due to its scenic setting and expansive lifestyle opportunities. The town has attracted investment from a range of mutli-national operators and includes Lidl, Tesco, Cafe Nero and the world renowned Slieve Donard Hotel and Spa. Furthermore, the demand of residential property in Newcastle has resulted in record breaking values with the town being regarded as the highest value area on the south down coast. The property is located c. 30 miles south of Belfast and 20 miles east of Newry.
CLOSING DATE FOR BID 3RD JULY 2025
WHAT'S ON OFFER
49-51 Central Promenade & 2 - 4 Causeway Road is located in the very heart of the seaside town of Newcastle in the south of County Down, Northern Ireland. A prominent fixture along the Central Promenade, the property was for many decades the location of the family operated Thornton´s Pharmacy. In more recent years, the properties have been sub-divided to provide an excellent mixed use commercial development that offers 3 no. tenanted commercial units, a garage, and 4 no. 2 and 3 bed apartments available with vacant possession.
The existing tenancies offer an immediate income which can be further enhanced via rent reviews, along side the letting of the vacant apartments. Of course, the properties prime location on the Central Promenade and within the town centre development limit (Ards and north Down Area Plan 2015), offers significant opportunity for partial or complete redevelopment, subject to planning.
LOCATION
Newcastle is a popular seaside resort town in County Down, Northern Ireland, which boasts a population of 8,298 as at the 2021 Census. Newcastle is located overlooking the Irish Sea at the foot of Slieve Donard, the highest of the Mourne Mountains. The town is reknowned for its sandy beach, forests, and mountains, as well as, the champion golf course, Royal County Down which played host to the Irish Open in 2015.
In recent years, Newcastle has welcomed a resurgence in popularity due to its scenic setting and expansive lifestyle opportunities. The town has attracted investment from a range of mutli-national operators and includes Lidl, Tesco, Cafe Nero and the world renowned Slieve Donard Hotel and Spa. Furthermore, the demand of residential property in Newcastle has resulted in record breaking values with the town being regarded as the highest value area on the south down coast. The property is located c. 30 miles south of Belfast and 20 miles east of Newry.
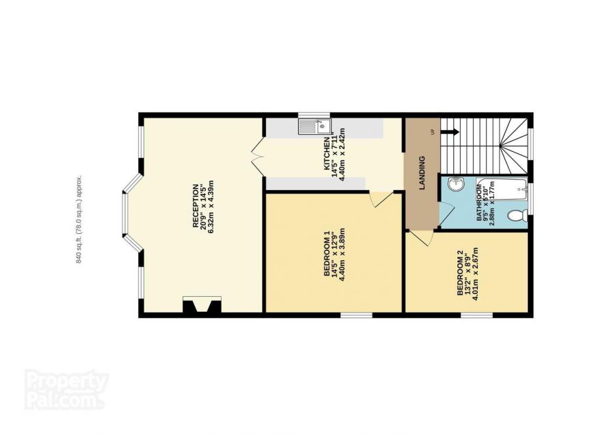
Rooms
Other Specifications
TENANCY SCHEDULE
Available on request.
PRICE
Offers Over £730,000
TITLE
Freehold
Available on request.
PRICE
Offers Over £730,000
TITLE
Freehold
EPC
EPC
Non Domestic: C56
Domestic: E53
Non Domestic: C56
Domestic: E53
Terms of Sale
TERMS OF SALE
The property is being offered For Sale by Private Treaty. However, the vendor reserves the right to conclude the sale via auction or "Best and Final" bids at a date and time to be confirmed.
The criteria required from interested parties in placing an offer must include:
Confirmation of name and address of proposed purchaser
Confirmation of offer level
Proof of funds from Bank to confirm that adequate funds are available to complete the purchase at offer level
Timescale to complete the purchase post acceptance of offer
Confirmation of solicitor who will represent purchaser
10% deposit of agreed purchase price shall be payable upon agreement of sale
Further information pack to be provided at this point
The property is being offered For Sale by Private Treaty. However, the vendor reserves the right to conclude the sale via auction or "Best and Final" bids at a date and time to be confirmed.
The criteria required from interested parties in placing an offer must include:
Confirmation of name and address of proposed purchaser
Confirmation of offer level
Proof of funds from Bank to confirm that adequate funds are available to complete the purchase at offer level
Timescale to complete the purchase post acceptance of offer
Confirmation of solicitor who will represent purchaser
10% deposit of agreed purchase price shall be payable upon agreement of sale
Further information pack to be provided at this point
Further Information
FURTHER INFORMATION
Inspection of the site is strictly by private appointment. For further information please contact:
Aaron Ferris, Director
T: 028 446 14101
E: downpatrick@ulsterpropertysales.co.uk
Ulster Property Sales, Unit 7, 49-51 Market St, Downpatrick, BT30 6LR
Joint Agents:
Garrett O'Hare, Managing Director
T: 028 4372 3220
E: garrett.ohare@bradleyni.com
Bradley NI, 51 Main Street, Newcastle, BT33 0AD
Inspection of the site is strictly by private appointment. For further information please contact:
Aaron Ferris, Director
T: 028 446 14101
E: downpatrick@ulsterpropertysales.co.uk
Ulster Property Sales, Unit 7, 49-51 Market St, Downpatrick, BT30 6LR
Joint Agents:
Garrett O'Hare, Managing Director
T: 028 4372 3220
E: garrett.ohare@bradleyni.com
Bradley NI, 51 Main Street, Newcastle, BT33 0AD
Video
Property Location
Mortgage Calculator
Contact Agent
Contact Ulster Property Sales (UPS) Downpatrick
Request More Information
Requesting Info about...
49-51 Central Promenade & 2 - 4 Causeway Road, Newcastle, BT33 0HH
By registering your interest, you acknowledge our Privacy Policy
By registering your interest, you acknowledge our Privacy Policy