Contact Agent
Contact Property Directions (Newcastle)
Retail
18 Railway Street
Newcastle, BT33 0AL
per annum
£13,200
- Status For Rent
- Property Type Retail
- Available From 01/11/2024
- Interior Area 419 sqft
- Heating 18 Railway St, NEWCASTLE, Down BT33 0AL
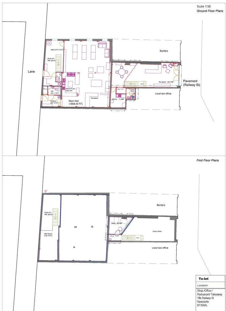
Description
An excellent opportunity to lease a prime location in Newcastle.
- Spacious Commercial unit
- Open plan front office with reception area
- Separate office on the first floor
- Separate kitchen area
- WC on the ground floor
The unit would suit a variety of potential users (subject to any necessary statutory consents or approvals).
AVAILABLE FROM 1ST NOV 2024
- Spacious Commercial unit
- Open plan front office with reception area
- Separate office on the first floor
- Separate kitchen area
- WC on the ground floor
The unit would suit a variety of potential users (subject to any necessary statutory consents or approvals).
AVAILABLE FROM 1ST NOV 2024
Property Location
Contact Agent
Contact Property Directions (Newcastle)
Request More Information
Requesting Info about...
18 Railway Street, Newcastle, BT33 0AL
By registering your interest, you acknowledge our Privacy Policy
By registering your interest, you acknowledge our Privacy Policy