Contact Agent

Contact Property Directions (Castlewellan)

Contact Property Directions (Castlewellan)

Land

Building Site Castlewellan Road

Newcastle, BT33 0ET

offers around £90,000
  • Status For Sale
  • Property Type Land
  • Stamp Duty
    Higher amount applies when purchasing as buy to let or as an additional property
    £0 / £4,500*
  • Typical Mortgage
    Click price to use our mortgage calculator

Key Features

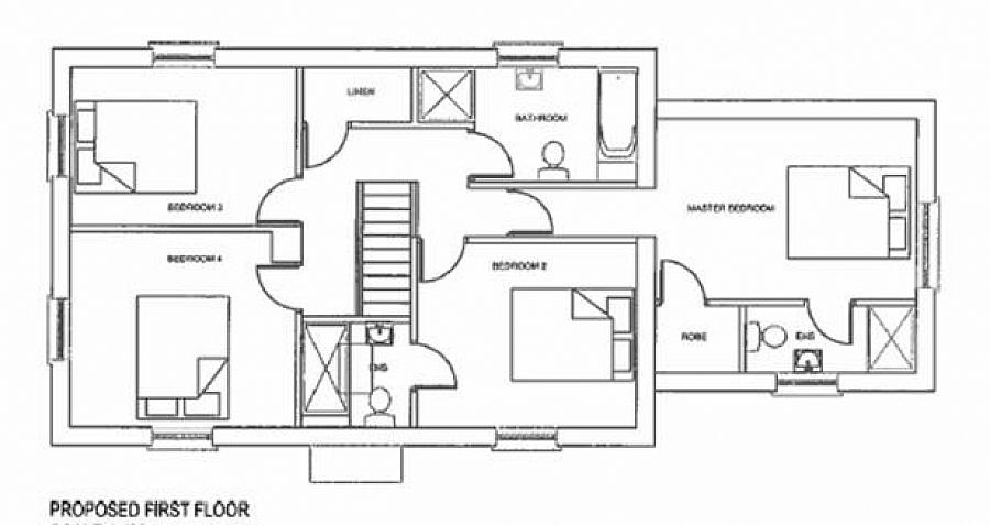
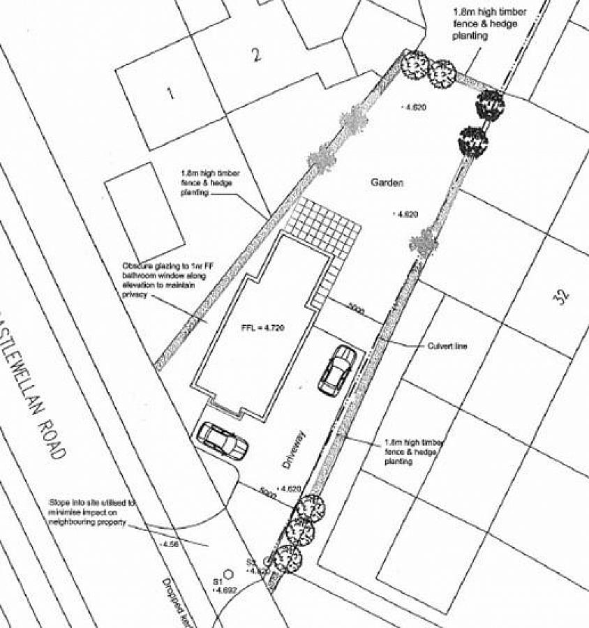
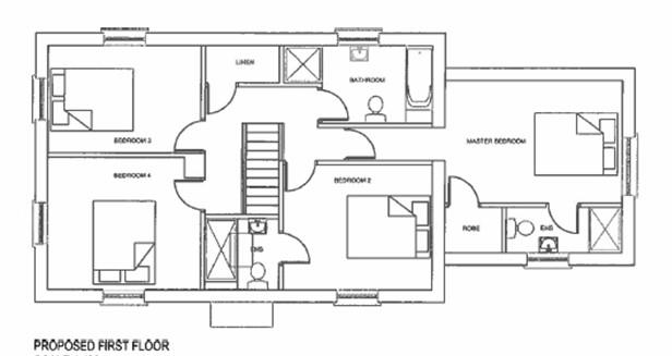
Full Planning Permission for the Erection of a 4 x Bed House
Constructed to subfloor level
Planning Approval No: LA07/2018/0820/F
Convenient to Newcastle Town Centre with view towards Mournes
  • A superb opportunity for self-builders or developers to secure a prime site with full planning permission for a four-bedroom detached home. The build is to proceed to subfloor level, allowing buyers to take forward the project with a valuable head start. Set on the edge of Newcastle Town, the site offers stunning views towards the Mourne Mountains and combines a peaceful setting with proximity to schools, shops, and local amenities. With building sites in the area becoming increasingly scarce, this is an ideal chance to create a high-quality home in a desirable and well-connected location.
  • Property Location

    Show Map

    Mortgage Calculator

    Disclaimer: The following calculations act as a guide only, and are based on a typical repayment mortgage model. Financial decisions should not be made based on these calculations and accuracy is not guaranteed. Always seek professional advice before making any financial decisions.

    Contact Agent

    Contact Property Directions (Castlewellan)

    Contact Property Directions (Castlewellan)

    Request More Information
    Requesting Info about...
    Building Site Castlewellan Road, Newcastle, BT33 0ET Building Site Castlewellan Road, Newcastle, BT33 0ET

    By registering your interest, you acknowledge our Privacy Policy