Contact Agent
Contact Property Directions (Newcastle)
Retail
103 Main Street
Newcastle, BT33 0AE
per month
£1,250
- Status For Rent
- Property Type Retail
- Available From 01/10/2025
- Interior Area 3713 sqft
Key Features & Description
Ground floor for rent with street frontage and rear access
Currently a highly successful furniture store operating for over 60 years
Commercial building in a prominent location in Newcastle Co. Down
Description
Nestled in the heart of Newcastle, this expansive commercial unit on Main Street presents an exceptional opportunity for businesses seeking a prominent location.
- Spacious Commercial unit
- Open plan front office with reception area
- Separate office on the first floor
- Separate kitchen area
- WC on the ground floor
The unit would suit a variety of potential users (subject to any necessary statutory consents or approvals).
AVAILABLE FROM 1ST OCT 2025
Nestled in the heart of Newcastle, this expansive commercial unit on Main Street presents an exceptional opportunity for businesses seeking a prominent location.
- Spacious Commercial unit
- Open plan front office with reception area
- Separate office on the first floor
- Separate kitchen area
- WC on the ground floor
The unit would suit a variety of potential users (subject to any necessary statutory consents or approvals).
AVAILABLE FROM 1ST OCT 2025
Rooms
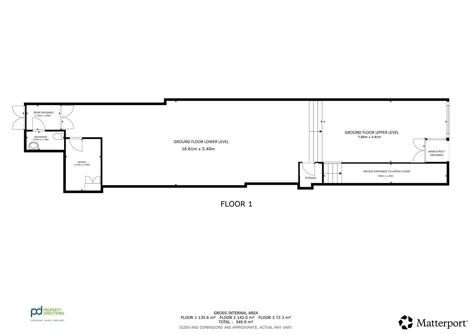
GROUND FLOOR: 81'0" X 17'6" (24.71m X 5.34m)
LOWER LEVEL:
Expansive floor featuring a cloakroom, office and double doors leading to rear entrance porch where there is a bathroom and an external enclosed rear yard. Access to Valentia Place running behind building
EXTERNAL:
The front of the building is located on Newcastle Main Street and the rear of the property backs out onto Valentia Place.
Broadband Speed Availability
Potential Speeds for 103 Main Street
Max Download
1800
Mbps
Max Upload
220
MbpsThe speeds indicated represent the maximum estimated fixed-line speeds as predicted by Ofcom. Please note that these are estimates, and actual service availability and speeds may differ.
Property Location
Contact Agent
Contact Property Directions (Newcastle)
Request More Information
Requesting Info about...
103 Main Street, Newcastle, BT33 0AE
By registering your interest, you acknowledge our Privacy Policy
By registering your interest, you acknowledge our Privacy Policy