Contact Agent

Contact Ulster Property Sales (UPS) Downpatrick

Contact Ulster Property Sales (UPS) Downpatrick

Site

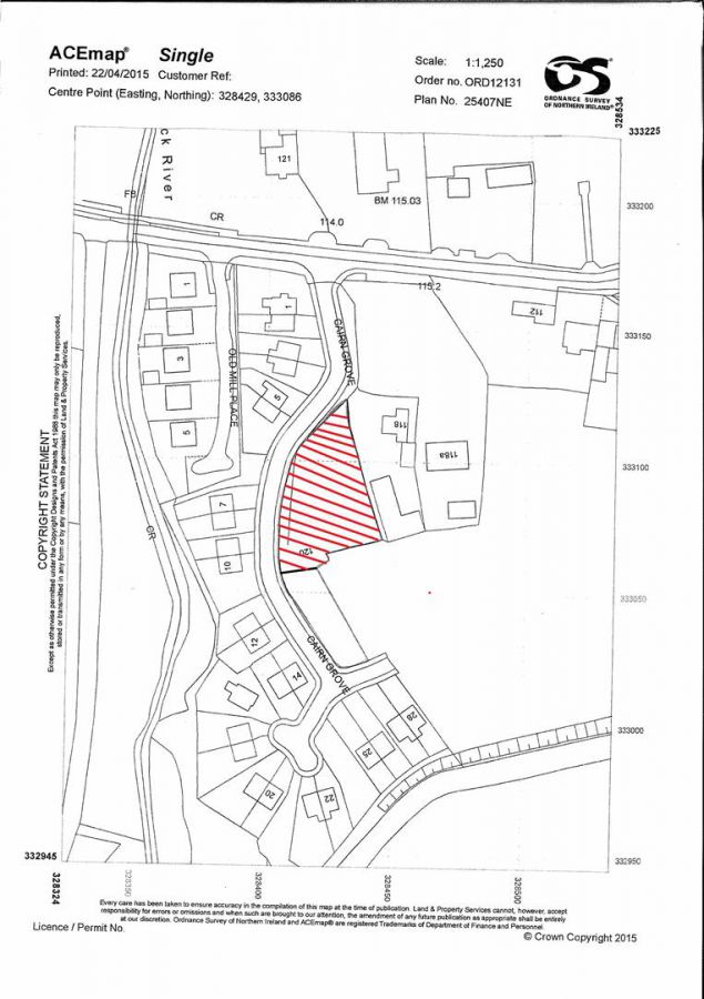
Development Land Cairn Grove

Kilcoo, Newry, BT34 5FP

offers around £250,000
  • Status For Sale
  • Property Type Site
  • Interior Area 1023 sqft
  • Stamp Duty
    Higher amount applies when purchasing as buy to let or as an additional property
    £2,500 / £15,000*
  • Typical Mortgage
    Click price to use our mortgage calculator

Description

This residential development opportunity is located within the development limit of the popular village of Kilcoo and is adjacent to a recently completed range of residential homes. Also is included Site 80.

Property Location

Show Map

Mortgage Calculator

Disclaimer: The following calculations act as a guide only, and are based on a typical repayment mortgage model. Financial decisions should not be made based on these calculations and accuracy is not guaranteed. Always seek professional advice before making any financial decisions.

Contact Agent

Contact Ulster Property Sales (UPS) Downpatrick

Contact Ulster Property Sales (UPS) Downpatrick

Request More Information
Requesting Info about...
Development Land Cairn Grove, Kilcoo, Newry, BT34 5FP Development Land Cairn Grove, Kilcoo, Newry, BT34 5FP

By registering your interest, you acknowledge our Privacy Policy